特性
探索我们的清单
聯繫
告诉我们您的需求

20130 SUGARLOAF MOUNTAIN ROAD

房屋 待售
$1,550,000

BTC: 23.00830808

ETH: 807.29166667

120 天
4 贝兹
3 浴室
3,501 平方英尺
Est. 预计销售范围: $0 - $0
$0

总览

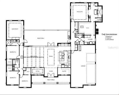
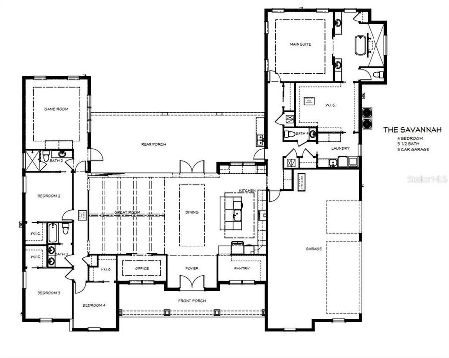
Pre-Construction. To be built. The talented team at Trilogy Homes brings craftsmanship and quality to this custom-built home. Nestled on 4.79 acres on Sugarloaf Mountain, this beautifully designed 5,251 total square foot and 3,501 square-foot living residence offers you the opportunity to select your finishes and truly make it your own. Featuring 4 bedrooms, 3.5 baths, private front and rear porches, a paver driveway leads to an oversized 3 car garage. This home combines elegance and functionality. Entering through the foyer, you'll find a gallery that opens to an incredible open-concept floor plan. The stunning volume ceilings, enhanced with wood-style beams, grace the great room. The kitchen boasts gorgeous quartz countertops, top-of-the-line appliances, a huge walk-in hidden pantry, and an oversized island, perfect for meal preparation and entertainment. The expansive master suite, with coffered ceilings, offers views of the property providing the ultimate in rest and relaxation. The master bathroom features a walk-through shower with multiple showerheads, a soaking tub, and his and her vanities. A walk-in closet has convenient access to the adjoining laundry room. For privacy, a French door opens directly to the lanai. Additional highlights include main-floor bedrooms with high ceilings and ample walk-in closet space, a private office, and a game room with views of the lanai. Call now to schedule an appointment and discover how you can customize this exquisite home to your liking. Minutes from the Minneola Turnpike exit and the new Hospital.

位置

佛罗里达 CLERMONT 34715 房屋 待售

详情与特色

类型:
Residential
停车:
没有数据
建造年份:
2026
地段:
4.79 英亩
暖气:
Electric
价格/平方英尺:
$443
冷气:
Central Air
HOA:
没有数据
更多事实和特点
  • 地板

    • Other

    暖气

    • Electric

    冷气

    • Central Air

    设备

    • Electric Water Heater

    其他室内特点

    • Coffered Ceiling(s)

    卧室和浴室

    • 卧室: 4

    • 洗手间: 1

    • 完整的浴室: 3

  • 房屋

    • 等级: One

    • 外观特征: Other

    地段

    • 地段: 4.79 英亩

    其他财产信息

    • 包裹编号: 202126050000000700

    • 分区: A

  • 类型与风格

    • 财产种类: Residential

    • 属性子类型: Single Family Residence

  • 公益

    • Cable Available

    • Electricity Available

  • 其他财政信息

    • 年税额: $543

  • 来源细节

    • MLS ID: O6339575

    其他详情

    • 建筑材料: Block

    • 基金会详情: Slab

    • 洗衣功能: Inside

    • 地段特征: Level / Oversized Lot / Private

    • 方向面: South

    • 车库空间: 3

    • 附属车库: 是

    • 车库: 是

    • 生活区域: 3501

    • 水源: Well

    • 地块大小: 264 x 790

    • 细分名称: SUGARLOAF VIEW ESTATES

类似房屋

1517 EVENING SUMMIT CIRCLE placeholder 1517 EVENING SUMMIT CIRCLE
6 天
待售
房屋
$1,200,000
4 贝兹 3 浴室 2,808 平方英尺
1517 EVENING SUMMIT CIRCLE
14238 CORKWOOD LANE placeholder 14238 CORKWOOD LANE
9 天
待售
房屋
$1,940,000
5 贝兹 2 浴室 6,277 平方英尺
14238 CORKWOOD LANE
19850 SUGARLOAF MOUNTAIN ROAD placeholder 19850 SUGARLOAF MOUNTAIN ROAD
38 天
待售
房屋
$1,555,000
5 贝兹 4 浴室 4,236 平方英尺
19850 SUGARLOAF MOUNTAIN ROAD
19048 CAUSEY ROAD placeholder 19048 CAUSEY ROAD
77 天
待售
地段/土地
$1,500,000
0 room(s)
19048 CAUSEY ROAD
21097 COUNTY ROAD 455 placeholder 21097 COUNTY ROAD 455
-$49K (2026/01/02)
待售
房屋
$1,150,000
4 贝兹 3 浴室 2,765 平方英尺
21097 COUNTY ROAD 455
20199 SWEETWOOD LANE placeholder 20199 SWEETWOOD LANE
-$105K (2025/11/12)
待售
房屋
$1,995,000
6 贝兹 7 浴室 5,768 平方英尺
20199 SWEETWOOD LANE
17631 VISTA BELLE COURT placeholder 17631 VISTA BELLE COURT
-$135K (2025/09/26)
待售
房屋
$1,290,000
4 贝兹 2 浴室 4,281 平方英尺
17631 VISTA BELLE COURT

The multiple listing information is provided by the Stellar MLS from a copyrighted compilation of listings. The compilation of listings and each individual listing are ©2026-present Stellar MLS. All Rights Reserved. The information provided is for consumers' personal, noncommercial use and may not be used for any purpose other than to identify prospective properties consumers may be interested in purchasing. All properties are subject to prior sale or withdrawal. All information provided is deemed reliable but is not guaranteed accurate, and should be independently verified. Listing courtesy of: LA ROSA REALTY LLC