特性
探索我们的清单
聯繫
告诉我们您的需求

2474 CR 423 Lot 29

房屋 待售
$234,000

BTC: 2.63113066

ETH: 79.97265892

3 贝兹
2 浴室
1,062 平方英尺
Est. 预计销售范围: $0 - $0
$0

总览

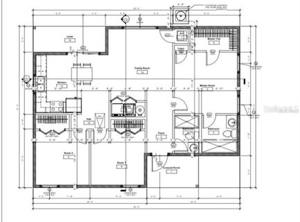
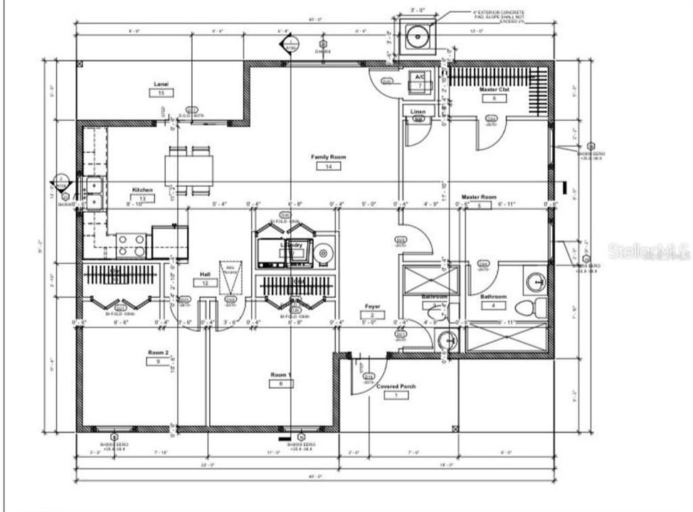
Under Construction. Under Construction. Under Construction. Under Construction. Charming New Construction Home in Indian Estates This model is being built on multiple lots (16, 18, 20, 29) Welcome to your dream home in Lake Panasoffkee, Florida! This brand-new three-bedroom, two-bathroom home is currently under construction and offers an unbeatable combination of style, comfort, and convenience. Featuring durable Hardy Board siding, architectural shingles, quarts countertops, stainless steel appliances. Luxury vinyl plank flooring, LED lighting, among many other finishing, this home is designed to impress. Nestled in the sought-after Indian Estates neighborhood, you’ll enjoy the peace of small-town living while being just minutes away from The Villages, I-75, and the exciting new Middleton campus. Offered at just $223,500, this is your opportunity to own a quality-built home at an incredible value. Some finishes may vary from listing photos, as the property is still under construction. Prime Location: Situated just moments away from the picturesque Lake Panasoffkee and the scenic Withlacoochee River, this home offers unparalleled access to outdoor recreation and natural beauty. Experience the best of Florida living in this exceptional new build. Contact us today to schedule a viewing and make this beautiful house your new home!

位置

详情与特色

类型:
Residential
停车:
没有数据
建造年份:
2026
地段:
0.33 英亩
暖气:
Central
价格/平方英尺:
$220
冷气:
Central Air
HOA:
没有数据
更多事实和特点
  • 地板

    • Luxury Vinyl

    暖气

    • Central

    冷气

    • Central Air

    设备

    • Dishwasher

    • Microwave

    • Range

    • Refrigerator

    其他室内特点

    • Kitchen/Family Room Combo

    • Open Floorplan

    • Stone Counters

    卧室和浴室

    • 卧室: 3

    • 完整的浴室: 2

  • 房屋

    • 等级: One

    • 外观特征: Other / Private Mailbox / Private Yard

    地段

    • 地段: 0.33 英亩

    其他财产信息

    • 包裹编号: F31G029

    • 分区: R

  • 类型与风格

    • 财产种类: Residential

    • 属性子类型: Single Family Residence

  • 公益

    • Cable Available

    • Electricity Connected

    • Water Connected

  • 其他财政信息

    • 年税额: $43

  • 来源细节

    • MLS ID: G5105945

    其他详情

    • 建筑材料: HardiPlank Type / Wood Frame

    • 基金会详情: Slab

    • 洗衣功能: Inside

    • 天井和门廊特色: Covered / Front Porch / Patio / Porch / Rear Porch

    • 方向面: South

    • 生活区域: 1062

    • 水源: Public

    • 细分名称: INDIAN ESTATES

类似房屋

1218 CR 450 placeholder 1218 CR 450
16 天
待售
房屋
$285,000
3 贝兹 2 浴室 1,548 平方英尺
1218 CR 450
2376 CR 444 placeholder 2376 CR 444
40 天
待售
房屋
$274,000
2 贝兹 1 浴室 1,230 平方英尺
2376 CR 444
1193 NW 12TH LANE placeholder 1193 NW 12TH LANE
40 天
待售
$285,900
4 贝兹 2 浴室 2,010 平方英尺
1193 NW 12TH LANE
3786 CR 405N placeholder 3786 CR 405N
41 天
待售
$179,900
3 贝兹 2 浴室 1,440 平方英尺
3786 CR 405N
3547 NW 23RD TERRACE placeholder 3547 NW 23RD TERRACE
41 天
待售
$170,000
3 贝兹 2 浴室 924 平方英尺
3547 NW 23RD TERRACE
1015 CR 463B placeholder 1015 CR 463B
46 天
待售
房屋
$275,000
3 贝兹 2 浴室 1,182 平方英尺
1015 CR 463B
2588 CR 426E placeholder 2588 CR 426E
-$31K (2025/12/08)
待售
房屋
$194,000
3 贝兹 2 浴室 1,147 平方英尺
2588 CR 426E
426 NW 5TH ROAD placeholder 426 NW 5TH ROAD
57 天
待售
房屋
$250,000
2 贝兹 2 浴室 960 平方英尺
426 NW 5TH ROAD

The multiple listing information is provided by the Stellar MLS from a copyrighted compilation of listings. The compilation of listings and each individual listing are ©2025-present Stellar MLS. All Rights Reserved. The information provided is for consumers' personal, noncommercial use and may not be used for any purpose other than to identify prospective properties consumers may be interested in purchasing. All properties are subject to prior sale or withdrawal. All information provided is deemed reliable but is not guaranteed accurate, and should be independently verified. Listing courtesy of: FLAMINGO REAL ESTATE & MNGMT