特性
探索我们的清单
聯繫
告诉我们您的需求

259 Via Bisento, Port Saint Lucie, FL 34952

房屋 合同活跃
$600,000

BTC: 6.94846555

ETH: 205.05809979

68 天
滨水区
3 贝兹
2 浴室
2,631 平方英尺
Est. 预计销售范围: $0 - $0
$0

总览

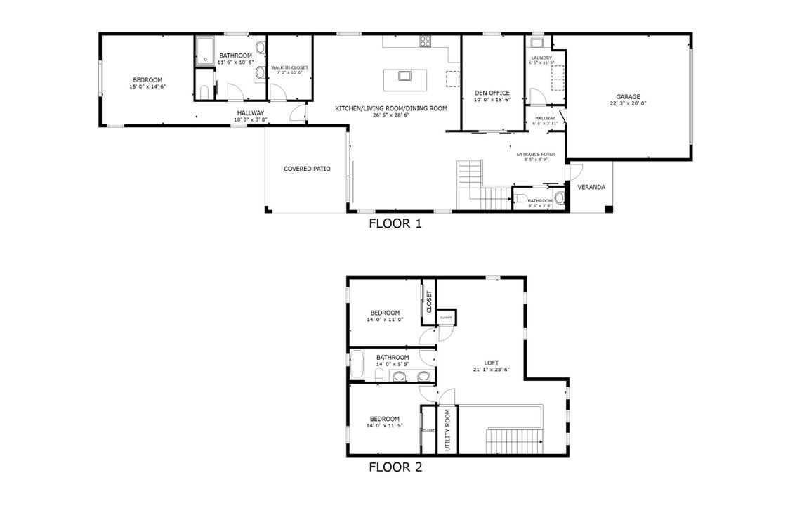
Let's Make a Deal/ Motivated Seller. Don't Miss Out on This Incredible Opportunity, Embrace the Epitome of Modern Luxury Living, a Meticulously Designed Residence Nestled within the Prestigious Gated Community, Thoughtfully Crafted for Comfort and Elegance, This Stunning 3-Bedroom, 2.5-Bathroom Home Boasts Premium Features and Ample Space for your Own Private Oasis. Featuring Stunning Quartz Countertops, Premium Stainless Appliances and Beautiful Cabinetry. A Dedicated Den Provides Versatility as a Home Office. The Spacious Loft Upstairs is a Perfect Area for a Playroom, or Second Family Room Allowing Private Family Time. Rivella is Situated on The North Fork and Conveniently Located to Everyday Amenities. As a Resident Enjoy the Clubhouse, Pool, Tennis Courts, and Fitness Center. Natural

位置

详情与特色

类型:
Residential
停车:
2+ Spaces / Driveway / Garage - Attached
建造年份:
2023
地段:
8516 平方英尺
暖气:
Central / Electric
价格/平方英尺:
$228
冷气:
Ceiling Fan / Central Individual / Electric
HOA:
$100
更多事实和特点
  • 地板

    • Carpet

    • Tile

    • Vinyl Floor

    暖气

    • Central

    • Electric

    冷气

    • Ceiling Fan

    • Central Individual

    • Electric

    设备

    • Auto Garage Open

    • Cooktop

    • Dishwasher

    • Disposal

    • Dryer

    • Microwave

    • Range - Electric

    • Refrigerator

    • Smoke Detector

    • Washer

    • Water Heater - Elec

    其他室内特点

    • Ctdrl/Vault Ceilings

    • Custom Mirror

    • Entry Lvl Lvng Area

    • Kitchen Island

    • Laundry Tub

    • Pantry

    • Pull Down Stairs

    • Upstairs Living Area

    • Volume Ceiling

    • Walk-in Closet

    卧室和浴室

    • 卧室: 3

    • 洗手间: 1

    • 完整的浴室: 2

  • 停车

    • 2+ Spaces

    • Driveway

    • Garage - Attached

    房屋

    • 外观特征: Auto Sprinkler / Covered Patio / Custom Lighting / Room for Pool / Zoned Sprinkler

    地段

    • 地段: 8516 平方英尺

    其他财产信息

    • 包裹编号: 441460000800009

    • 分区: PUD

  • 类型与风格

    • 财产种类: Residential

    • 属性子类型: Single Family Residence

  • 公益

    • Cable

    • Gas Natural

    • Public Sewer

    • Public Water

  • 其他财政信息

    • HOA: $100

    • 年税额: $12,381

  • 来源细节

    • MLS ID: RX-11128832

    其他详情

    • 建筑材料: CBS / Concrete

    • 地段特征: < 1/4 Acre / Cul-De-Sac / Sidewalks

    • 天井和门廊特色: Patio

    • 滨水区: 是

    • 车库空间: 2

    • 车库: 是

    • 生活区域: 2631

    • 细分名称: TESORO PRESERVE PLAT NO 2

类似房屋

2138 Herron, Port Saint Lucie, FL 34952 placeholder 2138 Herron, Port Saint Lucie, FL 34952
4 天
合同活跃
房屋
$510,000
3 贝兹 2 浴室 2,044 平方英尺
2138 Herron, Port Saint Lucie, FL 34952
315 SE Fisk Rd, Port St. Lucie FL 34984 placeholder 315 SE Fisk Rd, Port St. Lucie FL 34984
11 天
合同活跃
房屋
$480,000
3 贝兹 2 浴室 2,367 平方英尺
315 SE Fisk Rd, Port St. Lucie FL 34984
372 Quiet Woods, Port Saint Lucie, FL 34953 placeholder 372 Quiet Woods, Port Saint Lucie, FL 34953
13 天
合同活跃
房屋
$680,000
4 贝兹 3 浴室 2,814 平方英尺
372 Quiet Woods, Port Saint Lucie, FL 34953
859 Roulette, Port Saint Lucie, FL 34983 placeholder 859 Roulette, Port Saint Lucie, FL 34983
21 天
合同活跃
房屋
$420,000
3 贝兹 2 浴室 1,972 平方英尺
859 Roulette, Port Saint Lucie, FL 34983
2479 Whitehorse, Port Saint Lucie, FL 34984 placeholder 2479 Whitehorse, Port Saint Lucie, FL 34984
-$5K (2025/11/02)
合同活跃
房屋
$425,000
3 贝兹 2 浴室 1,521 平方英尺
2479 Whitehorse, Port Saint Lucie, FL 34984
213 Via Sangro, Port Saint Lucie, FL 34952 placeholder 213 Via Sangro, Port Saint Lucie, FL 34952
-$30K (2025/09/15)
合同活跃
房屋
$474,990
2 贝兹 2 浴室 1,434 平方英尺
213 Via Sangro, Port Saint Lucie, FL 34952
113 Thornhill, Port Saint Lucie, FL 34983 placeholder 113 Thornhill, Port Saint Lucie, FL 34983
71 天
合同活跃
房屋
$449,000
3 贝兹 2 浴室 2,003 平方英尺
113 Thornhill, Port Saint Lucie, FL 34983
152 Hawthorne, Port Saint Lucie, FL 34953 placeholder 152 Hawthorne, Port Saint Lucie, FL 34953
-$30K (2025/11/04)
合同活跃
房屋
$530,000
4 贝兹 2 浴室 2,185 平方英尺
152 Hawthorne, Port Saint Lucie, FL 34953

The multiple listing information is provided by the Beaches MLS from a copyrighted compilation of listings. The compilation of listings and each individual listing are ©2025-present Beaches MLS. All Rights Reserved. The information provided is for consumers' personal, noncommercial use and may not be used for any purpose other than to identify prospective properties consumers may be interested in purchasing. All properties are subject to prior sale or withdrawal. All information provided is deemed reliable but is not guaranteed accurate, and should be independently verified. Listing courtesy of: Sea Flag Homes