特性
探索我们的清单
聯繫
告诉我们您的需求

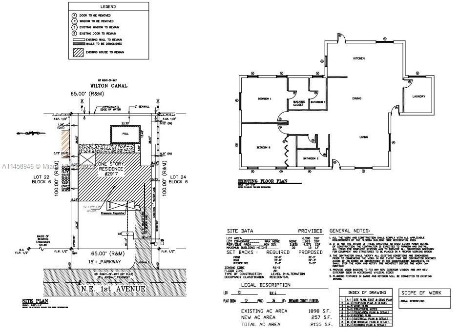
2917 NE 1st Ave, Wilton Manors FL 33334

房屋 最近售出
$530,000

BTC: 5.57894737

ETH: 170.96774194

发售日期: 2023-12-06
34 天
滨水区
4 贝兹
4 浴室
1,281 平方英尺
Est. 预计销售范围: $0 - $0
$0

总览

Discover an extraordinary investment opportunity with this spacious Wilton Manors property! Fire damage, Fixer-Upper! Located in the affluent neighborhood of Fort Lauderdale, Florida, this spacious riverfront home features a remarkable 70+ feet of riverfront and includes plans for a 4-bedroom, 4-bathroom layout. These plans are meticulously prepared and ready for immediate presentation to the city. Don't miss this golden opportunity. Whether you're an astute investor or imagine it as your own retreat, this home offers an ideal location just minutes from the beach, FLL Airport, and downtown Hollywood. Plus, it has fantastic potential as an Airbnb income generator!

位置

详情与特色

类型:
Residential
停车:
Attached Carport / Driveway
建造年份:
1956
地段:
6501 平方英尺
暖气:
Central
价格/平方英尺:
$460
冷气:
Central Air
HOA:
没有数据
更多事实和特点
  • 地板

    • Other

    暖气

    • Central

    冷气

    • Central Air

    其他室内特点

    • First Floor Entry

    • Other

    卧室和浴室

    • 卧室: 4

    • 完整的浴室: 4

  • 停车

    • Attached Carport

    • Driveway

    房屋

    • 外观特征: None

    地段

    • 地段: 6501 平方英尺

    其他财产信息

    • 包裹编号: 494227170880

    • 分区: RS-5

  • 类型与风格

    • 财产种类: Residential

    • 属性子类型: Single Family Residence

  • 其他财政信息

    • 年税额: $8,888

  • 来源细节

    • MLS ID: A11458946

    其他详情

    • 建筑材料: CBS Construction

    • 地段特征: Less Than 1/4 Acre Lot

    • 泳池特色: In Ground

    • 方向面: East

    • 建筑风格: Detached / One Story

    • 滨水区: 是

    • 生活区域: 1281

    • 水源: Municipal Water

    • 细分名称: ALMAR ESTATES RESUB

类似房屋

210 NE 41st St, Oakland Park FL 33334 placeholder 210 NE 41st St, Oakland Park FL 33334
最近售出
多户家庭
$620,000
0 room(s) 3,179 平方英尺
210 NE 41st St, Oakland Park FL 33334
914 NE 4TH STREET placeholder 914 NE 4TH STREET
最近售出
联排别墅
$760,000
4 贝兹 2 浴室 1,713 平方英尺
914 NE 4TH STREET
1633 NW 8th Ave, Fort Lauderdale FL 33311 placeholder 1633 NW 8th Ave, Fort Lauderdale FL 33311
最近售出
多户家庭
$505,000
0 room(s) 2,304 平方英尺
1633 NW 8th Ave, Fort Lauderdale FL 33311
817 NE 17th Ct, Fort Lauderdale FL 33305 placeholder 817 NE 17th Ct, Fort Lauderdale FL 33305
最近售出
房屋
$585,000
3 贝兹 2 浴室 1,245 平方英尺
817 NE 17th Ct, Fort Lauderdale FL 33305
1124 NE 2nd Ave, Fort Lauderdale FL 33304 placeholder 1124 NE 2nd Ave, Fort Lauderdale FL 33304
最近售出
联排别墅
$745,000
3 贝兹 3 浴室
1124 NE 2nd Ave, Fort Lauderdale FL 33304
4212 NE 7th Ter # 7, Oakland Park FL 33334 placeholder 4212 NE 7th Ter # 7, Oakland Park FL 33334
最近售出
联排别墅
$515,000
3 贝兹 2 浴室
4212 NE 7th Ter # 7, Oakland Park FL 33334
1180 N Federal Hwy # 1103, Fort Lauderdale FL 33304 placeholder 1180 N Federal Hwy # 1103, Fort Lauderdale FL 33304
最近售出
公寓/合作社
$735,000
2 贝兹 2 浴室 1,598 平方英尺
1180 N Federal Hwy # 1103, Fort Lauderdale FL 33304
2820 NE 56TH CT placeholder 2820 NE 56TH CT
最近售出
房屋
$650,000
3 贝兹 2 浴室 1,710 平方英尺
2820 NE 56TH CT

The multiple listing information is provided by the Miami Association of REALTORS® from a copyrighted compilation of listings. The compilation of listings and each individual listing are ©2026-present Miami Association of REALTORS®. All Rights Reserved. The information provided is for consumers' personal, noncommercial use and may not be used for any purpose other than to identify prospective properties consumers may be interested in purchasing. All properties are subject to prior sale or withdrawal. All information provided is deemed reliable but is not guaranteed accurate, and should be independently verified. Listing courtesy of: York Investments Corp.