特性
探索我们的清单
聯繫
告诉我们您的需求

3022 NE 20TH TERRACE

房屋 待售
$279,990

BTC: 4.15619108

ETH: 143.58461538

-$3K (2025/12/30)
30 天
4 贝兹
2 浴室
1,498 平方英尺
Est. 预计销售范围: $0 - $0
$0

总览

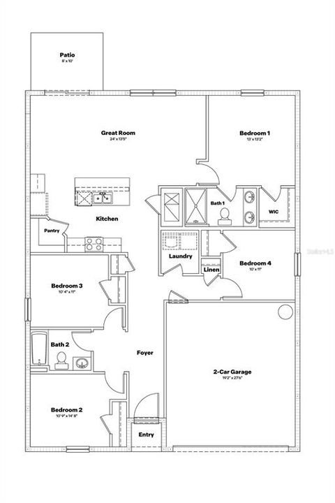
Under Construction. This all concrete block constructed, one-story home optimizes living space, featuring an open-concept kitchen overlooking the great room and outdoor patio. The well-appointed kitchen comes with all stainless-steel appliances, including a built-in dishwasher, range, and microwave. Bedroom 1 is located at the rear of the home for privacy and features an ensuite bathroom and walk-in closet near the bathroom. Two additional bedrooms at the front of the home are separated by the second bathroom. The third bedroom is located across the hallway near the laundry room. Pictures, photographs, colors, features, and sizes are for illustration purposes only and will vary from the homes as built. Home and community information including pricing, included features, terms, availability and amenities are subject to change and prior sale at any time without notice or obligation. CRC057592.

位置

佛罗里达 OCALA 34470 房屋 待售

详情与特色

类型:
Residential
停车:
没有数据
建造年份:
2025
地段:
0.14 英亩
暖气:
Electric / Heat Pump
价格/平方英尺:
$187
冷气:
Central Air
HOA:
$91
更多事实和特点
  • 地板

    • Carpet

    • Luxury Vinyl

    暖气

    • Electric

    • Heat Pump

    冷气

    • Central Air

    设备

    • Dishwasher

    • Microwave

    • Range

    其他室内特点

    • Open Floorplan

    卧室和浴室

    • 卧室: 4

    • 完整的浴室: 2

  • 房屋

    • 等级: One

    • 外观特征: Irrigation System

    地段

    • 地段: 0.14 英亩

    其他财产信息

    • 包裹编号: 2428608200

    • 分区: PUD

  • 类型与风格

    • 财产种类: Residential

    • 属性子类型: Single Family Residence

  • 公益

    • Other

  • 其他财政信息

    • HOA: $91

    • HOA频率: Monthly

  • 来源细节

    • MLS ID: OM714745

    其他详情

    • 建筑材料: Block

    • 基金会详情: Slab

    • 洗衣功能: Laundry Room

    • 方向面: Northeast

    • 车库空间: 2

    • 附属车库: 是

    • 车库: 是

    • 生活区域: 1498

    • 水源: Public

    • 细分名称: EMERSON POINTE

类似房屋

831 NE 41ST AVENUE placeholder 831 NE 41ST AVENUE
+$70K (2026/01/07)
待售
房屋
$299,900
3 贝兹 2 浴室 1,512 平方英尺
831 NE 41ST AVENUE
524 SE 31ST AVENUE placeholder 524 SE 31ST AVENUE
1 天
待售
房屋
$324,900
4 贝兹 2 浴室 1,450 平方英尺
524 SE 31ST AVENUE
2905 NE 20TH TERRACE placeholder 2905 NE 20TH TERRACE
1 天
待售
房屋
$308,070
4 贝兹 2 浴室 2,260 平方英尺
2905 NE 20TH TERRACE
3824 NE 19TH STREET CIRCLE placeholder 3824 NE 19TH STREET CIRCLE
1 天
待售
房屋
$220,000
2 贝兹 2 浴室 1,354 平方英尺
3824 NE 19TH STREET CIRCLE
4481 NE 4TH STREET placeholder 4481 NE 4TH STREET
2 天
待售
房屋
$309,900
3 贝兹 2 浴室 1,838 平方英尺
4481 NE 4TH STREET
1110 NE 21ST TERRACE placeholder 1110 NE 21ST TERRACE
5 天
待售
房屋
$349,990
3 贝兹 2 浴室 1,874 平方英尺
1110 NE 21ST TERRACE
2450 NE 40TH STREET placeholder 2450 NE 40TH STREET
6 天
待售
房屋
$295,000
3 贝兹 2 浴室 1,346 平方英尺
2450 NE 40TH STREET
2186 NE 28TH PLACE placeholder 2186 NE 28TH PLACE
8 天
待售
房屋
$341,070
5 贝兹 3 浴室 2,077 平方英尺
2186 NE 28TH PLACE

The multiple listing information is provided by the Stellar MLS from a copyrighted compilation of listings. The compilation of listings and each individual listing are ©2026-present Stellar MLS. All Rights Reserved. The information provided is for consumers' personal, noncommercial use and may not be used for any purpose other than to identify prospective properties consumers may be interested in purchasing. All properties are subject to prior sale or withdrawal. All information provided is deemed reliable but is not guaranteed accurate, and should be independently verified. Listing courtesy of: DR HORTON REALTY OF WEST CENTRAL FLORIDA