特性
探索我们的清单
聯繫
告诉我们您的需求

303 WATERWOOD DRIVE

房屋 待售
$1,499,900

BTC: 49.99666667

ETH: 749.95000000

-$299K (2025/11/10)
287 天
滨水区
5 贝兹
3 浴室
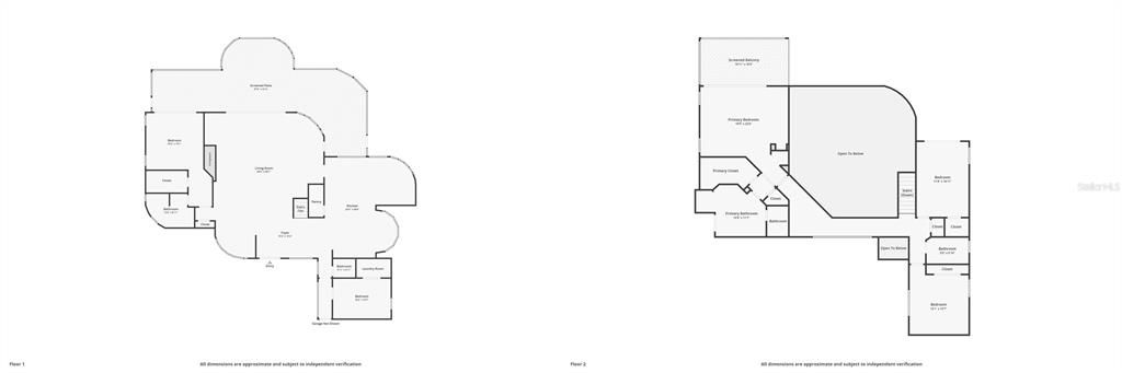
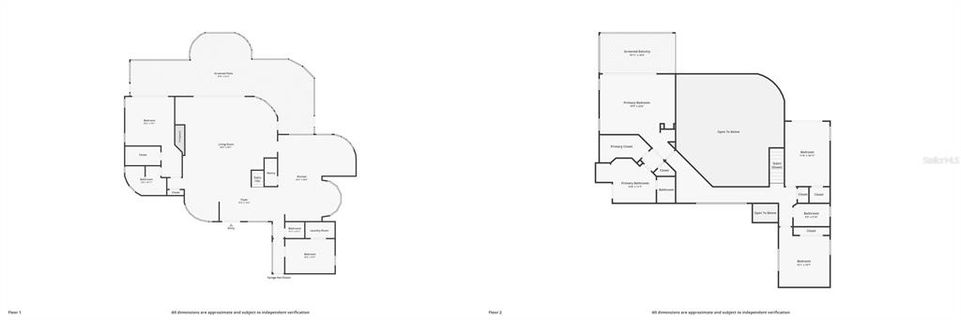
4,860 平方英尺
Est. 预计销售范围: $0 - $0
$0

总览

Prepare to fall in love with this Lake Harris waterfront sanctuary in Waterwood. Sellers are motivated and will include a significant rate buydown to provide significantly lower-than-market interest rates to financed buyers. The Harris Chain of Lakes is the largest in Florida, spanning over 75,000 acres with many activities such as watersports, fishing, and waterfront restaurant hopping! This better-than-new custom estate, nestled in an exclusive, best-kept-secret community of Waterwood, offers breathtaking panoramic lake views from its light-filled, approximately 5,000 sq ft open layout. Subtle Wabi-Sabi design emphasizes natural elegance. Reimagined with designer finishes, the exquisite home features luxury vinyl plank flooring, plush bedroom carpets, and a show-stopping chef's kitchen with professional stainless steel appliances, quartz, and custom cabinetry overlooking the lake. Spa-like baths offer ultimate relaxation. Enjoy a new roof, enhanced patio screen, fresh paint, stylish lighting, and a cozy electric fireplace. The oversized 4-car garage provides ample storage. Experience refined lakefront living with soaring ceilings and seamless indoor-outdoor flow. Wake to stunning sunrises from multiple balconies, enjoy 100+ ft of private frontage, and launch watercraft from your tranquil backyard onto the Harris Chain of Lakes, with easy access to waterfront dining and charming towns like Mount Dora. The grand entrance reveals a breathtaking living space framed by expansive lake windows. Dual lavish primary suites, each with a private balcony, offer waterfront serenity. A spacious dining room with a custom wine closet complements the lake-view chef's kitchen and breakfast nook. The expansive living room is perfect for entertaining. The 60 ft covered lanai invites outdoor relaxation, with space for a future infinity pool. A private community marina offers 22 boat slips for Waterwood residents to dock their boats for an insanely low annual fee of less than $175 per year. Golfers love the proximity to Mission Inn (5 mins), and top academies are also close. Conveniently located 10 mins from the Turnpike, enjoy easy access to Orlando (1 hr), Tampa (75 mins), and beaches. This unmatched lakefront masterpiece in an exclusive community awaits. Call today to schedule your private tour!

位置

佛罗里达 YALAHA 34797 房屋 待售 滨水区

详情与特色

类型:
Residential
停车:
Circular Driveway / Driveway / Garage Door Opener / Garage Faces Side / Golf Cart Parking / Ground Level
建造年份:
1987
地段:
0.50 英亩
暖气:
Central / Electric
价格/平方英尺:
$309
冷气:
Central Air
HOA:
$529
更多事实和特点
  • 地板

    • Carpet

    • Luxury Vinyl

    • Porcelain Tile

    暖气

    • Central

    • Electric

    冷气

    • Central Air

    设备

    • Convection Oven

    • Cooktop

    • Dishwasher

    • Disposal

    • Electric Water Heater

    • Exhaust Fan

    • Microwave

    • Range Hood

    • Refrigerator

    其他室内特点

    • Built-in Features

    • Cathedral Ceiling(s)

    • Ceiling Fan(s)

    • Central Vacuum

    • Eating Space In Kitchen

    • High Ceilings

    • Kitchen/Family Room Combo

    • Living Room/Dining Room Combo

    • Open Floorplan

    • Primary Bedroom Main Floor

    • PrimaryBedroom Upstairs

    • Skylight(s)

    • Solid Surface Counters

    • Solid Wood Cabinets

    • Split Bedroom

    • Stone Counters

    • Thermostat

    • Vaulted Ceiling(s)

    • Walk-In Closet(s)

    卧室和浴室

    • 卧室: 5

    • 洗手间: 1

    • 完整的浴室: 3

  • 停车

    • Circular Driveway

    • Driveway

    • Garage Door Opener

    • Garage Faces Side

    • Golf Cart Parking

    • Ground Level

    房屋

    • 等级: Two

    • 外观特征: Balcony / Irrigation System / Lighting / Rain Gutters / Sliding Doors

    地段

    • 地段: 0.50 英亩

    其他财产信息

    • 包裹编号: 172025063500000300

    • 分区: R-3

  • 类型与风格

    • 财产种类: Residential

    • 属性子类型: Single Family Residence

  • 公益

    • BB/HS Internet Available

    • Cable Connected

    • Electricity Connected

    • Sewer Connected

    • Street Lights

    • Water Connected

  • 其他财政信息

    • HOA: $529

    • HOA频率: Quarterly

    • 年税额: $3,944

  • 来源细节

    • MLS ID: O6282503

    其他详情

    • 建筑材料: Block

    • 基金会详情: Slab

    • 壁炉功能: Electric / Living Room

    • 洗衣功能: Inside / Laundry Room

    • 地段特征: Cleared / In County / Level / Near Marina

    • 天井和门廊特色: Covered / Patio / Rear Porch / Screened

    • 窗户功能: Double Pane Windows

    • 方向面: South

    • 建筑风格: Custom

    • 滨水区: 是

    • 壁炉: 是

    • 水体名称: LAKE HARRIS

    • 车库空间: 3

    • 附属车库: 是

    • 车库: 是

    • 生活区域: 4860

    • 水源: Public

    • 地块大小: 102 x 10

    • 细分名称: WATERWOOD SUB

类似房屋

7086 NUMBER TWO ROAD placeholder 7086 NUMBER TWO ROAD
67 天
待售
房屋
$1,200,000
3 贝兹 2 浴室 3,177 平方英尺
7086 NUMBER TWO ROAD

The multiple listing information is provided by the Stellar MLS from a copyrighted compilation of listings. The compilation of listings and each individual listing are ©2025-present Stellar MLS. All Rights Reserved. The information provided is for consumers' personal, noncommercial use and may not be used for any purpose other than to identify prospective properties consumers may be interested in purchasing. All properties are subject to prior sale or withdrawal. All information provided is deemed reliable but is not guaranteed accurate, and should be independently verified. Listing courtesy of: EXP REALTY LLC