特性
探索我们的清单
聯繫
告诉我们您的需求

30551 SAFFRON AVENUE

房屋 待售
$649,000

BTC: 21.63333333

ETH: 324.50000000

215 天
4 贝兹
2 浴室
2,730 平方英尺
Est. 预计销售范围: $0 - $0
$0

总览

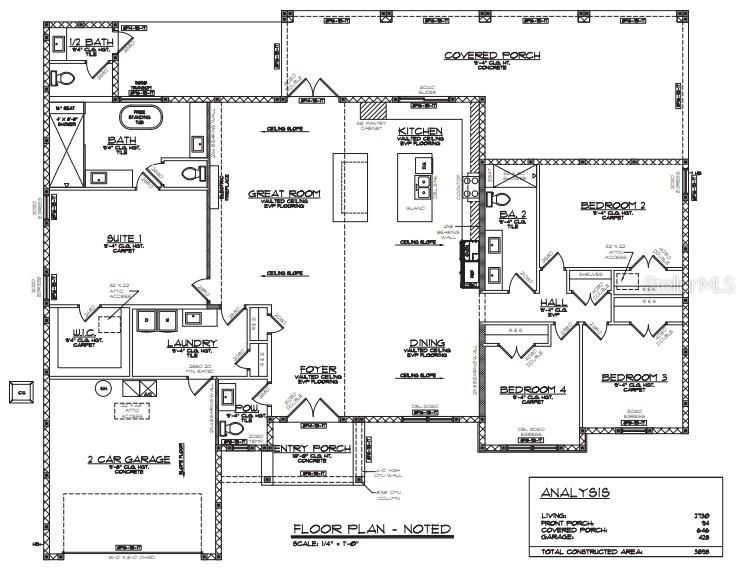
Under Construction. Under construction. Split floor plan with just the right amount of space. 4 bedroom 2 full bathrooms 2 half bathrooms. Master Bath includes separate tub and a walk in shower. 1 acre lot in Royal Trails Community surrounded by Seminole State Forest. Come live in the country with deer and turkeys. No mobile homes and only $95/year HOA fee. Community boat ramp/dock to semi-private, 1,200 acre Lake Norris. Short drive to Publix, Wekiva Parkway/SR429 and Mount Dora.

位置

佛罗里达 EUSTIS 32736 房屋 待售

详情与特色

类型:
Residential
停车:
没有数据
建造年份:
2025
地段:
1.00 英亩
暖气:
Electric
价格/平方英尺:
$238
冷气:
Central Air
HOA:
$80
更多事实和特点
  • 地板

    • Carpet

    • Porcelain Tile

    暖气

    • Electric

    冷气

    • Central Air

    设备

    • Built-In Oven

    • Cooktop

    • Dishwasher

    • Electric Water Heater

    • Microwave

    • Refrigerator

    其他室内特点

    • Ceiling Fan(s)

    • High Ceilings

    • Open Floorplan

    • Primary Bedroom Main Floor

    • Solid Surface Counters

    • Vaulted Ceiling(s)

    • Walk-In Closet(s)

    卧室和浴室

    • 卧室: 4

    • 洗手间: 2

    • 完整的浴室: 2

  • 房屋

    • 等级: One

    • 外观特征: Lighting

    地段

    • 地段: 1.00 英亩

    其他财产信息

    • 包裹编号: 361728010016201200

    • 分区: R-1

  • 类型与风格

    • 财产种类: Residential

    • 属性子类型: Single Family Residence

  • 公益

    • Cable Available

    • Electricity Connected

    • Phone Available

    • Underground Utilities

  • 其他财政信息

    • HOA: $80

    • HOA频率: Annually

    • 年税额: $623

  • 来源细节

    • MLS ID: G5096530

    其他详情

    • 建筑材料: Block / Stucco

    • 基金会详情: Slab

    • 壁炉功能: Electric / Living Room

    • 洗衣功能: Electric Dryer Hookup / Inside / Laundry Room / Washer Hookup

    • 地段特征: Oversized Lot

    • 方向面: South

    • 壁炉: 是

    • 水体名称: LAKE NORRIS, ST JOHNS RIVER

    • 车库空间: 2

    • 附属车库: 是

    • 车库: 是

    • 生活区域: 2730

    • 水源: Well

    • 细分名称: ROYAL TRAILS UNIT 01

类似房屋

41719 ASPEN DRIVE placeholder 41719 ASPEN DRIVE
32 天
待售
房屋
$569,900
4 贝兹 3 浴室 2,267 平方英尺
41719 ASPEN DRIVE
30807 QUINCE AVENUE placeholder 30807 QUINCE AVENUE
90 天
待售
房屋
$599,000
4 贝兹 2 浴室 2,660 平方英尺
30807 QUINCE AVENUE
45009 3RD STREET placeholder 45009 3RD STREET
-$225K (2025/10/06)
待售
$475,000
3 贝兹 2 浴室 2,350 平方英尺
45009 3RD STREET
29933 FULLERVILLE ROAD placeholder 29933 FULLERVILLE ROAD
-$20K (2025/11/12)
待售
房屋
$810,000
3 贝兹 2 浴室 3,161 平方英尺
29933 FULLERVILLE ROAD
39817 FOREST DRIVE placeholder 39817 FOREST DRIVE
128 天
待售
房屋
$629,000
4 贝兹 2 浴室 2,660 平方英尺
39817 FOREST DRIVE
30626 QUINCE AVENUE placeholder 30626 QUINCE AVENUE
-$20K (2025/10/16)
待售
房屋
$574,900
4 贝兹 2 浴室 2,660 平方英尺
30626 QUINCE AVENUE
43534 NATCHEZ STREET placeholder 43534 NATCHEZ STREET
-$49K (2025/09/22)
待售
房屋
$750,000
6 贝兹 4 浴室 4,436 平方英尺
43534 NATCHEZ STREET
000 BEACH DRIVE placeholder 000 BEACH DRIVE
163 天
待售
地段/土地
$825,000
0 room(s)
000 BEACH DRIVE

The multiple listing information is provided by the Stellar MLS from a copyrighted compilation of listings. The compilation of listings and each individual listing are ©2025-present Stellar MLS. All Rights Reserved. The information provided is for consumers' personal, noncommercial use and may not be used for any purpose other than to identify prospective properties consumers may be interested in purchasing. All properties are subject to prior sale or withdrawal. All information provided is deemed reliable but is not guaranteed accurate, and should be independently verified. Listing courtesy of: TREE FROG REALTY, LLC