特性
探索我们的清单
聯繫
告诉我们您的需求

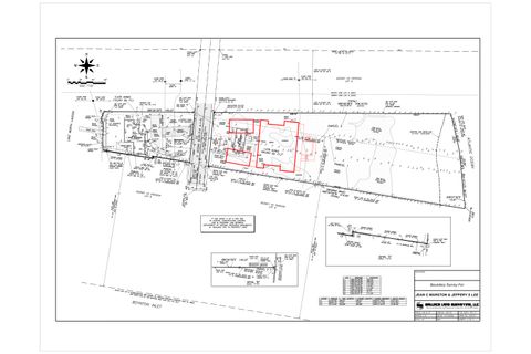
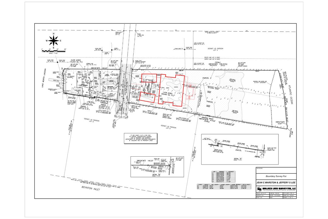
3070 Ocean, Manalapan, FL 33462

商业的 待售
$16,750,000

BTC: 246.32352941

ETH: 167,500.00000000

236 天
滨水区
0 room(s)
Est. 预计销售范围: $0 - $0
$0

总览

Unmatched Value - Ocean-to-Intracoastal Estate Site in ManalapanDiscover the best-priced ocean-to-Intracoastal property currently available in Manalapan .Design and build your custom dream home on this expansive 1.2-acre parcel, offering 140 feet of direct ocean frontage. This rare opportunity allows you to enjoy breathtaking sunrises over the Atlantic and glorious sunsets from your private Intracoastal cabana, with panoramic views of lush native landscapes.With pristine white sand beaches, turquoise waters, and a private dock on protected Intracoastal waters just minutes from the Boynton Beach Inlet This property is a boater's dream.

位置

详情与特色

类型:
Commercial Land
停车:
没有数据
建造年份:
没有数据
地段:
52272 平方英尺
暖气:
没有数据
价格/平方英尺:
没有数据
冷气:
没有数据
HOA:
没有数据
更多事实和特点
  • 地段

    • 地段: 52272 平方英尺

    其他财产信息

    • 包裹编号: 42434510010000061

    • 分区: R-1A(c

  • 类型与风格

    • 财产种类: Commercial Land

    • 属性子类型: Single Family Residence

  • 其他财政信息

    • 年税额: $41,235

  • 来源细节

    • MLS ID: RX-11115734

    其他详情

    • 方向面: South on A1A from Ocean Avenue

    • 滨水区: 是

    • 车库: 是

    • 细分名称: GEDNEY VS PIERSON

类似房屋

1520 Paslay, Manalapan, FL 33462 placeholder 1520 Paslay, Manalapan, FL 33462
112 天
待售
房屋
$19,500,000
6 贝兹 8 浴室 8,176 平方英尺
1520 Paslay, Manalapan, FL 33462
5929 Ocean, Ocean Ridge, FL 33435 placeholder 5929 Ocean, Ocean Ridge, FL 33435
137 天
待售
房屋
$12,995,000
6 贝兹 6 浴室 6,600 平方英尺
5929 Ocean, Ocean Ridge, FL 33435
1635 Lands End Rd, Manalapan FL 33462 placeholder 1635 Lands End Rd, Manalapan FL 33462
157 天
待售
房屋
$20,500,000
4 贝兹 5 浴室 5,212 平方英尺
1635 Lands End Rd, Manalapan FL 33462
1422 Atlantic, Lantana, FL 33462 placeholder 1422 Atlantic, Lantana, FL 33462
203 天
待售
房屋
$21,000,000
7 贝兹 8 浴室 7,631 平方英尺
1422 Atlantic, Lantana, FL 33462
5001 Old Ocean, Ocean Ridge, FL 33435 placeholder 5001 Old Ocean, Ocean Ridge, FL 33435
270 天
待售
联排别墅
$12,950,000
4 贝兹 4 浴室 5,179 平方英尺
5001 Old Ocean, Ocean Ridge, FL 33435
5000 Ocean, Manalapan, FL 33462 placeholder 5000 Ocean, Manalapan, FL 33462
2269 天
待售
商业的
$19,999,999
0 room(s)
5000 Ocean, Manalapan, FL 33462

The multiple listing information is provided by the Beaches MLS from a copyrighted compilation of listings. The compilation of listings and each individual listing are ©2026-present Beaches MLS. All Rights Reserved. The information provided is for consumers' personal, noncommercial use and may not be used for any purpose other than to identify prospective properties consumers may be interested in purchasing. All properties are subject to prior sale or withdrawal. All information provided is deemed reliable but is not guaranteed accurate, and should be independently verified. Listing courtesy of: The Corcoran Group