特性
探索我们的清单
聯繫
告诉我们您的需求

316 SW CABOOSE DRIVE

房屋 待售
$339,000

BTC: 5.10158014

ETH: 173.84615385

8 天
3 贝兹
2 浴室
1,300 平方英尺
Est. 预计销售范围: $0 - $0
$0

总览

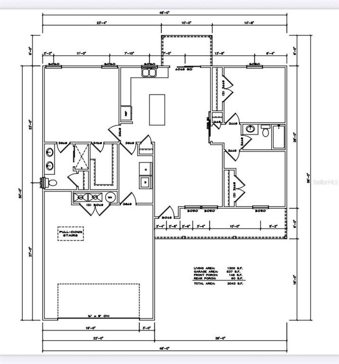
Under Construction. NEW CONSTRUCTION to be completed the end of January 2026. This beautifully designed 3-bedroom, 2-bath home offers both style and function in a serene Fort White setting. Featuring an open-concept floor plan, the main living areas are finished with durable and stylish luxury vinyl plank flooring, creating a seamless and inviting space for everyday living and entertaining. The open concept floor plan brings everything and everyone together. Enjoy this beautiful kitchen featuring granite counters, stainless steel appliances and solid wood cabinets with soft close doors and drawers along with an island providing additional space for entertaining. The spacious primary suite is a true retreat, complete with a large walk-in closet, and a spa-inspired ensuite bath featuring a tiled walk-in shower and dual vanities. The two additional bedrooms are located on the opposite side of the home and share a well-appointed bathroom with a stylish tiled shower. A centrally located laundry room between the kitchen and 2-car garage adds convenience, and the back porch provides the perfect spot for outdoor entertaining or quiet mornings surrounded by nature. Located in the sought after community of Fort White Station on just a half an acre, this home is just minutes from Downtown High Springs with the benefit of Columbia County taxes! Whether you're seeking a peaceful primary residence or a weekend escape near Florida's springs and rivers, this thoughtfully built home delivers comfort, quality, and timeless appeal. Just 25 minutes to Gainesville and 20 minutes to Lake City, this is the perfect retreat from everyday work life to the country.

位置

佛罗里达 FORT WHITE 32038 房屋 待售

详情与特色

类型:
Residential
停车:
没有数据
建造年份:
2026
地段:
0.50 英亩
暖气:
Electric
价格/平方英尺:
$261
冷气:
Central Air
HOA:
没有数据
更多事实和特点
  • 地板

    • Luxury Vinyl

    暖气

    • Electric

    冷气

    • Central Air

    设备

    • Dishwasher

    • Microwave

    • Range

    • Refrigerator

    其他室内特点

    • Living Room/Dining Room Combo

    • Open Floorplan

    卧室和浴室

    • 卧室: 3

    • 完整的浴室: 2

  • 房屋

    • 等级: One

    • 外观特征: Lighting

    地段

    • 地段: 0.50 英亩

    其他财产信息

    • 包裹编号: 346S1604059124

    • 分区: RES

  • 类型与风格

    • 财产种类: Residential

    • 属性子类型: Single Family Residence

  • 公益

    • Electricity Connected

    • Public

  • 其他财政信息

    • 年税额: $197

  • 来源细节

    • MLS ID: GC536211

    其他详情

    • 建筑材料: Cement Siding

    • 基金会详情: Slab

    • 洗衣功能: Inside

    • 方向面: West

    • 车库空间: 2

    • 附属车库: 是

    • 车库: 是

    • 生活区域: 1300

    • 水源: Public

    • 细分名称: FORT WHITE STATION

类似房屋

288 SW CABOOSE DRIVE placeholder 288 SW CABOOSE DRIVE
8 天
待售
房屋
$339,000
3 贝兹 2 浴室 1,300 平方英尺
288 SW CABOOSE DRIVE
601 SW QUARRY CIRCLE placeholder 601 SW QUARRY CIRCLE
33 天
待售
$260,000
4 贝兹 2 浴室 1,680 平方英尺
601 SW QUARRY CIRCLE
317 SW CABOOSE DRIVE placeholder 317 SW CABOOSE DRIVE
-$30K (2025/12/01)
待售
房屋
$339,999
3 贝兹 2 浴室 1,618 平方英尺
317 SW CABOOSE DRIVE
SW COLES COURT placeholder SW COLES COURT
140 天
待售
地段/土地
$245,000
0 room(s)
SW COLES COURT

The multiple listing information is provided by the Stellar MLS from a copyrighted compilation of listings. The compilation of listings and each individual listing are ©2026-present Stellar MLS. All Rights Reserved. The information provided is for consumers' personal, noncommercial use and may not be used for any purpose other than to identify prospective properties consumers may be interested in purchasing. All properties are subject to prior sale or withdrawal. All information provided is deemed reliable but is not guaranteed accurate, and should be independently verified. Listing courtesy of: RE/MAX PROFESSIONALS