特性
探索我们的清单
聯繫
告诉我们您的需求

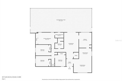
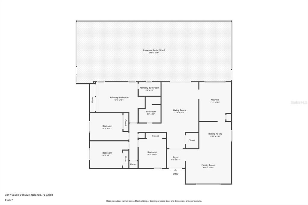
3217 CASTLE OAK AVENUE

房屋 合同活跃
$365,000

BTC: 4.22698321

ETH: 124.74367738

14 天
4 贝兹
2 浴室
1,857 平方英尺
Est. 预计销售范围: $0 - $0
$0

总览

Under contract-accepting backup offers. Tucked away on a corner lot in the Forrest Park community—known for its suburban charm and no HOA—this 4-bedroom, 2-bathroom POOL home is a perfect match for first-time homebuyers or anyone looking for space and value. With a freshly painted interior and a functional layout, this home offers a formal living and dining room, a separate family room for added versatility. The kitchen is equipped with stainless steel appliances, a center island, and pantry space. The primary suite includes a private bathroom. The additional bedrooms are ideal for a growing family, guests, or a home office. Step outside to your screened-in, in-ground pool—perfect for Florida summers—and enjoy the extra yard space, storage shed, and 2-car garage. New water heater installed in 2025, along with Alumiconn connectors added to all device boxes (switches, outlets, and GFCIs) for enhanced safety and reliability. Forrest Park offers easy access to shopping, dining, and recreation, with the convenience of being just a short drive from Downtown Orlando and major roadways like 417 and 408. Don’t miss this rare opportunity to own a corner-lot pool home with no HOA and endless potential. Call us today to schedule a showing!

位置

佛罗里达 ORLANDO 32808 房屋 合同活跃

详情与特色

类型:
Residential
停车:
Driveway
建造年份:
1970
地段:
0.22 英亩
暖气:
Central
价格/平方英尺:
$197
冷气:
Central Air
HOA:
没有数据
更多事实和特点
  • 地板

    • Other

    • Tile

    暖气

    • Central

    冷气

    • Central Air

    设备

    • Microwave

    • Range

    • Refrigerator

    其他室内特点

    • Ceiling Fan(s)

    • Living Room/Dining Room Combo

    卧室和浴室

    • 卧室: 4

    • 完整的浴室: 2

  • 停车

    • Driveway

    房屋

    • 等级: One

    • 私人泳池: 是

    • 外观特征: Sliding Doors

    地段

    • 地段: 0.22 英亩

    其他财产信息

    • 包裹编号: 072229285002090

    • 分区: R-1A

  • 类型与风格

    • 财产种类: Residential

    • 属性子类型: Single Family Residence

  • 公益

    • Cable Available

    • Electricity Connected

    • Sewer Connected

    • Water Connected

  • 其他财政信息

    • 年税额: $5,999

  • 来源细节

    • MLS ID: O6309896

    其他详情

    • 建筑材料: Block / Concrete

    • 基金会详情: Slab

    • 洗衣功能: In Garage

    • 地段特征: Corner Lot / Sidewalk / Unincorporated

    • 天井和门廊特色: Other / Patio / Screened

    • 泳池特色: In Ground

    • 方向面: West

    • 其他结构: Shed(s)

    • 车库空间: 2

    • 附属车库: 是

    • 车库: 是

    • 生活区域: 1857

    • 水源: Public

    • 细分名称: FOREST PARK

类似房屋

1415 ZENITH PLACE placeholder 1415 ZENITH PLACE
合同活跃
房屋
$259,990
4 贝兹 2 浴室 1,448 平方英尺
1415 ZENITH PLACE
 placeholder
合同活跃
房屋
$265,000
4 贝兹 2 浴室 1,830 平方英尺
1851 WINDMILL DRIVE placeholder 1851 WINDMILL DRIVE
合同活跃
房屋
$324,900
3 贝兹 2 浴室 1,944 平方英尺
1851 WINDMILL DRIVE
4719 MIRANDA CIRCLE placeholder 4719 MIRANDA CIRCLE
1 天
合同活跃
房屋
$279,000
3 贝兹 2 浴室 1,504 平方英尺
4719 MIRANDA CIRCLE
7202 EDGEWATER SHORES COURT placeholder 7202 EDGEWATER SHORES COURT
3 天
合同活跃
房屋
$279,999
3 贝兹 2 浴室 1,146 平方英尺
7202 EDGEWATER SHORES COURT
4849 VICTORY DRIVE placeholder 4849 VICTORY DRIVE
3 天
合同活跃
房屋
$260,000
3 贝兹 1 浴室 972 平方英尺
4849 VICTORY DRIVE
5906 ENGLAND AVENUE placeholder 5906 ENGLAND AVENUE
4 天
合同活跃
房屋
$357,800
4 贝兹 2 浴室 1,582 平方英尺
5906 ENGLAND AVENUE
5502 PARK HURST DRIVE placeholder 5502 PARK HURST DRIVE
5 天
合同活跃
房屋
$310,000
3 贝兹 2 浴室 1,436 平方英尺
5502 PARK HURST DRIVE

The multiple listing information is provided by the Stellar MLS from a copyrighted compilation of listings. The compilation of listings and each individual listing are ©2025-present Stellar MLS. All Rights Reserved. The information provided is for consumers' personal, noncommercial use and may not be used for any purpose other than to identify prospective properties consumers may be interested in purchasing. All properties are subject to prior sale or withdrawal. All information provided is deemed reliable but is not guaranteed accurate, and should be independently verified. Listing courtesy of: MEP REALTY INVESTMENTS LLC