特性
探索我们的清单
聯繫
告诉我们您的需求

3520 NW 46TH TERRACE

房屋 合同活跃
$349,900

BTC: 3.60400299

ETH: 112.87096774

-$30K (2025/12/22)
183 天
4 贝兹
2 浴室
1,958 平方英尺
Est. 预计销售范围: $0 - $0
$0

总览

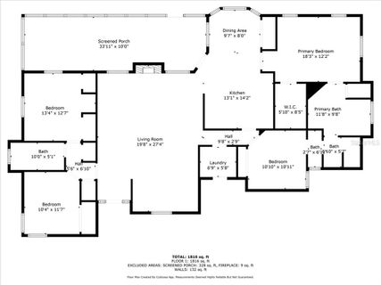
Under contract-accepting backup offers. This expansive 4-bedroom, 2-bath home offers generous living space and modern updates in a highly convenient Gainesville location. Featuring an updated kitchen, laminate flooring throughout, and a spacious back porch perfect for relaxing or entertaining, this property combines comfort with functionality. With a spacious 2 car garage, a wood burning fireplace, and a large master bathroom with a soaking tub, you are sure to be impressed with this home. Located just 5.1 miles from Ben Hill Griffin Stadium and 6.2 miles from the University of Florida, the home provides quick access to major schools, healthcare centers, and local attractions. This home also offers close proximity to Santa Fe College, the Florida Museum of Natural History and Butterfly Rainforest, the Regal Cinemas Royal Park Stadium 16, or even a short trip to some popular springs for enjoying the summer sun. The Gainesville Regional Airport is conveniently located just 6.8 miles away. With free private parking and a central location, this move-in ready home offers an excellent opportunity for both homeowners and investors alike.

位置

详情与特色

类型:
Residential
停车:
没有数据
建造年份:
1989
地段:
0.25 英亩
暖气:
Central / Natural Gas
价格/平方英尺:
$179
冷气:
Central Air
HOA:
没有数据
更多事实和特点
  • 地板

    • Laminate

    暖气

    • Central

    • Natural Gas

    冷气

    • Central Air

    设备

    • Dishwasher

    • Microwave

    • Range

    • Refrigerator

    其他室内特点

    • Ceiling Fan(s)

    • Split Bedroom

    • Thermostat

    • Vaulted Ceiling(s)

    卧室和浴室

    • 卧室: 4

    • 完整的浴室: 2

  • 房屋

    • 等级: One

    • 外观特征: Other

    地段

    • 地段: 0.25 英亩

    其他财产信息

    • 包裹编号: 06120010009

    • 分区: PD

  • 类型与风格

    • 财产种类: Residential

    • 属性子类型: Single Family Residence

  • 公益

    • Cable Connected

    • Electricity Connected

  • 其他财政信息

    • 年税额: $6,798

  • 来源细节

    • MLS ID: OM704780

    其他详情

    • 建筑材料: Wood Frame

    • 基金会详情: Slab

    • 壁炉功能: Wood Burning

    • 洗衣功能: Inside / Laundry Room

    • 方向面: East

    • 壁炉: 是

    • 车库空间: 2

    • 附属车库: 是

    • 车库: 是

    • 生活区域: 1958

    • 水源: Public

    • 细分名称: HYDE PARK

类似房屋

3333 NW 38TH STREET placeholder 3333 NW 38TH STREET
合同活跃
房屋
$405,000
4 贝兹 2 浴室 2,510 平方英尺
3333 NW 38TH STREET
4122 NW 59TH TERRACE placeholder 4122 NW 59TH TERRACE
2 天
合同活跃
房屋
$342,000
3 贝兹 2 浴室 1,492 平方英尺
4122 NW 59TH TERRACE
3018 NW 2ND AVENUE placeholder 3018 NW 2ND AVENUE
9 天
合同活跃
房屋
$359,900
3 贝兹 2 浴室 1,421 平方英尺
3018 NW 2ND AVENUE
610 NW 34TH STREET placeholder 610 NW 34TH STREET
11 天
合同活跃
房屋
$250,000
3 贝兹 2 浴室 1,288 平方英尺
610 NW 34TH STREET
2847 NW 63RD PLACE placeholder 2847 NW 63RD PLACE
11 天
合同活跃
房屋
$299,900
3 贝兹 2 浴室 1,176 平方英尺
2847 NW 63RD PLACE
5006 NW 22ND STREET placeholder 5006 NW 22ND STREET
12 天
合同活跃
房屋
$324,900
3 贝兹 2 浴室 1,487 平方英尺
5006 NW 22ND STREET
4535 NW 37TH TERRACE placeholder 4535 NW 37TH TERRACE
14 天
合同活跃
房屋
$330,000
4 贝兹 2 浴室 2,780 平方英尺
4535 NW 37TH TERRACE
4907 NW 43rd STREET UNIT B placeholder 4907 NW 43rd STREET UNIT B
19 天
合同活跃
商业的
$399,000
0 room(s) 2,762 平方英尺
4907 NW 43rd STREET UNIT B

The multiple listing information is provided by the Stellar MLS from a copyrighted compilation of listings. The compilation of listings and each individual listing are ©2026-present Stellar MLS. All Rights Reserved. The information provided is for consumers' personal, noncommercial use and may not be used for any purpose other than to identify prospective properties consumers may be interested in purchasing. All properties are subject to prior sale or withdrawal. All information provided is deemed reliable but is not guaranteed accurate, and should be independently verified. Listing courtesy of: YOUNG REAL ESTATE