特性
探索我们的清单
聯繫
告诉我们您的需求

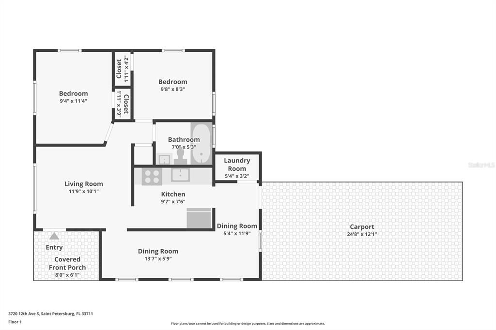
3720 12TH AVENUE S

房屋 待售
$240,000

BTC: 3.49690597

ETH: 119.13330520

25 天
2 贝兹
1 浴室
640 平方英尺
Est. 预计销售范围: $0 - $0
$0

总览

Welcome to this spectacular, fully renovated 2-bedroom, 1-bathroom home, where every detail has been thoughtfully updated for immediate enjoyment. Forget the stress of older properties. This is your chance to own a home where all the heavy lifting is already done! Enjoy superior comfort and efficiency with the **brand new central HVAC system and ducting**. Peace of mind is guaranteed with a **newer roof (2020)** protecting your home and a **brand new tankless water heater**. Step inside and be impressed by the bright, inviting ambiance created by **new flooring** throughout and light-filled **newer windows**. The kitchen is a true highlight, featuring **brand-new appliances** and stylish, modern finishes. The bathroom also received a complete, contemporary refresh in 2025. Large carport at the rear access to the home provides piece of mind for you vehicle as well! Location offers unmatched convenience: the home is ideally situated directly across the street from Jamerson Elementary. Priced to ensure a quick sale, this exceptional, low-maintenance opportunity won't last long. Schedule your private viewing today!

位置

佛罗里达 ST PETERSBURG 33711 房屋 待售

详情与特色

类型:
Residential
停车:
没有数据
建造年份:
1956
地段:
0.11 英亩
暖气:
Central / Electric
价格/平方英尺:
$375
冷气:
Central Air
HOA:
没有数据
更多事实和特点
  • 地板

    • Luxury Vinyl

    暖气

    • Central

    • Electric

    冷气

    • Central Air

    设备

    • Microwave

    • Range

    • Refrigerator

    其他室内特点

    • Open Floorplan

    • Split Bedroom

    • Thermostat

    卧室和浴室

    • 卧室: 2

    • 完整的浴室: 1

  • 房屋

    • 等级: One

    • 外观特征: Awning(s) / Lighting

    地段

    • 地段: 0.11 英亩

    其他财产信息

    • 包裹编号: 273116559620000040

  • 类型与风格

    • 财产种类: Residential

    • 属性子类型: Single Family Residence

  • 公益

    • Cable Connected

    • Electricity Connected

    • Sewer Connected

    • Water Connected

  • 其他财政信息

    • 年税额: $884

  • 来源细节

    • MLS ID: O6366768

    其他详情

    • 建筑材料: Cement Siding / Wood Frame / Wood Siding

    • 基金会详情: Concrete Perimeter / Crawlspace

    • 洗衣功能: Inside

    • 方向面: South

    • 生活区域: 640

    • 水源: Public

    • 地块大小: 40 x 120

    • 细分名称: MATTHEWS & YATES REP

类似房屋

5960 30TH AVENUE S UNIT 103 placeholder 5960 30TH AVENUE S UNIT 103
待售
公寓/合作社
$212,000
1 贝兹 1 浴室 1,060 平方英尺
5960 30TH AVENUE S UNIT 103
1318 PRESTON STREET S placeholder 1318 PRESTON STREET S
待售
房屋
$169,900
2 贝兹 1 浴室 776 平方英尺
1318 PRESTON STREET S
841 4TH AVENUE N UNIT 38 placeholder 841 4TH AVENUE N UNIT 38
待售
公寓/合作社
$199,000
1 贝兹 1 浴室 850 平方英尺
841 4TH AVENUE N UNIT 38
2567 15TH AVENUE S placeholder 2567 15TH AVENUE S
待售
房屋
$269,900
4 贝兹 2 浴室 1,677 平方英尺
2567 15TH AVENUE S
1730 17TH STREET S placeholder 1730 17TH STREET S
1 天
待售
房屋
$299,900
3 贝兹 1 浴室 1,346 平方英尺
1730 17TH STREET S
1711 41ST STREET S placeholder 1711 41ST STREET S
1 天
待售
房屋
$275,000
3 贝兹 1 浴室 840 平方英尺
1711 41ST STREET S
6317 18TH AVENUE N placeholder 6317 18TH AVENUE N
2 天
待售
房屋
$299,000
2 贝兹 1 浴室 1,081 平方英尺
6317 18TH AVENUE N
5960 30TH AVENUE S UNIT 411 placeholder 5960 30TH AVENUE S UNIT 411
2 天
待售
公寓/合作社
$279,900
2 贝兹 2 浴室 1,250 平方英尺
5960 30TH AVENUE S UNIT 411

The multiple listing information is provided by the Stellar MLS from a copyrighted compilation of listings. The compilation of listings and each individual listing are ©2026-present Stellar MLS. All Rights Reserved. The information provided is for consumers' personal, noncommercial use and may not be used for any purpose other than to identify prospective properties consumers may be interested in purchasing. All properties are subject to prior sale or withdrawal. All information provided is deemed reliable but is not guaranteed accurate, and should be independently verified. Listing courtesy of: REDFIN CORPORATION