特性
探索我们的清单
聯繫
告诉我们您的需求

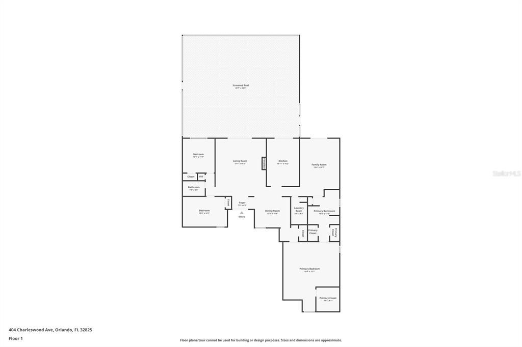
404 CHARLESWOOD AVENUE

房屋 合同活跃
$489,900

BTC: 5.40624350

ETH: 166.63265306

-$10K (2025/12/10)
49 天
3 贝兹
2 浴室
2,261 平方英尺
Est. 预计销售范围: $0 - $0
$0

总览

Under contract-accepting backup offers. Beautifully updated and move-in ready! This charming home offers great curb appeal and a long list of upgrades completed in recent years. The interior and exterior were freshly painted in 2025, and new luxury vinyl plank flooring has been installed throughout, creating a seamless, modern look. The home also features a newer roof installed in 2019. Inside, you’ll find a welcoming family room that flows into the formal dining area. The kitchen features a new refrigerator and dishwasher (2025) and opens to a spacious family room with French doors leading out to the pool area. Both bathrooms have been fully renovated, and the primary suite offers two entrances, generous storage closets, and an ADA-compliant bathroom. Additional updates include new windows (2021), a rescreened pool enclosure (2025), and a large, attached shed that’s fully sealed and equipped with lighting — perfect for storage or a workshop. The home is conveniently located close to shopping, dining, and more!

位置

佛罗里达 ORLANDO 32825 房屋 合同活跃

详情与特色

类型:
Residential
停车:
没有数据
建造年份:
1981
地段:
0.40 英亩
暖气:
Central
价格/平方英尺:
$217
冷气:
Central Air
HOA:
没有数据
更多事实和特点
  • 地板

    • Carpet

    • Luxury Vinyl

    暖气

    • Central

    冷气

    • Central Air

    设备

    • Dishwasher

    • Microwave

    • Range

    • Refrigerator

    其他室内特点

    • Ceiling Fan(s)

    • High Ceilings

    • Open Floorplan

    • Thermostat

    卧室和浴室

    • 卧室: 3

    • 完整的浴室: 2

  • 房屋

    • 等级: One

    • 私人泳池: 是

    • 外观特征: French Doors

    地段

    • 地段: 0.40 英亩

    其他财产信息

    • 包裹编号: 312231199000140

    • 分区: R-1AA

  • 类型与风格

    • 财产种类: Residential

    • 属性子类型: Single Family Residence

  • 公益

    • Electricity Connected

    • Sewer Connected

    • Water Connected

  • 其他财政信息

    • 年税额: $2,166

  • 来源细节

    • MLS ID: O6357936

    其他详情

    • 建筑材料: Stucco / Wood Frame

    • 基金会详情: Slab

    • 壁炉功能: Decorative / Stone

    • 洗衣功能: Laundry Room

    • 泳池特色: In Ground

    • 方向面: Southeast

    • 壁炉: 是

    • 生活区域: 2261

    • 水源: Public

    • 细分名称: DEERWOOD

类似房屋

3180 ERSKINE DRIVE placeholder 3180 ERSKINE DRIVE
3 天
合同活跃
房屋
$389,600
3 贝兹 2 浴室 1,495 平方英尺
3180 ERSKINE DRIVE
10866 FERN ROCK ROAD placeholder 10866 FERN ROCK ROAD
5 天
合同活跃
房屋
$515,000
4 贝兹 3 浴室 2,193 平方英尺
10866 FERN ROCK ROAD
10871 CABBAGE TREE LOOP placeholder 10871 CABBAGE TREE LOOP
6 天
合同活跃
房屋
$455,000
4 贝兹 3 浴室 1,944 平方英尺
10871 CABBAGE TREE LOOP
808 OLD BARN ROAD placeholder 808 OLD BARN ROAD
-$20K (2025/12/14)
合同活跃
房屋
$400,000
3 贝兹 2 浴室 1,460 平方英尺
808 OLD BARN ROAD
2446 RIVER RIDGE DRIVE placeholder 2446 RIVER RIDGE DRIVE
7 天
合同活跃
房屋
$410,000
3 贝兹 2 浴室 1,551 平方英尺
2446 RIVER RIDGE DRIVE
10016 BRIDLEWOOD AVENUE placeholder 10016 BRIDLEWOOD AVENUE
-$25K (2025/12/30)
合同活跃
房屋
$410,000
4 贝兹 2 浴室 1,815 平方英尺
10016 BRIDLEWOOD AVENUE
8365 MATTITUCK CIRCLE placeholder 8365 MATTITUCK CIRCLE
13 天
合同活跃
房屋
$390,000
4 贝兹 2 浴室 1,538 平方英尺
8365 MATTITUCK CIRCLE
2716 CURRY WOODS DRIVE placeholder 2716 CURRY WOODS DRIVE
14 天
合同活跃
房屋
$349,900
3 贝兹 2 浴室 1,420 平方英尺
2716 CURRY WOODS DRIVE

The multiple listing information is provided by the Stellar MLS from a copyrighted compilation of listings. The compilation of listings and each individual listing are ©2026-present Stellar MLS. All Rights Reserved. The information provided is for consumers' personal, noncommercial use and may not be used for any purpose other than to identify prospective properties consumers may be interested in purchasing. All properties are subject to prior sale or withdrawal. All information provided is deemed reliable but is not guaranteed accurate, and should be independently verified. Listing courtesy of: RE/MAX 200 REALTY