特性
探索我们的清单
聯繫
告诉我们您的需求

405 NW 123RD STREET

房屋 待售
$349,900

BTC: 11.66333333

ETH: 174.95000000

35 天
4 贝兹
3 浴室
1,652 平方英尺
Est. 预计销售范围: $0 - $0
$0

总览

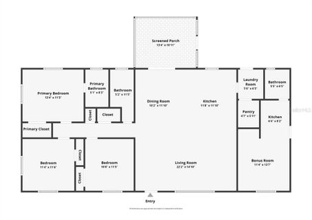
Updated 4-bedroom, 3-bath home on a spacious .94-acre lot in the NW side of town! The kitchen features quartz countertops, stainless steel appliances, a new sink, updated LED lighting, and modern plumbing fixtures. Luxury vinyl plank flooring runs throughout the home. The guest bathroom has been remodeled with a new vanity, shower tile, and tub. The 4th bedroom (no closet) and 3rd bath make up an attached in-law suite with a private entrance. The main house includes indoor laundry and a walk-in pantry. Enjoy the rear screened porch and large wood deck overlooking the expansive .94-acre lot. Additional updates include windows and a roof replaced in 2012. No HOA so bring your boat, RV & toys! Plenty of room to build a detached garage, workshop or carport. Paved road. Utilities include Clay Electric, GRU water, and septic. Conveniently located near Tioga Town Center, Publix Marketplace, Santa Fe College, North Florida Hospital, and numerous shopping and dining options. Currently zoned for Meadowbrook elementary, Kanapaha Middle school and Buchholz High school. Survey available.

位置

佛罗里达 NEWBERRY 32669 房屋 待售

详情与特色

类型:
Residential
停车:
Driveway
建造年份:
1974
地段:
0.94 英亩
暖气:
Central / Electric
价格/平方英尺:
$212
冷气:
Central Air
HOA:
没有数据
更多事实和特点
  • 地板

    • Luxury Vinyl

    • Tile

    暖气

    • Central

    • Electric

    冷气

    • Central Air

    设备

    • Dishwasher

    • Disposal

    • Electric Water Heater

    • Microwave

    • Range

    • Refrigerator

    其他室内特点

    • Ceiling Fan(s)

    • Open Floorplan

    • Solid Surface Counters

    • Thermostat

    • Window Treatments

    卧室和浴室

    • 卧室: 4

    • 完整的浴室: 3

  • 停车

    • Driveway

    房屋

    • 等级: One

    • 外观特征: French Doors

    地段

    • 地段: 0.94 英亩

    其他财产信息

    • 包裹编号: 04337024000

    • 分区: R-1A

  • 类型与风格

    • 财产种类: Residential

    • 属性子类型: Single Family Residence

  • 公益

    • Cable Available

    • Electricity Available

    • Electricity Connected

    • Fiber Optics

    • Public

    • Street Lights

    • Water Available

    • Water Connected

  • 其他财政信息

    • 年税额: $3,709

  • 来源细节

    • MLS ID: GC535077

    其他详情

    • 建筑材料: Vinyl Siding

    • 基金会详情: Slab

    • 洗衣功能: Electric Dryer Hookup / Inside / Laundry Room / Washer Hookup

    • 地段特征: In County / Level

    • 天井和门廊特色: Deck / Rear Porch / Screened

    • 窗户功能: Blinds / Double Pane Windows

    • 方向面: West

    • 建筑风格: Ranch

    • 生活区域: 1652

    • 水源: Public

    • 细分名称: WEST END ESTATES

类似房屋

10505 NW 30TH LANE placeholder 10505 NW 30TH LANE
7 天
待售
房屋
$329,000
3 贝兹 2 浴室 1,787 平方英尺
10505 NW 30TH LANE
514 NW 102ND TERRACE placeholder 514 NW 102ND TERRACE
8 天
待售
房屋
$379,500
3 贝兹 2 浴室 1,569 平方英尺
514 NW 102ND TERRACE
1542 NW 127TH DRIVE placeholder 1542 NW 127TH DRIVE
9 天
待售
房屋
$409,990
4 贝兹 2 浴室 1,982 平方英尺
1542 NW 127TH DRIVE
1296 NW 132ND BOULEVARD placeholder 1296 NW 132ND BOULEVARD
16 天
待售
房屋
$389,900
3 贝兹 2 浴室 1,679 平方英尺
1296 NW 132ND BOULEVARD
1439 NW 136TH DRIVE placeholder 1439 NW 136TH DRIVE
-$15K (2025/11/12)
待售
房屋
$375,000
5 贝兹 3 浴室 2,372 平方英尺
1439 NW 136TH DRIVE
13664 NW 9TH ROAD placeholder 13664 NW 9TH ROAD
-$9K (2025/12/01)
待售
联排别墅
$280,000
3 贝兹 2 浴室 1,690 平方英尺
13664 NW 9TH ROAD
12837 NW 12TH ROAD placeholder 12837 NW 12TH ROAD
31 天
待售
房屋
$359,900
3 贝兹 2 浴室 1,845 平方英尺
12837 NW 12TH ROAD
11064 NW 18TH ROAD placeholder 11064 NW 18TH ROAD
-$25K (2025/11/21)
待售
房屋
$450,000
3 贝兹 2 浴室 2,152 平方英尺
11064 NW 18TH ROAD

The multiple listing information is provided by the Stellar MLS from a copyrighted compilation of listings. The compilation of listings and each individual listing are ©2025-present Stellar MLS. All Rights Reserved. The information provided is for consumers' personal, noncommercial use and may not be used for any purpose other than to identify prospective properties consumers may be interested in purchasing. All properties are subject to prior sale or withdrawal. All information provided is deemed reliable but is not guaranteed accurate, and should be independently verified. Listing courtesy of: WATSON REALTY CORP