特性
探索我们的清单
聯繫
告诉我们您的需求

4187 DIAZ COURT

房屋 待售
$745,000

BTC: 11.05883195

ETH: 388.02083333

-$5K (2025/12/02)
71 天
滨水区
3 贝兹
2 浴室
1,847 平方英尺
Est. 预计销售范围: $0 - $0
$0

总览

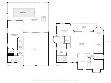
Experience one-of-a-kind sunsets from this REAR WESTERNLY-FACING elevated 3-bedroom, 2-bath saltwater pool & spa home located on one of the deepest canals in Hernando Beach with an interior elevator shaft in place!! This home offers DIRECT GULF ACCESS TO THE GULF with 60 feet of waterfront with a floating dock, perfect for boating and fishing enthusiasts. TRANSFERABLE FLOOD INSURANCE at $1120 DOLLARS PER YEAR and HOME OWNERS INSURANCE at $2218 DOLLARS PER YEAR!!! Inside, you’ll love the open split floor plan with vaulted ceilings and pocket triple sliders that open the living space to a covered lanai overlooking the heated, screened saltwater pool and spa with custom exterior lighting. The kitchen features solid wood cabinetry, brand new quartz counters (2025), crown molding, new lighting, cooktop with hood vent, built-in oven & microwave, pantry, and bar seating—perfect for entertaining. The primary suite is accessed through double doors and includes a large walk-in closet and ensuite bath with an oversized vanity, bidet, and walk-in shower. Two additional bedrooms and a full bath are located on the opposite side of the home, ensuring privacy for guests. Upstairs laundry includes a laundry tub and storage closet. The ground level features a spacious 4-car tandem garage as well a bonus are with a half bath, storage area, and ELEVATOR SHAFT (wired and ready for future installation) with access to the pool deck. Recent upgrades include new vinyl flooring (2025), quartz countertops (2025), updated primary shower (2025), new roof (2024), and new hot water heater (2023), custom pool lighting. Enjoy peace of mind with second level impact windows/storm shutters, low homeowner’s insurance ($2,218/year), and transferable flood insurance of $1123/year—a savings of over $5,600 on flood insurance annually! Additional features: water softener, security system with DVR recording, and elevator-ready construction. Bonus Opportunity: Purchase the adjacent lot for an additional $225,000 to create your own waterfront compound! Hernando Beach is a vibrant waterfront community that offers the best of coastal living—boating, kayaking, paddleboarding, fishing, and more. Just minutes from the world-famous Weeki Wachee Springs, residents also enjoy close proximity to shopping, dining, hospitals, and top-rated schools. The community is golf cart friendly and allows short-term rentals with no HOA, no deed restrictions, making it perfect for full-time residents, part-time snowbirds, or investors. The Suncoast Parkway offers easy commuting to Tampa, Brooksville, and beyond. Don't miss this exceptional Hernando Beach opportunity—where every sunset is a masterpiece!

位置

详情与特色

类型:
Residential
停车:
Garage Door Opener / Tandem
建造年份:
2005
地段:
0.14 英亩
暖气:
Central
价格/平方英尺:
$403
冷气:
Central Air
HOA:
没有数据
更多事实和特点
  • 地板

    • Tile

    • Vinyl

    暖气

    • Central

    冷气

    • Central Air

    设备

    • Built-In Oven

    • Dishwasher

    • Microwave

    • Range Hood

    • Refrigerator

    • Water Softener

    其他室内特点

    • Crown Molding

    • Eating Space In Kitchen

    • High Ceilings

    • Kitchen/Family Room Combo

    • Open Floorplan

    • Solid Wood Cabinets

    • Stone Counters

    • Vaulted Ceiling(s)

    • Walk-In Closet(s)

    • Window Treatments

    卧室和浴室

    • 卧室: 3

    • 洗手间: 1

    • 完整的浴室: 2

  • 停车

    • Garage Door Opener

    • Tandem

    房屋

    • 等级: Two

    • 私人泳池: 是

    • 外观特征: Balcony / French Doors / Irrigation System / Lighting / Sliding Doors

    地段

    • 地段: 0.14 英亩

    其他财产信息

    • 包裹编号: R1322316233009900160

    • 分区: R1B

  • 类型与风格

    • 财产种类: Residential

    • 属性子类型: Single Family Residence

  • 公益

    • Cable Connected

    • Electricity Connected

    • Sewer Connected

    • Water Connected

  • 其他财政信息

    • 年税额: $5,105

  • 来源细节

    • MLS ID: TB8442198

    其他详情

    • 建筑材料: Block / Stucco / Vinyl Siding / Wood Frame

    • 基金会详情: Stilt/On Piling

    • 洗衣功能: Inside / Laundry Room / Upper Level

    • 地段特征: Flood Insurance Required / FloodZone / Near Marina / Near Public Transit / Street Dead-End

    • 天井和门廊特色: Rear Porch / Screened

    • 泳池特色: Gunite / Heated / In Ground / Lighting / Salt Water / Screen Enclosure

    • 窗户功能: Blinds / Shutters / Storm Window(s)

    • 方向面: East

    • 建筑风格: Elevated

    • 滨水区: 是

    • 水体名称: GULF

    • 车库空间: 4

    • 附属车库: 是

    • 车库: 是

    • 生活区域: 1847

    • 水源: Public

    • 细分名称: HERNANDO BEACH

类似房屋

3288 MINNOW CREEK DRIVE placeholder 3288 MINNOW CREEK DRIVE
待售
房屋
$550,000
3 贝兹 2 浴室 1,425 平方英尺
3288 MINNOW CREEK DRIVE
3336 GULFVIEW DRIVE placeholder 3336 GULFVIEW DRIVE
待售
房屋
$575,000
3 贝兹 2 浴室 2,132 平方英尺
3336 GULFVIEW DRIVE
3366 BLUEFISH DRIVE placeholder 3366 BLUEFISH DRIVE
15 天
待售
房屋
$525,000
3 贝兹 3 浴室 1,384 平方英尺
3366 BLUEFISH DRIVE
3358 MINNOW CREEK DRIVE placeholder 3358 MINNOW CREEK DRIVE
21 天
待售
房屋
$595,000
2 贝兹 2 浴室 980 平方英尺
3358 MINNOW CREEK DRIVE
4071 ORIENT DRIVE placeholder 4071 ORIENT DRIVE
42 天
待售
房屋
$600,000
3 贝兹 2 浴室 1,260 平方英尺
4071 ORIENT DRIVE
3392 FERNLEAF DRIVE placeholder 3392 FERNLEAF DRIVE
-$55K (2026/01/07)
待售
房屋
$545,000
3 贝兹 2 浴室 1,650 平方英尺
3392 FERNLEAF DRIVE
3270 HIBISCUS DRIVE placeholder 3270 HIBISCUS DRIVE
47 天
待售
房屋
$547,000
3 贝兹 2 浴室 1,235 平方英尺
3270 HIBISCUS DRIVE
4508 BAHAMA DRIVE placeholder 4508 BAHAMA DRIVE
49 天
待售
房屋
$750,000
3 贝兹 2 浴室 2,610 平方英尺
4508 BAHAMA DRIVE

The multiple listing information is provided by the Stellar MLS from a copyrighted compilation of listings. The compilation of listings and each individual listing are ©2026-present Stellar MLS. All Rights Reserved. The information provided is for consumers' personal, noncommercial use and may not be used for any purpose other than to identify prospective properties consumers may be interested in purchasing. All properties are subject to prior sale or withdrawal. All information provided is deemed reliable but is not guaranteed accurate, and should be independently verified. Listing courtesy of: JT REALTY & ASSOCIATES