特性
探索我们的清单
聯繫
告诉我们您的需求

444 Glenbrook Dr, Atlantis FL 33462

房屋 待售
$999,000

BTC: 33.30000000

ETH: 499.50000000

-$480K (2025/10/13)
318 天
4 贝兹
3 浴室
3,322 平方英尺
Est. 预计销售范围: $0 - $0
$0

总览

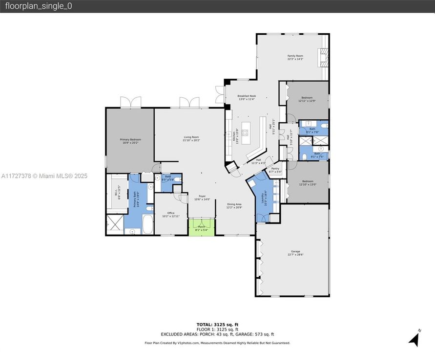
Gorgeous executive one level home on desirable oversized corner golf course lot with circular drive and 2 1/2 garage. This home offers a split bedroom floor plan with four generously-sized bedrooms, 3 full bathrooms and 2 additional ½ baths. Move-in ready with natural light throughout. Kitchen includes new quartz countertops, double oven, built-in microwave, wood cabinets with ample storage, oversized pantry and large island. Off the kitchen is a cozy great room, featuring wood burning fireplace, beamed ceilings and wood floors. Dedicated formal living and dining rooms with marble floors. Whole house generator. New roof in 2023. Fully enclosed pool/patio area with pool bath. Professionally landscaped. City of Atlantis is gated community offering 2 championship golf courses. No HOA!

位置

详情与特色

类型:
Residential
停车:
Circular Driveway / Driveway
建造年份:
1983
地段:
18949 平方英尺
暖气:
Central / Electric / Zoned
价格/平方英尺:
$301
冷气:
Air Purifier / Ceiling Fan(s) / Central Air
HOA:
没有数据
更多事实和特点
  • 地板

    • Marble

    • Wood

    暖气

    • Central

    • Electric

    • Zoned

    冷气

    • Air Purifier

    • Ceiling Fan(s)

    • Central Air

    设备

    • Dishwasher

    • Disposal

    • Ice Maker

    • Electric Range

    • Refrigerator

    • Wall Oven

    • Washer

    • Water Softener Owned

    其他室内特点

    • First Floor Entry

    • Bar

    • Built-in Features

    • Cooking Island

    • Pantry

    • Split Bedroom

    • Walk-In Closet(s)

    • Attic

    • Den/Library/Office

    • Family Room

    • Florida Room

    • Great Room

    • Utility Room/Laundry

    卧室和浴室

    • 卧室: 4

    • 洗手间: 2

    • 完整的浴室: 3

  • 停车

    • Circular Driveway

    • Driveway

    房屋

    • 外观特征: Fruit Trees / Outdoor Shower

    地段

    • 地段: 18949 平方英尺

    其他财产信息

    • 包裹编号: 02424436230260010

    • 分区: R1AA (ci

  • 类型与风格

    • 财产种类: Residential

    • 属性子类型: Single Family Residence

  • 其他财政信息

    • 年税额: $15,380

  • 来源细节

    • MLS ID: A11727378

    其他详情

    • 建筑材料: CBS Construction / Stucco

    • 壁炉功能: Fireplace

    • 洗衣功能: Utility Room/Laundry

    • 地段特征: 1/4 To Less Than 1/2 Acre Lot / On Golf Course

    • 天井和门廊特色: Patio / Screened Porch

    • 泳池特色: In Ground / Fenced / Equipment Stays / Gunite / Heated

    • 窗户功能: Partial Accordian Shutters / Partial Impact Glass / Hurricane Shutters / Blinds / High Impact Windows / Impact Glass / Plantation Shutters / Verticals

    • 方向面: South

    • 建筑风格: Detached / One Story / Ranch

    • 壁炉: 是

    • 车库空间: 2

    • 附属车库: 是

    • 车库: 是

    • 生活区域: 3322

    • 水源: Municipal Water

    • 细分名称: ATLANTIS CITY OF 16-B

类似房屋

2801 Northside, Lake Worth, FL 33462 placeholder 2801 Northside, Lake Worth, FL 33462
1 天
待售
房屋
$849,900
4 贝兹 3 浴室 2,228 平方英尺
2801 Northside, Lake Worth, FL 33462
6206 Indian Forest, Lake Worth, FL 33463 placeholder 6206 Indian Forest, Lake Worth, FL 33463
2 天
待售
房屋
$729,900
4 贝兹 2 浴室 2,372 平方英尺
6206 Indian Forest, Lake Worth, FL 33463
2815 Northside, Lake Worth, FL 33462 placeholder 2815 Northside, Lake Worth, FL 33462
4 天
待售
房屋
$849,900
4 贝兹 3 浴室 2,228 平方英尺
2815 Northside, Lake Worth, FL 33462
194 Orange Tree, Atlantis, FL 33462 placeholder 194 Orange Tree, Atlantis, FL 33462
7 天
待售
公寓/合作社
$825,000
3 贝兹 2 浴室 3,535 平方英尺
194 Orange Tree, Atlantis, FL 33462
3494 S Jog Rd, Green Acres FL 33467 placeholder 3494 S Jog Rd, Green Acres FL 33467
7 天
待售
商业的
$799,000
0 room(s)
3494 S Jog Rd, Green Acres FL 33467
6758 Lake Nona Pl, Lake Worth FL 33463 placeholder 6758 Lake Nona Pl, Lake Worth FL 33463
9 天
待售
房屋
$829,000
4 贝兹 3 浴室 2,673 平方英尺
6758 Lake Nona Pl, Lake Worth FL 33463
7284 Estero, Lake Worth, FL 33463 placeholder 7284 Estero, Lake Worth, FL 33463
11 天
待售
房屋
$825,000
3 贝兹 2 浴室 2,121 平方英尺
7284 Estero, Lake Worth, FL 33463
124 Davis, Palm Springs, FL 33461 placeholder 124 Davis, Palm Springs, FL 33461
12 天
待售
房屋
$720,000
3 贝兹 2 浴室 1,421 平方英尺
124 Davis, Palm Springs, FL 33461

The multiple listing information is provided by the Miami Association of REALTORS® from a copyrighted compilation of listings. The compilation of listings and each individual listing are ©2025-present Miami Association of REALTORS®. All Rights Reserved. The information provided is for consumers' personal, noncommercial use and may not be used for any purpose other than to identify prospective properties consumers may be interested in purchasing. All properties are subject to prior sale or withdrawal. All information provided is deemed reliable but is not guaranteed accurate, and should be independently verified. Listing courtesy of: HomeCoin.com