特性
探索我们的清单
聯繫
告诉我们您的需求

4660 SW 37th Ave, Dania Beach FL 33312

房屋 待售
$1,850,000

BTC: 27.46152900

ETH: 963.54166667

135 天
滨水区
5 贝兹
3 浴室
2,227 平方英尺
Est. 预计销售范围: $0 - $0
$0

总览

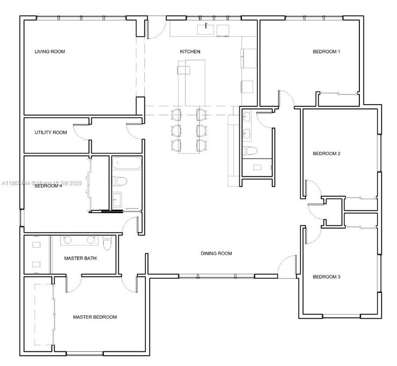
Stunning Waterfront Home in Davis Isles This fully renovated 5-bedroom, 3.5-bathroom home (2,750 sq. ft. plus 607 sq. ft. of detached garage) in the desirable community offers luxury, space, and direct ocean access. 140 ft. of canal frontage with access to Port Everglades and the Intracoastal. Custom finishes throughout, completed in 2022. Detached Garage with Income Potential: Ready for a 2-bedroom unit with river views. Parking for 10 Vehicles, including RVs.(generates income) Deep Pool & Smart Features Heated pool, security cameras, speakers, solar power. Mature trees and new sprinkler system. Close to I-95, airport, shops, dining, and worship places. solar panel loan or $125,000 can be assume. A true Florida paradise perfect for luxury living and boating enthusiasts

位置

详情与特色

类型:
Residential
停车:
Driveway
建造年份:
1967
地段:
19408 平方英尺
暖气:
Central
价格/平方英尺:
$831
冷气:
Central Air
HOA:
没有数据
更多事实和特点
  • 地板

    • Tile

    暖气

    • Central

    冷气

    • Central Air

    设备

    • Dishwasher

    • Disposal

    • Dryer

    • Microwave

    • Wall Oven

    • Washer

    其他室内特点

    • Pantry

    • Family Room

    • Maid/In-Law Quarters

    卧室和浴室

    • 卧室: 5

    • 洗手间: 1

    • 完整的浴室: 3

  • 停车

    • Driveway

    地段

    • 地段: 19408 平方英尺

    其他财产信息

    • 包裹编号: 504230070390

    • 分区: RS-8000

  • 类型与风格

    • 财产种类: Residential

    • 属性子类型: Single Family Residence

  • 其他财政信息

    • 年税额: $15,620

  • 来源细节

    • MLS ID: A11865444

    其他详情

    • 建筑材料: CBS Construction

    • 地段特征: 1/4 To Less Than 1/2 Acre Lot

    • 天井和门廊特色: Deck

    • 泳池特色: In Ground

    • 方向面: West

    • 其他结构: Guest House

    • 建筑风格: Detached / One Story

    • 滨水区: 是

    • 车库空间: 2

    • 车库: 是

    • 生活区域: 2227

    • 水源: Municipal Water

    • 细分名称: DAVIS ISLES SEC 5

类似房屋

4640 SW 32nd Ave # D1, Dania Beach FL 33312 placeholder 4640 SW 32nd Ave # D1, Dania Beach FL 33312
待售
联排别墅
$1,500,000
3 贝兹 2 浴室 2,082 平方英尺
4640 SW 32nd Ave # D1, Dania Beach FL 33312
4740 N 31st Ct, Hollywood FL 33021 placeholder 4740 N 31st Ct, Hollywood FL 33021
20 天
待售
房屋
$1,950,000
6 贝兹 3 浴室 3,203 平方英尺
4740 N 31st Ct, Hollywood FL 33021
1427 SW 23rd St, Fort Lauderdale FL 33315 placeholder 1427 SW 23rd St, Fort Lauderdale FL 33315
22 天
待售
房屋
$1,600,000
4 贝兹 3 浴室 2,831 平方英尺
1427 SW 23rd St, Fort Lauderdale FL 33315
1410 SW 44th Ave # 5, Fort Lauderdale FL 33317 placeholder 1410 SW 44th Ave # 5, Fort Lauderdale FL 33317
27 天
待售
商业的
$1,358,760
0 room(s)
1410 SW 44th Ave # 5, Fort Lauderdale FL 33317
5883 W Brookfield Cir W, Hollywood FL 33312 placeholder 5883 W Brookfield Cir W, Hollywood FL 33312
30 天
待售
房屋
$1,585,000
4 贝兹 4 浴室 2,909 平方英尺
5883 W Brookfield Cir W, Hollywood FL 33312
3333 Sw 59th, Fort Lauderdale, FL 33312 placeholder 3333 Sw 59th, Fort Lauderdale, FL 33312
31 天
待售
房屋
$1,999,000
5 贝兹 4 浴室 4,143 平方英尺
3333 Sw 59th, Fort Lauderdale, FL 33312
3559 Forest View Cir, Dania Beach FL 33312 placeholder 3559 Forest View Cir, Dania Beach FL 33312
39 天
待售
房屋
$1,770,000
4 贝兹 4 浴室 3,084 平方英尺
3559 Forest View Cir, Dania Beach FL 33312
2001 SW 23rd Ave, Fort Lauderdale FL 33312 placeholder 2001 SW 23rd Ave, Fort Lauderdale FL 33312
44 天
待售
房屋
$1,800,000
5 贝兹 4 浴室 2,985 平方英尺
2001 SW 23rd Ave, Fort Lauderdale FL 33312

The multiple listing information is provided by the Miami Association of REALTORS® from a copyrighted compilation of listings. The compilation of listings and each individual listing are ©2026-present Miami Association of REALTORS®. All Rights Reserved. The information provided is for consumers' personal, noncommercial use and may not be used for any purpose other than to identify prospective properties consumers may be interested in purchasing. All properties are subject to prior sale or withdrawal. All information provided is deemed reliable but is not guaranteed accurate, and should be independently verified. Listing courtesy of: G Realty Group, LLC.