特性
探索我们的清单
聯繫
告诉我们您的需求

5130 SW 92nd Ter, Cooper City FL 33328

房屋 最近售出
$510,000

BTC: 5.36842105

ETH: 164.51612903

发售日期: 2025-04-14
6 天
2 贝兹
1 浴室
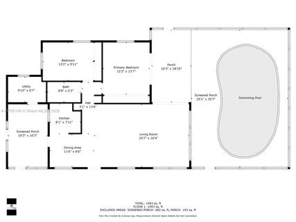
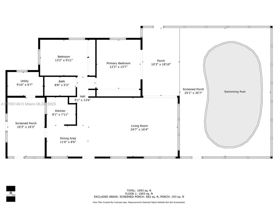
1,102 平方英尺
Est. 预计销售范围: $0 - $0
$0

总览

2 BR-1 BA SFH sits on a fabulous piece of real estate! DOUBLE corner lot (14,486 sq.ft/.3326 acres). NO HOA! While the inside is in original condition, the home has been well loved by original owner! Endless possibilities! Roof 2014, A/C 2014 (coil replaced 2020), hot water heater 2025, accordion shutters, crystal blue in ground swimming pool w/newly rescreened patio Feb 2024. Water/sewer pipes replaced from home to street. Includes Generac generator (2021) that runs entire house in the event of a storm (cost over $20K). New battery installed March 2025. Surge shield on FPL electric meter. Laundry room off carport. Top rated schools: Cooper City Elem./Pioneer Middle! Small solar panel on roof runs the fan to vent the attic. Centrally located! 25 min to beach! 15 min to Hard Rock Casino!

位置

详情与特色

类型:
Residential
停车:
Driveway
建造年份:
1960
地段:
14486 平方英尺
暖气:
Central
价格/平方英尺:
$463
冷气:
Central Air
HOA:
没有数据
更多事实和特点
  • 地板

    • Carpet

    暖气

    • Central

    冷气

    • Central Air

    设备

    • Dryer

    • Washer

    其他室内特点

    • First Floor Entry

    • Utility Room/Laundry

    卧室和浴室

    • 卧室: 2

    • 完整的浴室: 1

  • 停车

    • Driveway

    地段

    • 地段: 14486 平方英尺

    其他财产信息

    • 包裹编号: 504132023241

    • 分区: R-1-A

  • 类型与风格

    • 财产种类: Residential

    • 属性子类型: Single Family Residence

  • 其他财政信息

    • 年税额: $3,495

  • 来源细节

    • MLS ID: A11765149

    其他详情

    • 建筑材料: CBS Construction

    • 洗衣功能: Utility Room/Laundry

    • 地段特征: 1/4 To Less Than 1/2 Acre Lot

    • 泳池特色: In Ground / Screen Enclosure

    • 窗户功能: Partial Accordian Shutters / Hurricane Shutters / Blinds

    • 方向面: West

    • 建筑风格: Detached / One Story

    • 生活区域: 1102

    • 水源: Municipal Water

    • 细分名称: COOPER COLONY ESTATES,Cooper Colony Estate

类似房屋

10101 Woodbury Ct, Pembroke Pines FL 33026 placeholder 10101 Woodbury Ct, Pembroke Pines FL 33026
最近售出
联排别墅
$387,000
2 贝兹 2 浴室 1,277 平方英尺
10101 Woodbury Ct, Pembroke Pines FL 33026
5266 SW 123rd Ave # 1, Cooper City FL 33330 placeholder 5266 SW 123rd Ave # 1, Cooper City FL 33330
最近售出
联排别墅
$375,000
3 贝兹 3 浴室 1,459 平方英尺
5266 SW 123rd Ave # 1, Cooper City FL 33330
4654 Windmill Ln, Davie FL 33328 placeholder 4654 Windmill Ln, Davie FL 33328
最近售出
联排别墅
$376,000
3 贝兹 2 浴室
4654 Windmill Ln, Davie FL 33328
4348 Cascada Cir, Cooper City FL 33024 placeholder 4348 Cascada Cir, Cooper City FL 33024
最近售出
联排别墅
$430,000
3 贝兹 2 浴室 1,280 平方英尺
4348 Cascada Cir, Cooper City FL 33024
4002 Cascada Cir # 1, Cooper City FL 33024 placeholder 4002 Cascada Cir # 1, Cooper City FL 33024
最近售出
联排别墅
$495,000
3 贝兹 2 浴室 1,280 平方英尺
4002 Cascada Cir # 1, Cooper City FL 33024
12271 NW 15th St # 12271, Pembroke Pines FL 33026 placeholder 12271 NW 15th St # 12271, Pembroke Pines FL 33026
最近售出
联排别墅
$470,000
3 贝兹 3 浴室 1,802 平方英尺
12271 NW 15th St # 12271, Pembroke Pines FL 33026
4235 SW 74TH AVENUE placeholder 4235 SW 74TH AVENUE
最近售出
房屋
$365,000
3 贝兹 2 浴室 1,654 平方英尺
4235 SW 74TH AVENUE
4060 Fern Forest Rd, Cooper City FL 33026 placeholder 4060 Fern Forest Rd, Cooper City FL 33026
最近售出
房屋
$459,000
3 贝兹 2 浴室 1,797 平方英尺
4060 Fern Forest Rd, Cooper City FL 33026

The multiple listing information is provided by the Miami Association of REALTORS® from a copyrighted compilation of listings. The compilation of listings and each individual listing are ©2026-present Miami Association of REALTORS®. All Rights Reserved. The information provided is for consumers' personal, noncommercial use and may not be used for any purpose other than to identify prospective properties consumers may be interested in purchasing. All properties are subject to prior sale or withdrawal. All information provided is deemed reliable but is not guaranteed accurate, and should be independently verified. Listing courtesy of: L & L Realty Group