特性
探索我们的清单
聯繫
告诉我们您的需求

5565 NW 26TH LANE

房屋 合同活跃
$368,000

BTC: 4.26172554

ETH: 125.76896787

22 天
3 贝兹
2 浴室
1,808 平方英尺
Est. 预计销售范围: $0 - $0
$0

总览

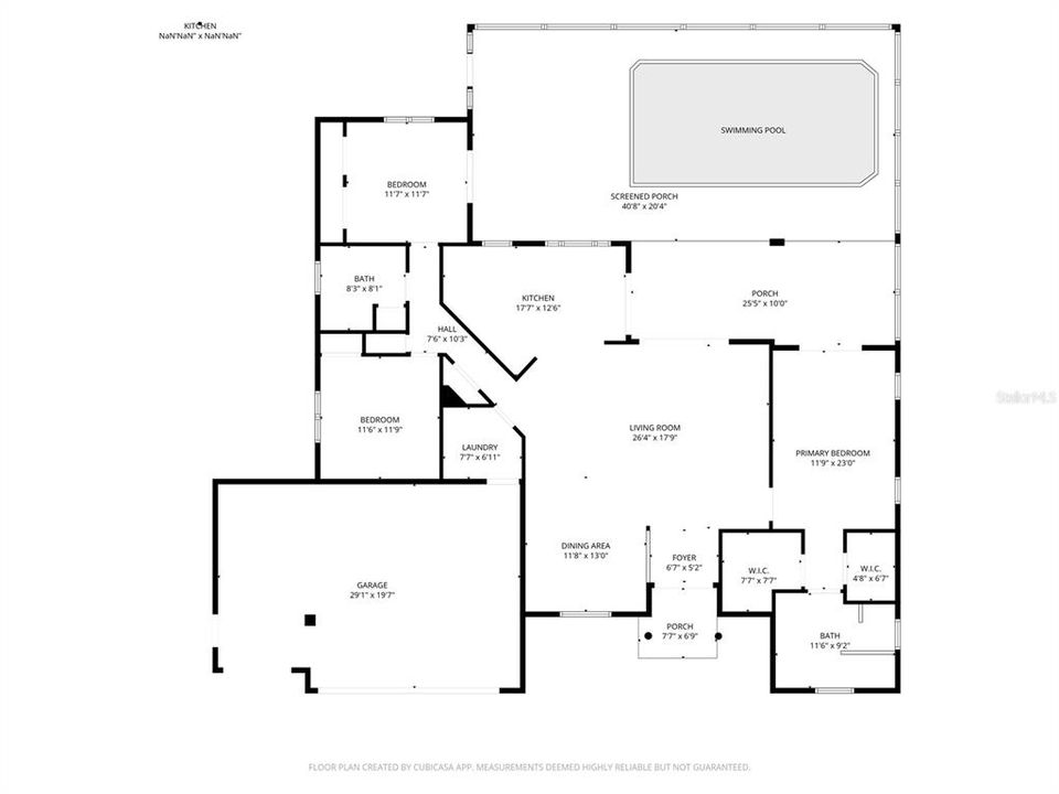
Under contract-accepting backup offers. Welcome to this beautifully maintained 3-bedroom, 2-bathroom SAGO pool home overlooking the 11th fairway in the very popular community Ocala Palms. With recent updates and thoughtful details throughout, this home is move-in ready and perfect for relaxed Florida living. Step into the bright, open kitchen featuring leather granite countertops, stainless steel appliances, upgraded cabinets with pull-out drawers and crown molding, and a convenient island perfect for quick meals or weekend baking sessions. The eat-in kitchen is finished with porcelain tile flooring and solar tubes for an amazing amount of natural light. The spacious living room boasts vaulted ceilings and upgraded fans and light fixtures, offering both style and comfort. Plantation shutters line the windows for privacy and charm. The inviting floor plan leads to a generous primary bedroom featuring two walk-in closets with stylish barn doors, while the ensuite bath includes a walk-in French shower and a dual sink vanity. Enjoy your morning coffee or entertain friends in the fully screened pool area and lanai. The recently installed 24-foot SunSetter awnings add just the right amount of shade for warm afternoons and beautiful sunset views. Speaking of updates—the roof is just over a couple of years old, and the newer 4-ton air conditioning unit helps keep things cool and efficient. You'll also find a large garage with very convenient dual electric screen doors and a dedicated golf cart space, because convenience matters. The home is professionally landscaped, freshly painted inside and out, and includes a front patio where you can wave to your friendly neighbors passing by. Located close to shopping, parks, and public transportation, this home offers easy access to daily essentials with the added perk of golf course views. It’s the place where everyday comfort meets practical elegance.

位置

佛罗里达 OCALA 34482 房屋 合同活跃

详情与特色

类型:
Residential
停车:
Garage Door Opener / Golf Cart Garage
建造年份:
2000
地段:
0.27 英亩
暖气:
Heat Pump
价格/平方英尺:
$204
冷气:
Central Air
HOA:
$294
更多事实和特点
  • 地板

    • Ceramic Tile

    • Porcelain Tile

    暖气

    • Heat Pump

    冷气

    • Central Air

    设备

    • Dishwasher

    • Disposal

    • Dryer

    • Electric Water Heater

    • Exhaust Fan

    • Microwave

    • Range

    • Refrigerator

    • Washer

    其他室内特点

    • Ceiling Fan(s)

    • Eating Space In Kitchen

    • Open Floorplan

    • Split Bedroom

    • Vaulted Ceiling(s)

    • Walk-In Closet(s)

    • Window Treatments

    卧室和浴室

    • 卧室: 3

    • 完整的浴室: 2

  • 停车

    • Garage Door Opener

    • Golf Cart Garage

    房屋

    • 等级: One

    • 私人泳池: 是

    • 外观特征: Irrigation System

    地段

    • 地段: 0.27 英亩

    其他财产信息

    • 包裹编号: 2151702012

    • 分区: PUD

  • 类型与风格

    • 财产种类: Residential

    • 属性子类型: Single Family Residence

  • 公益

    • Underground Utilities

  • 其他财政信息

    • HOA: $294

    • HOA频率: Monthly

    • 年税额: $4,138

  • 来源细节

    • MLS ID: OM713246

    其他详情

    • 建筑材料: Block

    • 基金会详情: Slab

    • 洗衣功能: Laundry Room

    • 地段特征: On Golf Course

    • 泳池特色: Heated / In Ground / Salt Water / Screen Enclosure

    • 窗户功能: Blinds / Shutters

    • 方向面: East

    • 车库空间: 2

    • 附属车库: 是

    • 车库: 是

    • 生活区域: 1808

    • 水源: Public

    • 地块大小: 106 x 110

    • 细分名称: OCALA PALMS UN VII

类似房屋

5677 NW 61ST AVENUE placeholder 5677 NW 61ST AVENUE
5 天
合同活跃
房屋
$289,900
4 贝兹 2 浴室 1,747 平方英尺
5677 NW 61ST AVENUE
5138 NW 19TH PLACE placeholder 5138 NW 19TH PLACE
6 天
合同活跃
房屋
$268,000
3 贝兹 2 浴室 3,153 平方英尺
5138 NW 19TH PLACE
1385 NW 48TH TERRACE placeholder 1385 NW 48TH TERRACE
14 天
合同活跃
房屋
$279,490
4 贝兹 2 浴室 1,879 平方英尺
1385 NW 48TH TERRACE
5567 NW 45TH LANE placeholder 5567 NW 45TH LANE
26 天
合同活跃
房屋
$420,990
3 贝兹 2 浴室 2,023 平方英尺
5567 NW 45TH LANE
2027 NW 50TH CIRCLE placeholder 2027 NW 50TH CIRCLE
28 天
合同活跃
房屋
$299,900
3 贝兹 2 浴室 1,687 平方英尺
2027 NW 50TH CIRCLE
1176 NW 48TH TERRACE placeholder 1176 NW 48TH TERRACE
-$10K (2025/11/04)
合同活跃
房屋
$279,990
4 贝兹 2 浴室 1,879 平方英尺
1176 NW 48TH TERRACE
1240 NW 48TH TERRACE placeholder 1240 NW 48TH TERRACE
+$5K (2025/12/12)
合同活跃
房屋
$284,690
3 贝兹 2 浴室 1,487 平方英尺
1240 NW 48TH TERRACE
1224 NW 48TH TERRACE placeholder 1224 NW 48TH TERRACE
-$12K (2025/11/04)
合同活跃
房屋
$305,790
4 贝兹 3 浴室 2,174 平方英尺
1224 NW 48TH TERRACE

The multiple listing information is provided by the Stellar MLS from a copyrighted compilation of listings. The compilation of listings and each individual listing are ©2025-present Stellar MLS. All Rights Reserved. The information provided is for consumers' personal, noncommercial use and may not be used for any purpose other than to identify prospective properties consumers may be interested in purchasing. All properties are subject to prior sale or withdrawal. All information provided is deemed reliable but is not guaranteed accurate, and should be independently verified. Listing courtesy of: PEGASUS REALTY & ASSOC INC