特性
探索我们的清单
聯繫
告诉我们您的需求

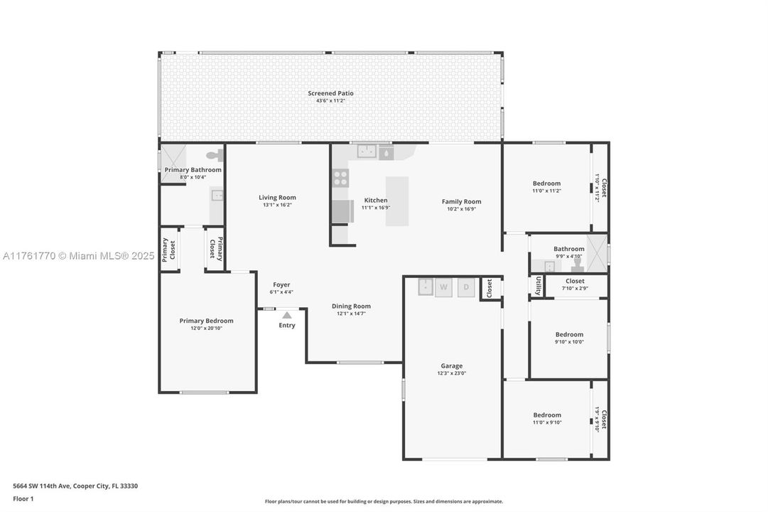
5664 SW 114th Ave, Cooper City FL 33330

房屋 最近售出
$700,000

BTC: 8.05987334

ETH: 350.00000000

发售日期: 2025-07-07
73 天
滨水区
4 贝兹
2 浴室
1,740 平方英尺
Est. 预计销售范围: $0 - $0
$0

总览

Charming 4-Bedroom, 2-Bathroom waterfront home in Cooper City's Forest Lake Community. Feel secure and receive your full insurance discount with a 2017 TILE ROOF AS WELL AS HURRICANE IMPACT WINDOWS, SLIDING DOOR AND GARAGE DOOR. This home features a serene water view, large enclosed patio for entertaining plus plenty of space for a pool. Inside you will find updated bathrooms with modern touches, a beautiful, functional kitchen with real wood cabinets, spacious granite countertops with room for seating and plenty of storage space. Large circular stamped concrete driveway for multiple vehicles to park. Located near A-rated schools, parks, and shopping centers for ultimate convenience This move-in-ready home in a quiet neighborhood is perfect for families.

位置

详情与特色

类型:
Residential
停车:
Circular Driveway
建造年份:
1988
地段:
9482 平方英尺
暖气:
Central
价格/平方英尺:
$422
冷气:
Ceiling Fan(s) / Central Air
HOA:
$25
更多事实和特点
  • 地板

    • Ceramic Floor

    暖气

    • Central

    冷气

    • Ceiling Fan(s)

    • Central Air

    设备

    • Dishwasher

    • Disposal

    • Dryer

    • Refrigerator

    • Self Cleaning Oven

    • Washer

    其他室内特点

    • First Floor Entry

    • Family Room

    卧室和浴室

    • 卧室: 4

    • 完整的浴室: 2

  • 停车

    • Circular Driveway

    地段

    • 地段: 9482 平方英尺

    其他财产信息

    • 包裹编号: 504036120880

    • 分区: R-1-B

  • 类型与风格

    • 财产种类: Residential

    • 属性子类型: Single Family Residence

  • 其他财政信息

    • HOA: $25

    • HOA频率: Monthly

    • 年税额: $3,714

  • 来源细节

    • MLS ID: A11761770

    其他详情

    • 建筑材料: CBS Construction

    • 地段特征: Less Than 1/4 Acre Lot

    • 天井和门廊特色: Screened Porch

    • 窗户功能: Clear Impact Glass / Complete Impact Glass / Partial Panel Shutters/Awnings

    • 方向面: West

    • 建筑风格: Detached / One Story

    • 滨水区: 是

    • 车库空间: 1

    • 车库: 是

    • 生活区域: 1740

    • 水源: Municipal Water

    • 细分名称: FOREST LAKE

类似房屋

1829 NW 126th Ave, Pembroke Pines FL 33028 placeholder 1829 NW 126th Ave, Pembroke Pines FL 33028
最近售出
房屋
$765,000
5 贝兹 3 浴室 2,924 平方英尺
1829 NW 126th Ave, Pembroke Pines FL 33028
2510 Ambassador Ave, Cooper City FL 33026 placeholder 2510 Ambassador Ave, Cooper City FL 33026
最近售出
房屋
$573,500
4 贝兹 2 浴室 2,609 平方英尺
2510 Ambassador Ave, Cooper City FL 33026
11317 Temple St, Cooper City FL 33330 placeholder 11317 Temple St, Cooper City FL 33330
最近售出
房屋
$725,000
4 贝兹 3 浴室 2,864 平方英尺
11317 Temple St, Cooper City FL 33330
2851 SW 111th Ter, Davie FL 33328 placeholder 2851 SW 111th Ter, Davie FL 33328
最近售出
房屋
$650,000
3 贝兹 2 浴室 1,816 平方英尺
2851 SW 111th Ter, Davie FL 33328
13182 NW 18th Ct, Pembroke Pines FL 33028 placeholder 13182 NW 18th Ct, Pembroke Pines FL 33028
最近售出
房屋
$530,000
3 贝兹 2 浴室 1,889 平方英尺
13182 NW 18th Ct, Pembroke Pines FL 33028
10919 Nashville Dr, Cooper City FL 33026 placeholder 10919 Nashville Dr, Cooper City FL 33026
最近售出
房屋
$745,000
4 贝兹 2 浴室 2,486 平方英尺
10919 Nashville Dr, Cooper City FL 33026
13174 Spring Lake Dr, Cooper City FL 33330 placeholder 13174 Spring Lake Dr, Cooper City FL 33330
最近售出
房屋
$925,000
4 贝兹 2 浴室 2,691 平方英尺
13174 Spring Lake Dr, Cooper City FL 33330
13865 NW 20th St, Pembroke Pines FL 33028 placeholder 13865 NW 20th St, Pembroke Pines FL 33028
最近售出
房屋
$760,000
4 贝兹 3 浴室 3,005 平方英尺
13865 NW 20th St, Pembroke Pines FL 33028

The multiple listing information is provided by the Miami Association of REALTORS® from a copyrighted compilation of listings. The compilation of listings and each individual listing are ©2025-present Miami Association of REALTORS®. All Rights Reserved. The information provided is for consumers' personal, noncommercial use and may not be used for any purpose other than to identify prospective properties consumers may be interested in purchasing. All properties are subject to prior sale or withdrawal. All information provided is deemed reliable but is not guaranteed accurate, and should be independently verified. Listing courtesy of: Charles Rutenberg Realty Fort