特性
探索我们的清单
聯繫
告诉我们您的需求

626 PALIO COURT

房屋 待售
$650,000

BTC: 21.66666667

ETH: 325.00000000

8 天
5 贝兹
3 浴室
3,503 平方英尺
Est. 预计销售范围: $0 - $0
$0

总览

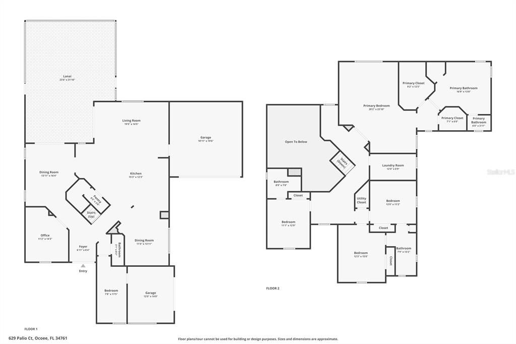
Welcome to this beautifully updated 5-bedroom, 3.5-bath two-story home located in the desirable 24-hour guard-gated community of Westyn Bay. Offering an open and versatile floor plan, this residence features fresh interior and exterior paint, a beautifully maintained front garden, elegant crown molding, upgraded lighting, and multiple decorative wall panel accents throughout the office, dining room, entryway, living room (TV wall), and the primary bedroom. The main level opens with a bright formal dining room, followed by a stunning two-story living room with large windows and sliding doors for abundant natural light. The spacious kitchen overlooks the family room and includes upgraded cabinetry, stainless steel appliances, a large center island with bar seating, tiled backsplash, and a charming under-stairs wet bar/pet nook for added character. A flexible office/5th bedroom and a convenient half bath complete the first floor. Additional recent upgrades include renewed staircase carpet, a small bathroom with new flooring, a new water filtration system, and a new water heater. Upstairs, the expansive primary suite features a tray ceiling, sitting area, and dual walk-in closets with custom built-ins. The spa-style bathroom showcases split vanities with seating space, a corner soaking tub, and a large glass-enclosed shower. Three additional guest bedrooms and two full bathrooms provide comfort and privacy on the second floor. Outdoor living is exceptional: a large screened lanai with an impressive wood-slat ceiling, stone accent wall, a fully equipped outdoor kitchen with built-in grill and exterior cooktop, and an extended patio space. The fully fenced backyard includes fruit trees with their own garden area and a charming gazebo, creating a peaceful and inviting outdoor retreat. Residents of Westyn Bay enjoy resort-style amenities including 24-hour security, a community pool and clubhouse, playgrounds, splash park, tennis and basketball courts, volleyball, baseball and soccer fields, walking/biking trails, professionally maintained common areas, a private dock on Lake Apopka, and included internet services. Conveniently located near SR-429 with easy access to the Turnpike, 408, 414, Winter Garden Village, dining, shopping, and the West Orange Trail. With generous living spaces, thoughtful upgrades, and outstanding community amenities, 626 Palio Court is an exceptional opportunity in West Ocoee.

位置

佛罗里达 OCOEE 34761 房屋 待售

详情与特色

类型:
Residential
停车:
Driveway / Garage Faces Side / Split Garage
建造年份:
2006
地段:
0.21 英亩
暖气:
Central
价格/平方英尺:
$186
冷气:
Central Air
HOA:
$552
更多事实和特点
  • 地板

    • Tile

    • Hardwood

    暖气

    • Central

    冷气

    • Central Air

    设备

    • Dishwasher

    • Dryer

    • Electric Water Heater

    • Microwave

    • Range

    • Refrigerator

    • Washer

    • Wine Refrigerator

    其他室内特点

    • Built-in Features

    • Ceiling Fan(s)

    • Crown Molding

    • Eating Space In Kitchen

    • High Ceilings

    • Kitchen/Family Room Combo

    • Open Floorplan

    • Solid Surface Counters

    • Solid Wood Cabinets

    • Thermostat

    • Tray Ceiling(s)

    • Walk-In Closet(s)

    • Wet Bar

    卧室和浴室

    • 卧室: 5

    • 洗手间: 1

    • 完整的浴室: 3

  • 停车

    • Driveway

    • Garage Faces Side

    • Split Garage

    房屋

    • 等级: Two

    • 外观特征: Irrigation System / Lighting / Outdoor Grill / Outdoor Kitchen / Rain Gutters / Sidewalk / Sliding Doors / Sprinkler Metered

    地段

    • 地段: 0.21 英亩

    其他财产信息

    • 包裹编号: 062228924702550

    • 分区: R-1AA

  • 类型与风格

    • 财产种类: Residential

    • 属性子类型: Single Family Residence

  • 公益

    • BB/HS Internet Available

    • Cable Available

    • Cable Connected

    • Electricity Available

    • Electricity Connected

    • Sewer Available

    • Sewer Connected

    • Water Available

    • Water Connected

  • 其他财政信息

    • HOA: $552

    • HOA频率: Quarterly

    • 年税额: $8,557

  • 来源细节

    • MLS ID: O6363299

    其他详情

    • 建筑材料: Block

    • 基金会详情: Slab

    • 洗衣功能: Laundry Room

    • 天井和门廊特色: Covered / Patio / Porch / Rear Porch / Screened

    • 方向面: South

    • 车库空间: 3

    • 附属车库: 是

    • 车库: 是

    • 生活区域: 3503

    • 水源: Public

    • 细分名称: WESTYN BAY PH 02 S-1

类似房屋

1260 ARDEN OAKS DRIVE placeholder 1260 ARDEN OAKS DRIVE
待售
房屋
$800,000
4 贝兹 3 浴室 3,478 平方英尺
1260 ARDEN OAKS DRIVE
2178 GREAT EGRET CIRCLE placeholder 2178 GREAT EGRET CIRCLE
1 天
待售
房屋
$499,990
3 贝兹 2 浴室 2,021 平方英尺
2178 GREAT EGRET CIRCLE
2186 GREAT EGRET CIRCLE placeholder 2186 GREAT EGRET CIRCLE
1 天
待售
房屋
$565,990
4 贝兹 2 浴室 2,748 平方英尺
2186 GREAT EGRET CIRCLE
500 TEACUP SPRINGS COURT placeholder 500 TEACUP SPRINGS COURT
8 天
待售
房屋
$530,000
4 贝兹 3 浴室 2,397 平方英尺
500 TEACUP SPRINGS COURT
702 POINTE EMERSON BOULEVARD placeholder 702 POINTE EMERSON BOULEVARD
8 天
待售
房屋
$835,000
5 贝兹 4 浴室 3,777 平方英尺
702 POINTE EMERSON BOULEVARD
3481 MCCORMICK WOODS DR placeholder 3481 MCCORMICK WOODS DR
13 天
待售
房屋
$535,000
5 贝兹 3 浴室 2,550 平方英尺
3481 MCCORMICK WOODS DR
650 TORGIANO DRIVE placeholder 650 TORGIANO DRIVE
13 天
待售
房屋
$685,000
6 贝兹 4 浴室 3,794 平方英尺
650 TORGIANO DRIVE
3609 Gretchen  Drive, Other City - In The State Of Florida FL 34761 placeholder 3609 Gretchen  Drive, Other City - In The State Of Florida FL 34761
13 天
待售
房屋
$539,000
4 贝兹 2 浴室
3609 Gretchen Drive, Other City - In The State Of Florida FL 34761

The multiple listing information is provided by the Stellar MLS from a copyrighted compilation of listings. The compilation of listings and each individual listing are ©2025-present Stellar MLS. All Rights Reserved. The information provided is for consumers' personal, noncommercial use and may not be used for any purpose other than to identify prospective properties consumers may be interested in purchasing. All properties are subject to prior sale or withdrawal. All information provided is deemed reliable but is not guaranteed accurate, and should be independently verified. Listing courtesy of: LPT REALTY, LLC