特性
探索我们的清单
聯繫
告诉我们您的需求

668 AMERICAN LEGION DRIVE

房屋 待售
$1,999,000

BTC: 66.63333333

ETH: 999.50000000

135 天
滨水区
3 贝兹
3 浴室
2,728 平方英尺
Est. 预计销售范围: $0 - $0
$0

总览

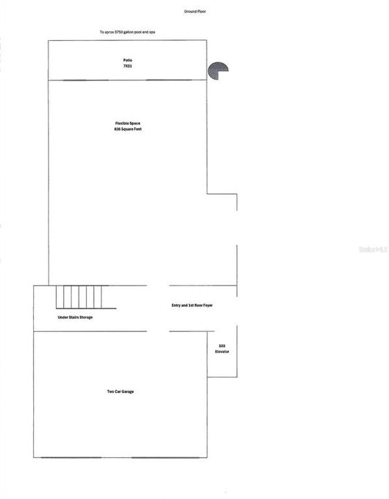
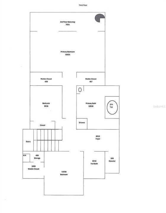
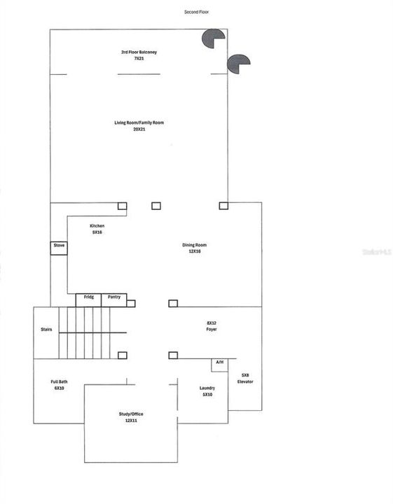
Unrivaled Waterfront Living with Panoramic Bay Views completely updated. Welcome to your dream home, a stunning 3-bedroom, 3-bathroom custom residence where luxury meets convenience on the water. Every detail of this home has been thoughtfully upgraded and meticulously maintained. Step inside through magnificent custom stained-glass front doors and feel the immediate sense of comfort. Boating enthusiasts will delight in the private dock, capable of accommodating approximately a 30-foot boat, providing direct access to the bay. Enjoy Paddle boarding in your back yard, the bay right behind house, and endless relaxation and entertainment in your heated pool, which can be heated up to 108 degrees! Larger filtration pump has been added so water in jets come out like a Jacuzzi! Can be enjoyed all year long. Spread out and entertain with ease, featuring a spacious bonus room on the first floor, (about 800 square feet not included in square footage of the house), – an incredibly versatile space ideal for a fourth bedroom, Mother-in-Law suite, state-of-the-art home gym, game room, or anything your heart desires. Comfort is paramount with two-zone AC systems and an on-demand tankless hot water system, and city gas for stove, and pool heater. This property is also equipped with a sprinkler system thru out the home for your safety, and your own private elevator. Ascend to the upper levels to discover not one, but two private balconies offering absolutely fabulous, unobstructed views of the bay. Imagine sipping your morning coffee or unwinding with a sunset cocktail as the water sparkles before you. Additional peace of mind comes with a lifetime warranty metal roof and an attached two-car garage. This exceptional home offers the perfect blend of tranquility and accessibility, being just minutes from pristine beaches, top-rated schools, and convenient shopping. Must take a look at this special property!

位置

详情与特色

类型:
Residential
停车:
Garage Door Opener
建造年份:
2005
地段:
0.10 英亩
暖气:
Central
价格/平方英尺:
$733
冷气:
Central Air
HOA:
没有数据
更多事实和特点
  • 地板

    • Ceramic Tile

    • Hardwood

    暖气

    • Central

    冷气

    • Central Air

    设备

    • Convection Oven

    • Dishwasher

    • Disposal

    • Dryer

    • Electric Water Heater

    • Exhaust Fan

    • Gas Water Heater

    • Ice Maker

    • Microwave

    • Range

    • Range Hood

    • Refrigerator

    • Tankless Water Heater

    • Washer

    • Water Filtration System

    其他室内特点

    • Ceiling Fan(s)

    • Crown Molding

    • Elevator

    • High Ceilings

    • PrimaryBedroom Upstairs

    • Thermostat

    • Walk-In Closet(s)

    卧室和浴室

    • 卧室: 3

    • 完整的浴室: 3

  • 停车

    • Garage Door Opener

    房屋

    • 等级: Three Or More

    • 私人泳池: 是

    • 外观特征: Balcony / Irrigation System

    地段

    • 地段: 0.10 英亩

    其他财产信息

    • 包裹编号: 311503300100000040

    • 分区: R

  • 类型与风格

    • 财产种类: Residential

    • 属性子类型: Single Family Residence

  • 公益

    • Cable Available

    • Fire Hydrant

    • Sprinkler Recycled

  • 其他财政信息

    • 年税额: $6,531

  • 来源细节

    • MLS ID: TB8409867

    其他详情

    • 建筑材料: Block

    • 基金会详情: Other

    • 洗衣功能: Inside / Laundry Room / Washer Hookup

    • 天井和门廊特色: Covered / Deck / Patio / Porch

    • 泳池特色: Gunite / Heated / In Ground / Lighting

    • 窗户功能: Blinds

    • 方向面: South

    • 滨水区: 是

    • 车库空间: 2

    • 附属车库: 是

    • 车库: 是

    • 生活区域: 2728

    • 水源: Public

    • 地块大小: 40 x 117

    • 细分名称: GALLEYS COVE

类似房屋

16750 GULF BOULEVARD UNIT 414 placeholder 16750 GULF BOULEVARD UNIT 414
9 天
待售
公寓/合作社
$2,199,900
3 贝兹 3 浴室 2,227 平方英尺
16750 GULF BOULEVARD UNIT 414
11850 7TH STREET E placeholder 11850 7TH STREET E
11 天
待售
房屋
$2,100,000
4 贝兹 3 浴室 2,782 平方英尺
11850 7TH STREET E
12400 CAPRI CIRCLE N CIRCLE N placeholder 12400 CAPRI CIRCLE N CIRCLE N
13 天
待售
房屋
$1,500,000
10 贝兹 10 浴室 6,424 平方英尺
12400 CAPRI CIRCLE N CIRCLE N
17720 GULF BOULEVARD UNIT A-803 placeholder 17720 GULF BOULEVARD UNIT A-803
16 天
待售
公寓/合作社
$1,600,000
3 贝兹 3 浴室 1,845 平方英尺
17720 GULF BOULEVARD UNIT A-803
15405 GULF BOULEVARD UNIT B2 placeholder 15405 GULF BOULEVARD UNIT B2
-$25K (2025/12/03)
待售
联排别墅
$1,574,900
5 贝兹 4 浴室 2,706 平方英尺
15405 GULF BOULEVARD UNIT B2
11050 7TH STREET E placeholder 11050 7TH STREET E
21 天
待售
房屋
$2,345,000
4 贝兹 3 浴室 2,494 平方英尺
11050 7TH STREET E
12 PARADISE LANE placeholder 12 PARADISE LANE
23 天
待售
地段/土地
$1,750,000
0 room(s)
12 PARADISE LANE
15208 GULF BOULEVARD UNIT 408 placeholder 15208 GULF BOULEVARD UNIT 408
27 天
待售
公寓/合作社
$1,999,000
2 贝兹 2 浴室 2,345 平方英尺
15208 GULF BOULEVARD UNIT 408

The multiple listing information is provided by the Stellar MLS from a copyrighted compilation of listings. The compilation of listings and each individual listing are ©2025-present Stellar MLS. All Rights Reserved. The information provided is for consumers' personal, noncommercial use and may not be used for any purpose other than to identify prospective properties consumers may be interested in purchasing. All properties are subject to prior sale or withdrawal. All information provided is deemed reliable but is not guaranteed accurate, and should be independently verified. Listing courtesy of: REALTY ONE GROUP SUNSHINE