特性
探索我们的清单
聯繫
告诉我们您的需求

6809 PARSON BROWN DRIVE

房屋 待售
$888,000

BTC: 10.22452504

ETH: 444.00000000

-$10K (2025/12/15)
50 天
4 贝兹
2 浴室
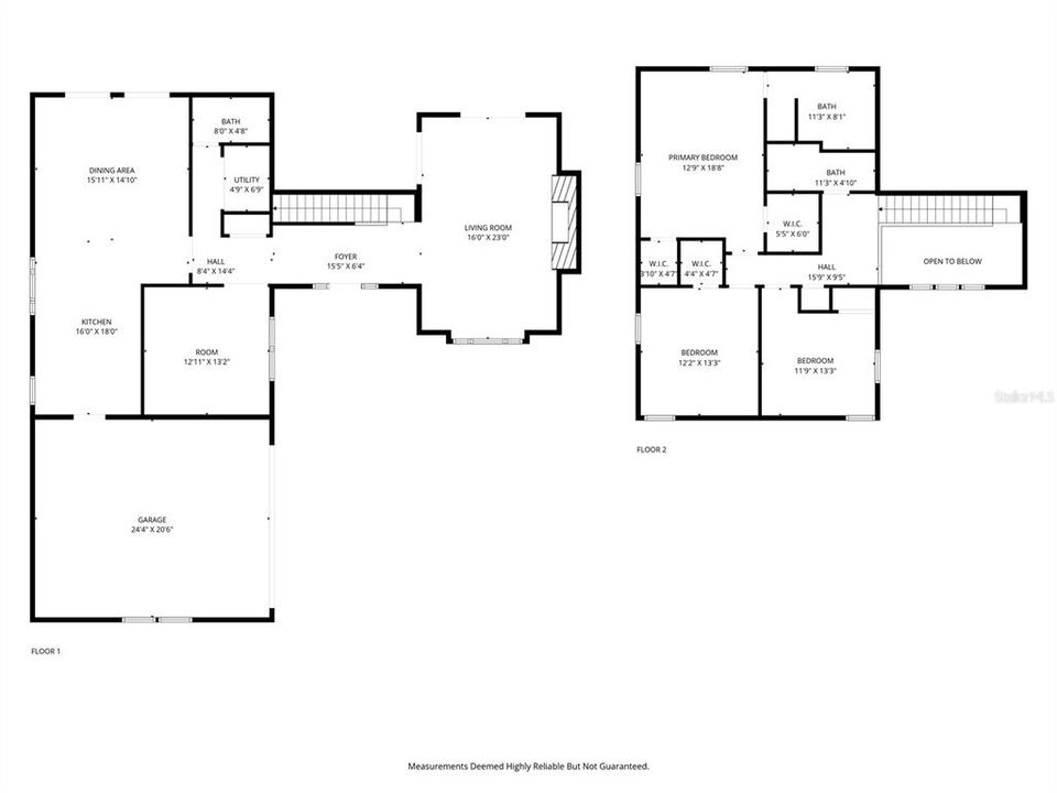
2,240 平方英尺
Est. 预计销售范围: $0 - $0
$0

总览

Not your cookie-cutter home. This lovely Tudor offers character, charm, pool, privacy, & perks. Seller has offered to assist any buyer $$$$$Seller pays buyers closing costs and will buy down the interest rate$$$$$ Must qualify for the mortgage. Willing to rent with option to buy with a non-refundable security deposit credited to the purchase price. Can straight rent the home for $5,000 a month with all utilities, landscaping, pool, pest control, weed control, and internet included. Welcome home to your private retreat in one of Central Florida’s most desirable golf communities! Live where luxury meets lifestyle in this immaculate 4-bedroom, 2.5 bath retreat nestled in one of Central Florida's premier golf communities. Just minutes from Universal Studios, Disney, Restuarant Row, the international airport, and downtown Orlando, this home delivers the perfecgt blend of tanquility and convenience. Step inside and fall in love with the porcelain tile floors, black granite sparkling countertops, and freshly painted interiors that make the home feel light, bright, and modern. The spacious open floor plan flows beautifully for entertaining or relaxing by your wood-burning fireplace on cozy evenings. Out back, enjoy true privacy with a lush, peaceful yard and an extra-large swimming pool perfect for laps, plus a hot tub to unwind after a long day. Every detail has been cared for — from the new roof and driveway with sienna rio pavers to the newer hurricane-proof windows for safety and peace of mind. You’ll love being part of this vibrant community with Social Club access for just $58 a month, plus a $75 quarterly food minimum (optional) — meaning you can stroll to the clubhouse for dinner instead of cooking on weekends. or weekdays. Prefer golf? You can easily join the club and enjoy endless fairway views right in your own neighborhood. This home is more than a place to live -it's a lifestyle upgrade.. Whether you're entertaining, relaxing, or teeing off, this property checks every box. You'll often see people riding bikes, jogging, and getting their fitness in within this private 'Central Park' of Orlando. Schedule your private tour today and start living the Florida dream! Roof (2019), Hot water heater (2025), Windows (2024), Driveway (2025), Hot-tub (2024), Painting (2025), Pool pump (2022), A/C new motor (2024) and new UV light (2025), Irrigation (2025)

位置

佛罗里达 ORLANDO 32819 房屋 待售

详情与特色

类型:
Residential
停车:
没有数据
建造年份:
1979
地段:
0.27 英亩
暖气:
Central / Electric
价格/平方英尺:
$396
冷气:
Central Air
HOA:
$900
更多事实和特点
  • 地板

    • Carpet

    • Porcelain Tile

    暖气

    • Central

    • Electric

    冷气

    • Central Air

    设备

    • Dishwasher

    • Dryer

    • Microwave

    • Range

    • Refrigerator

    • Washer

    其他室内特点

    • Ceiling Fan(s)

    卧室和浴室

    • 卧室: 4

    • 洗手间: 1

    • 完整的浴室: 2

  • 房屋

    • 等级: Two

    • 私人泳池: 是

    • 外观特征: Sliding Doors

    地段

    • 地段: 0.27 英亩

    其他财产信息

    • 包裹编号: 262328626401570

    • 分区: P-D

  • 类型与风格

    • 财产种类: Residential

    • 属性子类型: Single Family Residence

  • 公益

    • BB/HS Internet Available

    • Cable Available

    • Electricity Connected

    • Sewer Connected

    • Underground Utilities

    • Water Connected

  • 其他财政信息

    • HOA: $900

    • HOA频率: Annually

    • 年税额: $5,895

  • 来源细节

    • MLS ID: O6356868

    其他详情

    • 建筑材料: Stucco

    • 基金会详情: Slab

    • 壁炉功能: Living Room / Wood Burning

    • 洗衣功能: In Garage

    • 泳池特色: In Ground

    • 窗户功能: Aluminum Frames / Double Pane Windows / ENERGY STAR Qualified Windows

    • 方向面: West

    • 壁炉: 是

    • 车库空间: 2

    • 附属车库: 是

    • 车库: 是

    • 生活区域: 2240

    • 水源: Public

    • 细分名称: ORANGE TREE COUNTRY CLUB

类似房屋

7655 PERSIAN COURT placeholder 7655 PERSIAN COURT
2 天
待售
房屋
$880,000
4 贝兹 2 浴室 2,301 平方英尺
7655 PERSIAN COURT
8400 VINTAGE DRIVE placeholder 8400 VINTAGE DRIVE
2 天
待售
房屋
$915,000
6 贝兹 4 浴室 3,852 平方英尺
8400 VINTAGE DRIVE
4840 CAYVIEW AVENUE UNIT 203 placeholder 4840 CAYVIEW AVENUE UNIT 203
4 天
待售
公寓/合作社
$654,900
3 贝兹 2 浴室 2,097 平方英尺
4840 CAYVIEW AVENUE UNIT 203
5638 CRAINDALE DRIVE placeholder 5638 CRAINDALE DRIVE
10 天
待售
房屋
$729,500
4 贝兹 3 浴室 2,747 平方英尺
5638 CRAINDALE DRIVE
4804 Cayview Ave # 40712, Orlando FL 32819 placeholder 4804 Cayview Ave # 40712, Orlando FL 32819
15 天
待售
公寓/合作社
$660,000
3 贝兹 2 浴室 2,097 平方英尺
4804 Cayview Ave # 40712, Orlando FL 32819
9107 IVEY HILL COURT placeholder 9107 IVEY HILL COURT
15 天
待售
房屋
$895,000
4 贝兹 3 浴室 3,055 平方英尺
9107 IVEY HILL COURT
8162 VIA BELLA NOTTE placeholder 8162 VIA BELLA NOTTE
-$100K (2025/12/15)
待售
房屋
$899,900
4 贝兹 3 浴室 3,052 平方英尺
8162 VIA BELLA NOTTE
5036 SHOREWAY LOOP UNIT 30105 placeholder 5036 SHOREWAY LOOP UNIT 30105
17 天
待售
公寓/合作社
$625,000
3 贝兹 2 浴室 2,001 平方英尺
5036 SHOREWAY LOOP UNIT 30105

The multiple listing information is provided by the Stellar MLS from a copyrighted compilation of listings. The compilation of listings and each individual listing are ©2025-present Stellar MLS. All Rights Reserved. The information provided is for consumers' personal, noncommercial use and may not be used for any purpose other than to identify prospective properties consumers may be interested in purchasing. All properties are subject to prior sale or withdrawal. All information provided is deemed reliable but is not guaranteed accurate, and should be independently verified. Listing courtesy of: KELLER WILLIAMS CLASSIC