特性
探索我们的清单
聯繫
告诉我们您的需求

807 N HOLLYWOOD CIRCLE

房屋 待售
$260,000

BTC: 3.01100174

ETH: 88.85850991

51 天
4 贝兹
3 浴室
1,800 平方英尺
Est. 预计销售范围: $0 - $0
$0

总览

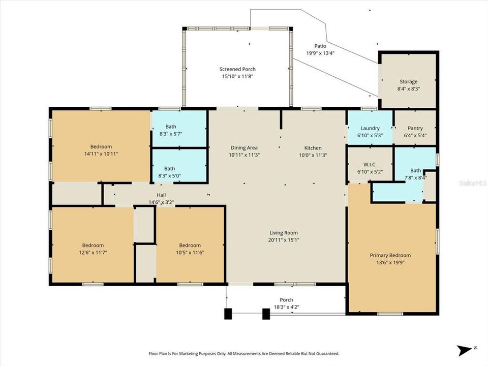
Welcome to this well-maintained 4-bed, 3-bath ranch style home in the desirable Connell Heights neighborhood of Crystal River. At ~ 1800 sq. ft. the open layout delivers a spacious living room with vaulted ceilings, an updated kitchen with all stainless steel appliances, an oversized laundry room, brand new water heater, walk in pantry and TWO PRIMARY SUITES. Exterior Features include a BRAND NEW ROOF, new gutters, screened in back patio, circular paved driveway, a brand new storage shed with shelving and a workbench installed and a private fenced in backyard shaded by mature oaks — perfect for morning coffee or weekend grilling. Located just minutes from Kings Bay and Three Sisters Springs, you’re a short drive from manatee tours, kayaking, and Crystal River’s waterfront dining scene. This home is ideal for first-time buyers, or investors seeking seasonal rental demand. Easy 1-hour drive to Tampa Intl via the new Suncoast Pkwy extension! This home won't last long, call to schedule a showing today.

位置

佛罗里达 CRYSTAL RIVER 34429 房屋 待售

详情与特色

类型:
Residential
停车:
没有数据
建造年份:
1985
地段:
0.26 英亩
暖气:
Central
价格/平方英尺:
$144
冷气:
Central Air
HOA:
没有数据
更多事实和特点
  • 地板

    • Carpet

    • Ceramic Tile

    • Luxury Vinyl

    暖气

    • Central

    冷气

    • Central Air

    设备

    • Dishwasher

    • Dryer

    • Microwave

    • Range

    • Refrigerator

    • Washer

    其他室内特点

    • Ceiling Fan(s)

    • High Ceilings

    • Split Bedroom

    • Thermostat

    • Walk-In Closet(s)

    • Window Treatments

    卧室和浴室

    • 卧室: 4

    • 完整的浴室: 3

  • 房屋

    • 等级: One

    • 外观特征: Rain Gutters / Sliding Doors

    地段

    • 地段: 0.26 英亩

    其他财产信息

    • 包裹编号: 17E18S360020000C00130

    • 分区: LDR

  • 类型与风格

    • 财产种类: Residential

    • 属性子类型: Single Family Residence

  • 公益

    • Electricity Connected

    • Sewer Connected

    • Water Connected

  • 其他财政信息

    • 年税额: $2,050

  • 来源细节

    • MLS ID: O6357644

    其他详情

    • 建筑材料: Block / Stucco

    • 基金会详情: Slab

    • 洗衣功能: Inside

    • 地段特征: Cleared / Level

    • 方向面: East

    • 其他结构: Shed(s)

    • 生活区域: 1800

    • 水源: Well

    • 地块大小: 80 x 140

    • 细分名称: CONNELLS HEIGHTS UNIT 02

类似房屋

6301 W GLYNBORNE LOOP placeholder 6301 W GLYNBORNE LOOP
1 天
待售
房屋
$262,500
2 贝兹 2 浴室 1,430 平方英尺
6301 W GLYNBORNE LOOP
6337 W LEXINGTON DRIVE placeholder 6337 W LEXINGTON DRIVE
7 天
待售
房屋
$267,300
3 贝兹 2 浴室 1,660 平方英尺
6337 W LEXINGTON DRIVE
7439 W NADEL DRIVE placeholder 7439 W NADEL DRIVE
7 天
待售
$320,000
4 贝兹 2 浴室 2,040 平方英尺
7439 W NADEL DRIVE
6018 W BROMLEY CIRCLE placeholder 6018 W BROMLEY CIRCLE
-$2K (2025/12/15)
待售
房屋
$213,500
2 贝兹 2 浴室 1,293 平方英尺
6018 W BROMLEY CIRCLE
1322 S BROOKFIELD DRIVE placeholder 1322 S BROOKFIELD DRIVE
49 天
待售
房屋
$274,500
3 贝兹 2 浴室 1,514 平方英尺
1322 S BROOKFIELD DRIVE
790 S EBENEZER POINT placeholder 790 S EBENEZER POINT
-$20K (2025/12/17)
待售
$189,000
3 贝兹 2 浴室 1,512 平方英尺
790 S EBENEZER POINT
1690 N FOXBORO LOOP placeholder 1690 N FOXBORO LOOP
-$9K (2025/12/10)
待售
房屋
$245,000
2 贝兹 2 浴室 1,507 平方英尺
1690 N FOXBORO LOOP
6482 W TORRINGTON COURT placeholder 6482 W TORRINGTON COURT
77 天
待售
房屋
$310,000
3 贝兹 2 浴室 1,843 平方英尺
6482 W TORRINGTON COURT

The multiple listing information is provided by the Stellar MLS from a copyrighted compilation of listings. The compilation of listings and each individual listing are ©2025-present Stellar MLS. All Rights Reserved. The information provided is for consumers' personal, noncommercial use and may not be used for any purpose other than to identify prospective properties consumers may be interested in purchasing. All properties are subject to prior sale or withdrawal. All information provided is deemed reliable but is not guaranteed accurate, and should be independently verified. Listing courtesy of: BRIJE REAL ESTATE LLC