特性
探索我们的清单
聯繫
告诉我们您的需求

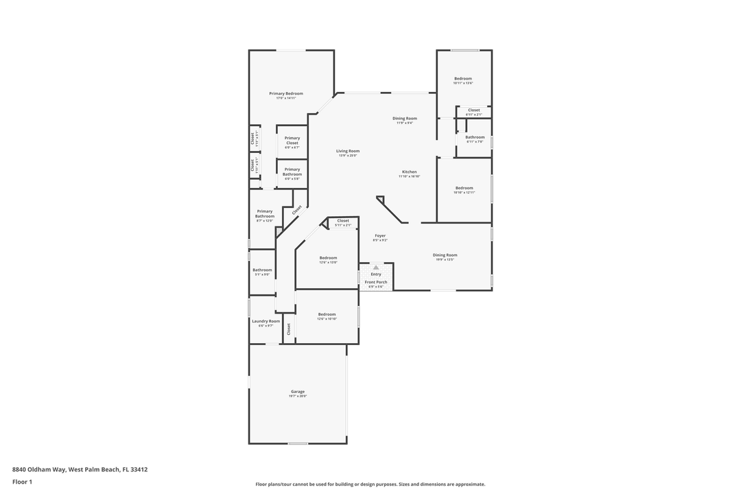
8840 Oldham, Palm Beach Gardens, FL 33412

房屋 待售
$1,099,000

BTC: 12.65400115

ETH: 549.50000000

-$26K (2025/11/30)
67 天
滨水区
4 贝兹
3 浴室
2,493 平方英尺
Est. 预计销售范围: $0 - $0
$0

总览

Enjoy the spectacular long lake and pool view located on a premium professionally landscaped lot in Palm Beach Gardens in the the Carlton Oaks community. The open SS & Granite Kitchen, Breakfast area and Family Room provide access to a newer 2021 30'+ pool with built-in sun shelve, surrounded by a picture window screen room and white marble decking/lanai. The interior of the home also features a living/dining, 4 bedrooms 3 baths plus a den with a built in murphy bed, and laundry room. Upgraded 7'' floor and crown moldings; 2024 new air conditioner; newly painted exterior and impact windows and doors; central vacuum, plantation shutters and 9' & 12'' ceilings. Schedule a showing appointment to see this exceptional property.

位置

详情与特色

类型:
Residential
停车:
2+ Spaces / Driveway / Garage - Attached
建造年份:
2002
地段:
13029 平方英尺
暖气:
Central / Electric
价格/平方英尺:
$441
冷气:
Central / Electric / Paddle Fans
HOA:
没有数据
更多事实和特点
  • 地板

    • Carpet

    • Ceramic Tile

    暖气

    • Central

    • Electric

    冷气

    • Central

    • Electric

    • Paddle Fans

    设备

    • Auto Garage Open

    • Central Vacuum

    • Dishwasher

    • Disposal

    • Dryer

    • Generator Hookup

    • Microwave

    • Range - Electric

    • Refrigerator

    • Smoke Detector

    • Washer

    • Water Heater - Elec

    其他室内特点

    • Built-in Shelves

    • Ctdrl/Vault Ceilings

    • Split Bedroom

    • Volume Ceiling

    • Walk-in Closet

    卧室和浴室

    • 卧室: 4

    • 完整的浴室: 3

  • 停车

    • 2+ Spaces

    • Driveway

    • Garage - Attached

    房屋

    • 私人泳池: 是

    • 外观特征: Auto Sprinkler / Covered Patio / Custom Lighting / Lake/Canal Sprinkler / Screened Patio / Zoned Sprinkler

    地段

    • 地段: 13029 平方英尺

    其他财产信息

    • 包裹编号: 52414213050000470

    • 分区: RL3

  • 类型与风格

    • 财产种类: Residential

    • 属性子类型: Single Family Residence

  • 公益

    • Cable

    • Electric

    • Public Sewer

    • Public Water

  • 其他财政信息

    • 年税额: $7,246

  • 来源细节

    • MLS ID: RX-11133033

    其他详情

    • 建筑材料: CBS

    • 地段特征: 1/4 to 1/2 Acre / Interior Lot / West of US-1

    • 天井和门廊特色: Patio / Porch

    • 泳池特色: Gunite / Heated / Inground / Salt Chlorination

    • 方向面: I-95 to Northlake Blvd West to Carlton Oaks Community on Right just past IBIS Country Club

    • 滨水区: 是

    • 车库空间: 2

    • 车库: 是

    • 生活区域: 2493

    • 细分名称: CARLETON OAKS

类似房屋

7713 Sandhill, West Palm Beach, FL 33412 placeholder 7713 Sandhill, West Palm Beach, FL 33412
1 天
待售
房屋
$850,000
3 贝兹 3 浴室 3,058 平方英尺
7713 Sandhill, West Palm Beach, FL 33412
9973 Regency, Palm Beach Gardens, FL 33412 placeholder 9973 Regency, Palm Beach Gardens, FL 33412
6 天
待售
房屋
$1,099,000
3 贝兹 2 浴室 2,430 平方英尺
9973 Regency, Palm Beach Gardens, FL 33412
10728 Northbrook, Palm Beach Gardens, FL 33412 placeholder 10728 Northbrook, Palm Beach Gardens, FL 33412
-$26K (2025/12/12)
待售
房屋
$884,335
3 贝兹 3 浴室 2,186 平方英尺
10728 Northbrook, Palm Beach Gardens, FL 33412
13089 86th, West Palm Beach, FL 33412 placeholder 13089 86th, West Palm Beach, FL 33412
12 天
待售
房屋
$950,000
4 贝兹 3 浴室 3,086 平方英尺
13089 86th, West Palm Beach, FL 33412
10088 Regency, Palm Beach Gardens, FL 33412 placeholder 10088 Regency, Palm Beach Gardens, FL 33412
12 天
待售
房屋
$1,200,000
3 贝兹 2 浴室 2,434 平方英尺
10088 Regency, Palm Beach Gardens, FL 33412
10103 Timber Creek, Palm Beach Gardens, FL 33412 placeholder 10103 Timber Creek, Palm Beach Gardens, FL 33412
14 天
待售
房屋
$1,199,000
3 贝兹 2 浴室 2,884 平方英尺
10103 Timber Creek, Palm Beach Gardens, FL 33412
10215 Timber Creek, Palm Beach Gardens, FL 33412 placeholder 10215 Timber Creek, Palm Beach Gardens, FL 33412
20 天
待售
房屋
$949,000
3 贝兹 2 浴室 2,372 平方英尺
10215 Timber Creek, Palm Beach Gardens, FL 33412
12161 Arbordale, Palm Beach Gardens, FL 33412 placeholder 12161 Arbordale, Palm Beach Gardens, FL 33412
21 天
待售
房屋
$1,139,000
3 贝兹 2 浴室 2,973 平方英尺
12161 Arbordale, Palm Beach Gardens, FL 33412

The multiple listing information is provided by the Beaches MLS from a copyrighted compilation of listings. The compilation of listings and each individual listing are ©2025-present Beaches MLS. All Rights Reserved. The information provided is for consumers' personal, noncommercial use and may not be used for any purpose other than to identify prospective properties consumers may be interested in purchasing. All properties are subject to prior sale or withdrawal. All information provided is deemed reliable but is not guaranteed accurate, and should be independently verified. Listing courtesy of: London Foster Realty