特性
探索我们的清单
聯繫
告诉我们您的需求

9816 87TH DRIVE

房屋 待售
$472,000

BTC: 15.73333333

ETH: 236.00000000

-$18K (2025/09/14)
161 天
滨水区
3 贝兹
2 浴室
1,753 平方英尺
Est. 预计销售范围: $0 - $0
$0

总览

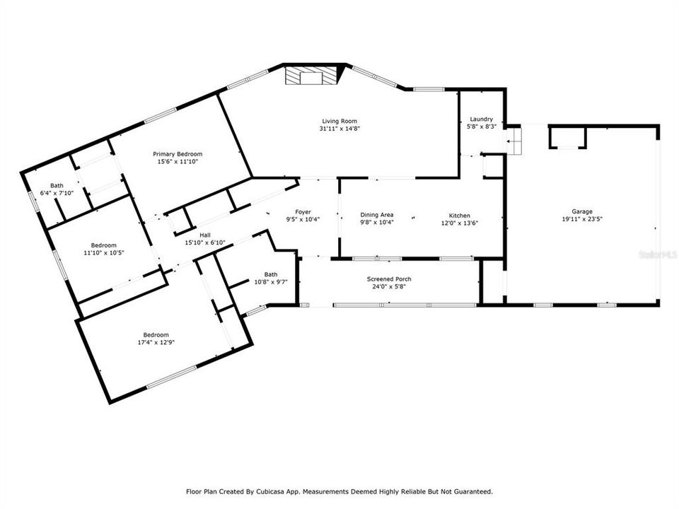
Looking for a home with lake front acreage? You found it! This solid brick construction home is situated on a gorgeous 12+ acre lot, surrounded by century old oaks, and overlooking a private lake- old Florida living doesn’t get better than this. Featuring 3 bedrooms, 2.5 bathrooms, a spacious living room with lake views, a screened in porch and garage, an attached 2 car garage, a 2 car carport, and an additional detached oversized 1 car garage- there is no shortage of storage for all of your toys. The kitchen features stainless steel appliances, and the entire home features upgraded vinyl plank flooring- no carpet! Even better, the roof, windows, and hot water heater have all been replaced since 2023! You won’t find a nicer home on 10+ acres at this price. Conveniently located within 10 minutes of Publix, Lowes, Walmart, and Tractor Supply. Don’t miss out!

位置

详情与特色

类型:
Residential
停车:
Covered / Workshop in Garage
建造年份:
1980
地段:
12.32 英亩
暖气:
Central
价格/平方英尺:
$269
冷气:
Central Air
HOA:
没有数据
更多事实和特点
  • 地板

    • Luxury Vinyl

    • Tile

    暖气

    • Central

    冷气

    • Central Air

    设备

    • Dishwasher

    • Range

    • Refrigerator

    其他室内特点

    • Ceiling Fan(s)

    • Solid Surface Counters

    • Thermostat

    卧室和浴室

    • 卧室: 3

    • 洗手间: 1

    • 完整的浴室: 2

  • 停车

    • Covered

    • Workshop in Garage

    房屋

    • 等级: One

    • 外观特征: Rain Gutters / Storage

    地段

    • 地段: 12.32 英亩

    其他财产信息

    • 包裹编号: 3302S14E02483014000

    • 分区: RES

  • 类型与风格

    • 财产种类: Residential

    • 属性子类型: Single Family Residence

  • 公益

    • BB/HS Internet Available

    • Electricity Connected

  • 其他财政信息

    • 年税额: $378

  • 来源细节

    • MLS ID: GC532033

    其他详情

    • 建筑材料: Brick

    • 基金会详情: Slab

    • 壁炉功能: Wood Burning

    • 洗衣功能: Inside / Laundry Room

    • 天井和门廊特色: Front Porch / Screened

    • 方向面: Northwest

    • 滨水区: 是

    • 壁炉: 是

    • 车库空间: 2

    • 附属车库: 是

    • 车库: 是

    • 生活区域: 1753

    • 水源: Well

    • 细分名称: N/A

类似房屋

10172 98TH PATH placeholder 10172 98TH PATH
24 天
待售
房屋
$585,000
3 贝兹 2 浴室 2,035 平方英尺
10172 98TH PATH

The multiple listing information is provided by the Stellar MLS from a copyrighted compilation of listings. The compilation of listings and each individual listing are ©2025-present Stellar MLS. All Rights Reserved. The information provided is for consumers' personal, noncommercial use and may not be used for any purpose other than to identify prospective properties consumers may be interested in purchasing. All properties are subject to prior sale or withdrawal. All information provided is deemed reliable but is not guaranteed accurate, and should be independently verified. Listing courtesy of: KELLER WILLIAMS GAINESVILLE REALTY PARTNERS