特性
探索我们的清单
聯繫
告诉我们您的需求

11934 MEADOWGATE PLACE

联排别墅 待售
$399,900

BTC: 4.44358464

ETH: 131.11475410

-$9K (2025/09/03)
153 天
3 贝兹
3 浴室
1,758 平方英尺
Est. 预计销售范围: $0 - $0
$0

总览

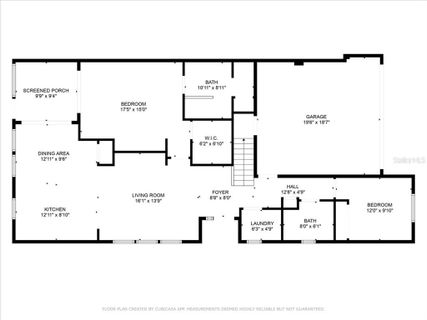
One or more photo(s) has been virtually staged. This end-unit townhome in the sought-after community of Harmony at Lakewood Ranch offers exceptional privacy and a prime location at the end of a quiet cul-de-sac. This maintenance-free, move-in ready home features 3 bedrooms, 3 full bathrooms, a 2-car garage, and a new roof. The light-filled first floor boasts an open-concept layout connecting the kitchen, living, and dining areas .. ideal for both everyday living and entertaining. Upstairs, the loft has been transformed into a spacious guest suite and media room complete with an en-suite bathroom, wet bar, walk-in closet, and a large storage room .. perfect for guests or multigenerational living. Enjoy access to community walking and biking trails, as well as resort-style amenities including a clubhouse, fitness center, playground, and a newly renovated pool. Conveniently located near SR-70, I-75, Lakewood Ranch Blvd, and minutes from top-rated schools, LECOM, Main Street at Lakewood Ranch, UTC, and the lively Waterside district. Don’t miss your opportunity to live or invest in the nation’s #1 multigenerational master-planned community!

位置

详情与特色

类型:
Residential
停车:
Driveway / Garage Door Opener
建造年份:
2016
地段:
0.11 英亩
暖气:
Central
价格/平方英尺:
$227
冷气:
Central Air
HOA:
$322
更多事实和特点
  • 地板

    • Engineered Hardwood

    • Tile

    暖气

    • Central

    冷气

    • Central Air

    设备

    • Built-In Oven

    • Dishwasher

    • Disposal

    • Dryer

    • Electric Water Heater

    • Microwave

    • Refrigerator

    • Washer

    其他室内特点

    • Ceiling Fan(s)

    • High Ceilings

    • In Wall Pest System

    • Open Floorplan

    • Primary Bedroom Main Floor

    • Solid Surface Counters

    • Solid Wood Cabinets

    • Thermostat

    • Walk-In Closet(s)

    • Wet Bar

    • Window Treatments

    卧室和浴室

    • 卧室: 3

    • 完整的浴室: 3

  • 停车

    • Driveway

    • Garage Door Opener

    房屋

    • 等级: Two

    • 外观特征: Garden / Hurricane Shutters / Irrigation System / Rain Gutters / Sidewalk / Sliding Doors

    地段

    • 地段: 0.11 英亩

    其他财产信息

    • 包裹编号: 583219859

    • 分区: PDMU

  • 类型与风格

    • 财产种类: Residential

    • 属性子类型: Townhouse

  • 公益

    • Cable Connected

    • Electricity Connected

    • Fiber Optics

    • Sewer Connected

    • Underground Utilities

    • Water Connected

  • 其他财政信息

    • HOA: $322

    • HOA频率: Monthly

    • 年税额: $5,807

  • 来源细节

    • MLS ID: A4660460

    其他详情

    • 建筑材料: Stone / Stucco

    • 基金会详情: Slab

    • 洗衣功能: Laundry Room

    • 地段特征: Cul-De-Sac / Sidewalk

    • 天井和门廊特色: Covered / Enclosed / Patio / Screened

    • 窗户功能: Blinds / Window Treatments

    • 方向面: Northwest

    • 车库空间: 2

    • 附属车库: 是

    • 车库: 是

    • 生活区域: 1758

    • 水源: Public

    • 细分名称: HARMONY AT LAKEWOOD RANCH PH I

类似房屋

4511 ARDEN WAY placeholder 4511 ARDEN WAY
待售
房屋
$474,990
4 贝兹 2 浴室 2,370 平方英尺
4511 ARDEN WAY
14713 LYLA TERRACE placeholder 14713 LYLA TERRACE
2 天
待售
联排别墅
$375,000
3 贝兹 2 浴室 1,925 平方英尺
14713 LYLA TERRACE
11742 FOREST PARK CIRCLE placeholder 11742 FOREST PARK CIRCLE
4 天
待售
房屋
$500,000
3 贝兹 2 浴室 1,805 平方英尺
11742 FOREST PARK CIRCLE
15035 SUNNY DAY DRIVE placeholder 15035 SUNNY DAY DRIVE
4 天
待售
联排别墅
$349,000
3 贝兹 2 浴室 1,925 平方英尺
15035 SUNNY DAY DRIVE
12709 NIGHTSHADE PLACE placeholder 12709 NIGHTSHADE PLACE
5 天
待售
房屋
$464,900
3 贝兹 2 浴室 1,724 平方英尺
12709 NIGHTSHADE PLACE
5360 VACCARO COURT placeholder 5360 VACCARO COURT
5 天
待售
房屋
$500,000
2 贝兹 2 浴室 1,684 平方英尺
5360 VACCARO COURT
4919 NEWPORT NEWS CIRCLE placeholder 4919 NEWPORT NEWS CIRCLE
5 天
待售
房屋
$370,000
3 贝兹 2 浴室 1,487 平方英尺
4919 NEWPORT NEWS CIRCLE
13810 MESSINA LOOP UNIT 204 placeholder 13810 MESSINA LOOP UNIT 204
6 天
待售
公寓/合作社
$375,000
2 贝兹 2 浴室 1,528 平方英尺
13810 MESSINA LOOP UNIT 204

The multiple listing information is provided by the Stellar MLS from a copyrighted compilation of listings. The compilation of listings and each individual listing are ©2026-present Stellar MLS. All Rights Reserved. The information provided is for consumers' personal, noncommercial use and may not be used for any purpose other than to identify prospective properties consumers may be interested in purchasing. All properties are subject to prior sale or withdrawal. All information provided is deemed reliable but is not guaranteed accurate, and should be independently verified. Listing courtesy of: KW COASTAL LIVING II