特性
探索我们的清单
聯繫
告诉我们您的需求

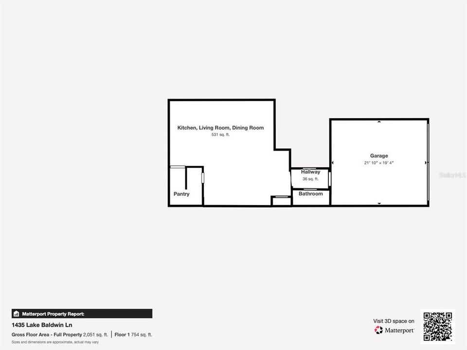
1435 LAKE BALDWIN LANE

联排别墅 合同活跃
$1,398,000

BTC: 46.60000000

ETH: 699.00000000

41 天
5 贝兹
4 浴室
3,216 平方英尺
Est. 预计销售范围: $0 - $0
$0

总览

Under contract-accepting backup offers. Experience the best of Baldwin Park living in this rare, fully renovated 5-bedroom, 4.5-bath multi-unit home, just steps from Publix, top-rated restaurants, boutiques, parks, and community amenities. Offering the perfect blend of modern lifestyle, flexibility, and investment opportunity, this stunning property features three separate living spaces, ideal for income generation, home office use, or multi-generational living. The main residence features 3 bedrooms, 2.5 baths, and an open, light-filled layout with brand-new engineered hardwood floors, Calico designer draperies, fresh paint, brand-new Miele dishwasher and washer/dryer, and upgraded kitchen and bathrooms with elegant cabinetry, lighting, and fixtures. A private, charming studio apartment with its own entrance, full kitchen, bathroom, and laundry closet - ideal for guests, extended family, or rental income (approx. $1,900/month). Includes a new washer and dryer, updated finishes, and separate utilities. A flexible, versatile two-room suite with a full bath, accessible via French doors from the street or a private courtyard is perfect as a home office, guest suite, or additional rental. It offers high visibility for small business owners or professionals. A recent $247K complete renovations (2024) include four new HVAC units, ductwork, water filtration and purification systems, upgraded cabinetry, lighting, flooring, and new Miele appliances. With three private entrances, two garages, and parking for up to five vehicles, this property offers unmatched flexibility and income potential in one of Orlando's most desirable communities. Exclusive Buyer Bonuses: Some furnishing, draperies, and designer light fixtures included; seller offers $10K towards buyer's closing concession or interior customization! Baldwin Park isn’t just a place to live, it’s a way of life. Just steps from your door, you’ll find a lively town center filled with shops, restaurants, and scenic trails, including beautiful walking paths along Lake Baldwin. There’s even a fantastic dog park nearby with lake access for your furry friends! Enjoy parks, three community pools, playgrounds, and a fully equipped fitness center, all conveniently located within the neighborhood. Whether you’re an investor, a family seeking flexibility, or someone ready for the ultimate live-work lifestyle, this home delivers unmatched value, style, and opportunity in the heart of one of Orlando’s most desirable communities.

位置

详情与特色

类型:
Residential
停车:
Driveway / Garage Door Opener / Garage Faces Rear / On Street
建造年份:
2007
地段:
0.09 英亩
暖气:
Central
价格/平方英尺:
$435
冷气:
Central Air / Zoned
HOA:
$1,058
更多事实和特点
  • 地板

    • Carpet

    • Engineered Hardwood

    • Tile

    暖气

    • Central

    冷气

    • Central Air

    • Zoned

    设备

    • Dishwasher

    • Dryer

    • Exhaust Fan

    • Microwave

    • Range

    • Refrigerator

    • Washer

    其他室内特点

    • Crown Molding

    • High Ceilings

    • Kitchen/Family Room Combo

    • Living Room/Dining Room Combo

    • Open Floorplan

    • Solid Surface Counters

    • Solid Wood Cabinets

    • Stone Counters

    • Walk-In Closet(s)

    卧室和浴室

    • 卧室: 5

    • 洗手间: 1

    • 完整的浴室: 4

  • 停车

    • Driveway

    • Garage Door Opener

    • Garage Faces Rear

    • On Street

    房屋

    • 等级: Two

    • 外观特征: Balcony / Courtyard / French Doors / Irrigation System / Lighting / Sidewalk

    地段

    • 地段: 0.09 英亩

    其他财产信息

    • 包裹编号: 212230053101458

    • 分区: PD

  • 类型与风格

    • 财产种类: Residential

    • 属性子类型: Townhouse

  • 公益

    • Electricity Connected

    • Public

    • Water Connected

  • 其他财政信息

    • HOA: $1,058

    • HOA频率: Monthly

    • 年税额: $15,660

  • 来源细节

    • MLS ID: O6352041

    其他详情

    • 建筑材料: Block / Stucco

    • 基金会详情: Slab

    • 洗衣功能: Inside / Laundry Room

    • 窗户功能: Drapes

    • 方向面: Northwest

    • 车库空间: 2

    • 附属车库: 是

    • 车库: 是

    • 生活区域: 3216

    • 水源: Public

    • 细分名称: BALDWIN PARK

类似房屋

210 E ROCKWOOD WAY placeholder 210 E ROCKWOOD WAY
合同活跃
房屋
$1,000,500
3 贝兹 1 浴室 1,431 平方英尺
210 E ROCKWOOD WAY
100 S VIRGINIA AVENUE UNIT 314 placeholder 100 S VIRGINIA AVENUE UNIT 314
4 天
合同活跃
公寓/合作社
$1,129,000
3 贝兹 3 浴室 2,615 平方英尺
100 S VIRGINIA AVENUE UNIT 314
915 GARDEN PLAZA placeholder 915 GARDEN PLAZA
6 天
合同活跃
房屋
$1,249,000
4 贝兹 3 浴室 3,313 平方英尺
915 GARDEN PLAZA
921 LAKE EMERALD DRIVE placeholder 921 LAKE EMERALD DRIVE
7 天
合同活跃
房屋
$1,475,000
5 贝兹 4 浴室 3,859 平方英尺
921 LAKE EMERALD DRIVE
1513 NOTTINGHAM STREET placeholder 1513 NOTTINGHAM STREET
-$100K (2025/11/09)
合同活跃
房屋
$1,799,000
4 贝兹 3 浴室 2,907 平方英尺
1513 NOTTINGHAM STREET
1450 GLENCOE ROAD placeholder 1450 GLENCOE ROAD
18 天
合同活跃
房屋
$1,625,000
4 贝兹 3 浴室 2,785 平方英尺
1450 GLENCOE ROAD
2844 STANFIELD AVENUE placeholder 2844 STANFIELD AVENUE
-$55K (2025/11/09)
合同活跃
房屋
$995,000
3 贝兹 2 浴室 2,486 平方英尺
2844 STANFIELD AVENUE
2747 DORELL AVENUE placeholder 2747 DORELL AVENUE
20 天
合同活跃
房屋
$1,400,000
4 贝兹 4 浴室 3,264 平方英尺
2747 DORELL AVENUE

The multiple listing information is provided by the Stellar MLS from a copyrighted compilation of listings. The compilation of listings and each individual listing are ©2025-present Stellar MLS. All Rights Reserved. The information provided is for consumers' personal, noncommercial use and may not be used for any purpose other than to identify prospective properties consumers may be interested in purchasing. All properties are subject to prior sale or withdrawal. All information provided is deemed reliable but is not guaranteed accurate, and should be independently verified. Listing courtesy of: PALMANO GROUP RE BROKERAGE LLC