特性
探索我们的清单
聯繫
告诉我们您的需求

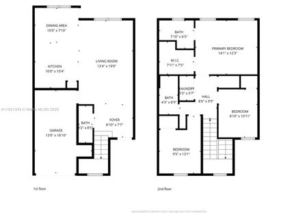
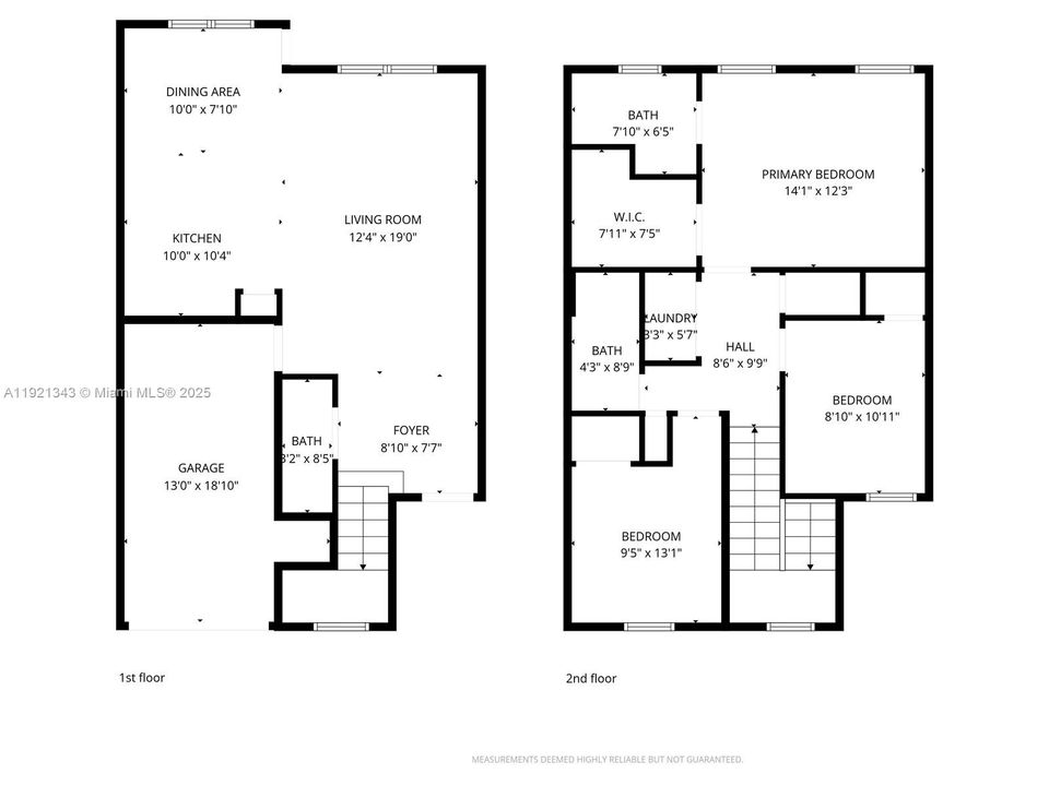
15481 NW 91st Ct, Miami Lakes FL 33018

联排别墅 待售
$629,999

BTC: 7.29587724

ETH: 215.31066302

-$10K (2025/12/16)
30 天
滨水区
3 贝兹
2 浴室
1,588 平方英尺
Est. 预计销售范围: $0 - $0
$0

总览

This two story townhome stands out the moment you step inside. The owners have cared for it with intention, keeping every space clean, updated, and truly inviting. The open layout, impact windows, smart features, and modern touches lead to a private backyard with direct access to the lake, creating a calm setting for quiet mornings or easy gatherings. The gated community offers a resort style clubhouse, pools, cabanas, gym, playground, and a dock for lake activities. Set in the center of Miami Lakes, an area loved for its parks, peaceful vibe, top schools, and strong sense of community.

位置

详情与特色

类型:
Residential
停车:
2 Or More Spaces
建造年份:
2017
地段:
没有数据
暖气:
Central / Electric
价格/平方英尺:
$397
冷气:
Central Air / Electric
HOA:
$194
更多事实和特点
  • 地板

    • Tile

    暖气

    • Central

    • Electric

    冷气

    • Central Air

    • Electric

    设备

    • Dishwasher

    • Dryer

    • Microwave

    • Refrigerator

    • Washer

    其他室内特点

    • First Floor Entry

    • Closet Cabinetry

    • Cooking Island

    • Pantry

    • Walk-In Closet(s)

    卧室和浴室

    • 卧室: 3

    • 洗手间: 1

    • 完整的浴室: 2

  • 停车

    • 2 Or More Spaces

    房屋

    • 外观特征: Other

    其他财产信息

    • 包裹编号: 32-20-16-005-2580

  • 类型与风格

    • 财产种类: Residential

    • 属性子类型: Townhouse

  • 其他财政信息

    • HOA: $194

    • HOA频率: Monthly

    • 年税额: $12,893

  • 来源细节

    • MLS ID: A11921343

    其他详情

    • 建筑材料: Concrete Block Construction / CBS Construction

    • 洗衣功能: Washer/Dryer Hook-Up

    • 天井和门廊特色: Deck / Open Porch / Patio

    • 滨水区: 是

    • 车库空间: 2

    • 车库: 是

    • 生活区域: 1588

    • 细分名称: DUNNWOODY LAKE

类似房屋

14817 Balgowan Rd # 5, Miami Lakes FL 33016 placeholder 14817 Balgowan Rd # 5, Miami Lakes FL 33016
待售
公寓/合作社
$484,999
2 贝兹 2 浴室 1,405 平方英尺
14817 Balgowan Rd # 5, Miami Lakes FL 33016
10589 W 32nd Ln, Hialeah Gardens FL 33018 placeholder 10589 W 32nd Ln, Hialeah Gardens FL 33018
待售
联排别墅
$520,000
3 贝兹 3 浴室 1,332 平方英尺
10589 W 32nd Ln, Hialeah Gardens FL 33018
3366 W 90th Ter, Hialeah FL 33018 placeholder 3366 W 90th Ter, Hialeah FL 33018
待售
联排别墅
$585,000
4 贝兹 2 浴室 1,862 平方英尺
3366 W 90th Ter, Hialeah FL 33018
9155 NW 161st St, Miami Lakes FL 33018 placeholder 9155 NW 161st St, Miami Lakes FL 33018
3 天
待售
联排别墅
$620,000
3 贝兹 2 浴室 1,588 平方英尺
9155 NW 161st St, Miami Lakes FL 33018
7185 W 30th Ln, Hialeah FL 33018 placeholder 7185 W 30th Ln, Hialeah FL 33018
4 天
待售
房屋
$617,000
3 贝兹 2 浴室 1,451 平方英尺
7185 W 30th Ln, Hialeah FL 33018
19030 NW 86th Ct, Hialeah FL 33015 placeholder 19030 NW 86th Ct, Hialeah FL 33015
6 天
待售
房屋
$533,444
3 贝兹 2 浴室
19030 NW 86th Ct, Hialeah FL 33015
15035 NW 88th Ct, Miami Lakes FL 33018 placeholder 15035 NW 88th Ct, Miami Lakes FL 33018
7 天
待售
房屋
$700,000
3 贝兹 2 浴室 1,868 平方英尺
15035 NW 88th Ct, Miami Lakes FL 33018
3332 W 95th Ter, Hialeah FL 33018 placeholder 3332 W 95th Ter, Hialeah FL 33018
7 天
待售
房屋
$745,000
4 贝兹 2 浴室 2,486 平方英尺
3332 W 95th Ter, Hialeah FL 33018

The multiple listing information is provided by the Miami Association of REALTORS® from a copyrighted compilation of listings. The compilation of listings and each individual listing are ©2025-present Miami Association of REALTORS®. All Rights Reserved. The information provided is for consumers' personal, noncommercial use and may not be used for any purpose other than to identify prospective properties consumers may be interested in purchasing. All properties are subject to prior sale or withdrawal. All information provided is deemed reliable but is not guaranteed accurate, and should be independently verified. Listing courtesy of: Avenew Realty Corp