特性
探索我们的清单
聯繫
告诉我们您的需求

1614 16th, West Palm Beach, FL 33407

联排别墅 合同活跃
$309,999

BTC: 3.59002895

ETH: 105.94634313

-$15K (2025/11/10)
93 天
2 贝兹
2 浴室
1,236 平方英尺
Est. 预计销售范围: $0 - $0
$0

总览

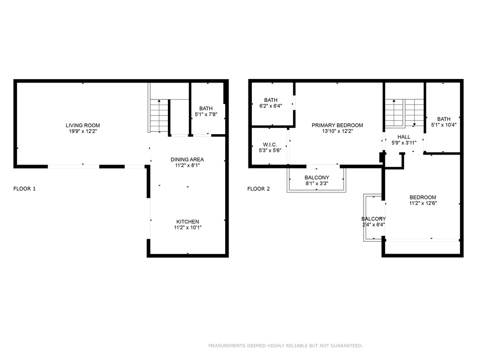
Beautifully updated 2BR/2.5BA townhouse offering 1,236 sq. ft. with updated kitchen, remodeled bathrooms, 2 year old water heater and updated flooring throughout. Spacious primary suite features private balcony, a walk-in closet and updated master bathroom with dual sinks, & modern separate shower, while the second bedroom has also its own bathroom, large closets and private balcony as well. Enjoy a large fenced patio, with outside kitchen area, accordion shutters, and newer roof (2018). HOA includes cable, water, exterior, roof & more. Community amenities: pools, tennis, playgrounds, dog park & fitness trails. Conveniently located near shopping, dining, I-95 & downtown West Palm Beach. Pet friendly & water and cable included with HOA!

位置

详情与特色

类型:
Residential
停车:
Assigned
建造年份:
1983
地段:
1346 平方英尺
暖气:
Central
价格/平方英尺:
$251
冷气:
Central
HOA:
没有数据
更多事实和特点
  • 地板

    • Laminate

    • Tile

    暖气

    • Central

    冷气

    • Central

    设备

    • Dishwasher

    • Dryer

    • Microwave

    • Range - Electric

    • Refrigerator

    • Storm Shutters

    • Washer

    • Water Heater - Elec

    其他室内特点

    • Entry Lvl Lvng Area

    • Walk-in Closet

    卧室和浴室

    • 卧室: 2

    • 洗手间: 1

    • 完整的浴室: 2

  • 停车

    • Assigned

    房屋

    • 外观特征: Fence / Open Patio / Shutters

    地段

    • 地段: 1346 平方英尺

    其他财产信息

    • 包裹编号: 74424301070000884

    • 分区: RPD(ci

  • 类型与风格

    • 财产种类: Residential

    • 属性子类型: Townhouse

  • 公益

    • Cable

    • Electric

    • Public Sewer

    • Public Water

  • 其他财政信息

    • 年税额: $5,370

  • 来源细节

    • MLS ID: RX-11123880

    其他详情

    • 建筑材料: Concrete

    • 洗衣功能: Washer / Dryer Hookup / Washer and Dryer

    • 地段特征: < 1/4 Acre

    • 天井和门廊特色: Patio

    • 方向面: See google maps

    • 生活区域: 1236

    • 细分名称: VILLAGE OF SANDALWOOD LAKES 1

类似房屋

1357 9th, West Palm Beach, FL 33401 placeholder 1357 9th, West Palm Beach, FL 33401
+$20K (2025/12/02)
合同活跃
房屋
$240,000
3 贝兹 1 浴室 864 平方英尺
1357 9th, West Palm Beach, FL 33401
4203 Napoli Lake, Riviera Beach, FL 33410 placeholder 4203 Napoli Lake, Riviera Beach, FL 33410
4 天
合同活跃
联排别墅
$259,900
2 贝兹 2 浴室 1,221 平方英尺
4203 Napoli Lake, Riviera Beach, FL 33410
814 44th, West Palm Beach, FL 33407 placeholder 814 44th, West Palm Beach, FL 33407
7 天
合同活跃
房屋
$358,888
3 贝兹 1 浴室 1,266 平方英尺
814 44th, West Palm Beach, FL 33407
4570 Brook Dr, West Palm Beach FL 33417 placeholder 4570 Brook Dr, West Palm Beach FL 33417
9 天
合同活跃
房屋
$289,900
2 贝兹 1 浴室 1,068 平方英尺
4570 Brook Dr, West Palm Beach FL 33417
3486 Briar Bay, West Palm Beach, FL 33411 placeholder 3486 Briar Bay, West Palm Beach, FL 33411
9 天
合同活跃
公寓/合作社
$250,000
3 贝兹 2 浴室 1,092 平方英尺
3486 Briar Bay, West Palm Beach, FL 33411
4996 Sable Pine, West Palm Beach, FL 33417 placeholder 4996 Sable Pine, West Palm Beach, FL 33417
12 天
合同活跃
公寓/合作社
$220,000
2 贝兹 2 浴室 1,115 平方英尺
4996 Sable Pine, West Palm Beach, FL 33417
4714 Wadita Ka, West Palm Beach, FL 33417 placeholder 4714 Wadita Ka, West Palm Beach, FL 33417
12 天
合同活跃
房屋
$299,900
3 贝兹 1 浴室 924 平方英尺
4714 Wadita Ka, West Palm Beach, FL 33417
4879 Via Palm, West Palm Beach, FL 33417 placeholder 4879 Via Palm, West Palm Beach, FL 33417
13 天
合同活跃
公寓/合作社
$239,500
2 贝兹 2 浴室 904 平方英尺
4879 Via Palm, West Palm Beach, FL 33417

The multiple listing information is provided by the Beaches MLS from a copyrighted compilation of listings. The compilation of listings and each individual listing are ©2025-present Beaches MLS. All Rights Reserved. The information provided is for consumers' personal, noncommercial use and may not be used for any purpose other than to identify prospective properties consumers may be interested in purchasing. All properties are subject to prior sale or withdrawal. All information provided is deemed reliable but is not guaranteed accurate, and should be independently verified. Listing courtesy of: RE/MAX Prestige Realty/Wellington