特性
探索我们的清单
聯繫
告诉我们您的需求

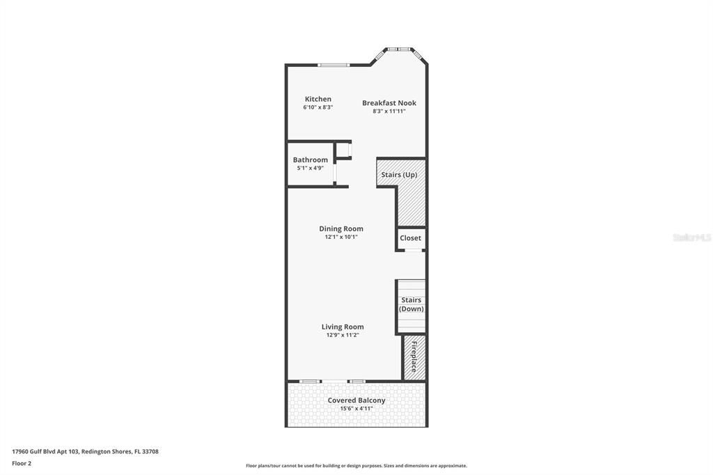
17960 GULF BOULEVARD UNIT 103

联排别墅 待售
$588,000

BTC: 19.60000000

ETH: 294.00000000

-$10K (2025/09/25)
92 天
滨水区
2 贝兹
2 浴室
1,237 平方英尺
Est. 预计销售范围: $0 - $0
$0

总览

Experience the ultimate Florida lifestyle in this stunning beachfront townhome at Sunset Reef in Redington Shores. With as little as 5% down payment, you can own this FULLY FURNISHED 2-bedroom, 2.5-bathroom oasis, perfect for vacations, full-time living, or as a lucrative investment (30-day minimum rentals). Inside, enjoy recent UPGRADES including PORCELAIN TILE FLOORS, QUARTZ COUNTERTOPS, REMODELED BATHROOMS, NEW APPLIANCES, and CUSTOM PLANTATION SHUTTERS. And the spacious primary suite boasts an UPGRADED ENSUITE BATH all just steps from beach living. The attached garage provides ample space for beach gear and more. ROOF-2024, refrigerator and stove 2024 with TRANSFERABLE WARRANTIES, HOT WATER HEATER-2023. Outside, relax in the year-round heated pool or witness breathtaking sunsets from the beach or community gathering area. Enjoy easy access to John's Pass, boat ramps, restaurants, shops, nightlife, and water sports. Just 30-45 minutes from downtown St. Pete and Tampa International Airport. This pet-friendly community (1 pet up to 20 lbs) offers assigned and guest parking, plus a one-car garage. HOA Fee Includes Building Insurance, Flood Insurance, Cable TV, Internet, Heated Community Pool, Escrow Reserves Fund, Maintenance Exterior, Maintenance Grounds, Pool Maintenance, Sewer, Trash & Water. Don't miss this opportunity to live the Florida dream in Redington Shores. Contact us today to schedule a viewing!

位置

详情与特色

类型:
Residential
停车:
没有数据
建造年份:
1989
地段:
0.02 英亩
暖气:
Central
价格/平方英尺:
$475
冷气:
Central Air
HOA:
$947
更多事实和特点
  • 地板

    • Carpet

    • Ceramic Tile

    暖气

    • Central

    冷气

    • Central Air

    设备

    • Dishwasher

    • Disposal

    • Dryer

    • Microwave

    • Range

    • Refrigerator

    • Washer

    其他室内特点

    • Ceiling Fan(s)

    • Eating Space In Kitchen

    • Living Room/Dining Room Combo

    • Open Floorplan

    • PrimaryBedroom Upstairs

    • Skylight(s)

    • Solid Surface Counters

    • Split Bedroom

    • Vaulted Ceiling(s)

    • Window Treatments

    卧室和浴室

    • 卧室: 2

    • 洗手间: 1

    • 完整的浴室: 2

  • 房屋

    • 等级: Three Or More

    • 外观特征: Balcony / Lighting / Sidewalk

    地段

    • 地段: 0.02 英亩

    其他财产信息

    • 包裹编号: 313015881520011030

  • 类型与风格

    • 财产种类: Residential

    • 属性子类型: Townhouse

  • 公益

    • Electricity Connected

  • 其他财政信息

    • HOA: $947

    • HOA频率: Monthly

    • 年税额: $7,383

  • 来源细节

    • MLS ID: TB8423164

    其他详情

    • 建筑材料: Block / Wood Frame

    • 基金会详情: Slab

    • 壁炉功能: Wood Burning

    • 洗衣功能: Inside / Laundry Closet

    • 泳池特色: Heated

    • 方向面: North

    • 滨水区: 是

    • 壁炉: 是

    • 车库空间: 1

    • 附属车库: 是

    • 车库: 是

    • 生活区域: 1237

    • 水源: Public

    • 细分名称: SUNSET REEF

类似房屋

14996 IMPERIAL POINT DRIVE N placeholder 14996 IMPERIAL POINT DRIVE N
待售
房屋
$569,000
3 贝兹 2 浴室 2,400 平方英尺
14996 IMPERIAL POINT DRIVE N
13725 BERMUDA DRIVE placeholder 13725 BERMUDA DRIVE
2 天
待售
房屋
$475,000
3 贝兹 2 浴室 1,407 平方英尺
13725 BERMUDA DRIVE
19531 GULF BOULEVARD UNIT 502 placeholder 19531 GULF BOULEVARD UNIT 502
3 天
待售
公寓/合作社
$510,000
2 贝兹 2 浴室 1,320 平方英尺
19531 GULF BOULEVARD UNIT 502
19701 GULF BOULEVARD UNIT 120 placeholder 19701 GULF BOULEVARD UNIT 120
3 天
待售
公寓/合作社
$499,000
2 贝兹 2 浴室 985 平方英尺
19701 GULF BOULEVARD UNIT 120
12911 91ST AVENUE placeholder 12911 91ST AVENUE
4 天
待售
房屋
$520,000
3 贝兹 2 浴室 1,508 平方英尺
12911 91ST AVENUE
17960 GULF BOULEVARD UNIT 104 placeholder 17960 GULF BOULEVARD UNIT 104
4 天
待售
联排别墅
$545,000
3 贝兹 1 浴室 1,237 平方英尺
17960 GULF BOULEVARD UNIT 104
15473 GULF BOULEVARD placeholder 15473 GULF BOULEVARD
4 天
待售
联排别墅
$697,000
4 贝兹 3 浴室 2,055 平方英尺
15473 GULF BOULEVARD
13948 BREWSTER DRIVE placeholder 13948 BREWSTER DRIVE
5 天
待售
房屋
$699,950
3 贝兹 2 浴室 2,056 平方英尺
13948 BREWSTER DRIVE

The multiple listing information is provided by the Stellar MLS from a copyrighted compilation of listings. The compilation of listings and each individual listing are ©2025-present Stellar MLS. All Rights Reserved. The information provided is for consumers' personal, noncommercial use and may not be used for any purpose other than to identify prospective properties consumers may be interested in purchasing. All properties are subject to prior sale or withdrawal. All information provided is deemed reliable but is not guaranteed accurate, and should be independently verified. Listing courtesy of: CHARLES RUTENBERG REALTY INC