特性
探索我们的清单
聯繫
告诉我们您的需求

19915 GULF BLVD UNIT 101

联排别墅 合同活跃
$1,049,950

BTC: 34.99833333

ETH: 524.97500000

8 天
3 贝兹
2 浴室
1,874 平方英尺
Est. 预计销售范围: $0 - $0
$0

总览

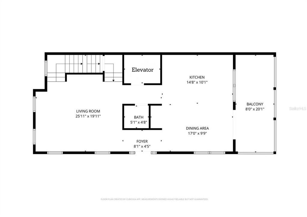
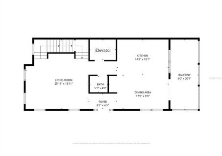
Under contract-accepting backup offers. Now is your chance to own a Luxury Townhome in exclusive Waterside with 43’ Boat Slip INCLUDED in the listing price. Experience the best of waterfront living in this meticulously maintained end-unit townhome, ideally located along 440 feet of the Intracoastal Waterway. Thoughtfully designed by nationally acclaimed Ashton Woods Builders, this residence combines cutting-edge style with unparalleled custom features, offering a truly incomparable lifestyle in Indian Shores. The extra hurricane impact windows in this corner unit make the home bright and sunny with lots of natural light. 10 ft high ceilings on the second floor and 9 ft high on the third give an open and expansive feel. The gourmet kitchen boasts upgraded cabinetry and a natural gas range, perfect for entertaining. The home comes fully furnished with stylish quality furnishings. Both full bathrooms feature elegant, upgraded tile, with a frameless shower enclosure in the Primary Bath adding a touch of modern luxury. Beautiful wood laminate flooring flows throughout the main living areas, complementing the bright, open floor plan. And the three-floor elevator ensures easy access to every level. The expansive garage, featuring an upgraded polyaspartic epoxy floor coating with a transferable lifetime warranty, easily accommodates three cars. In fact, at 16 ft wide, an 8 ft garage door and 10ft ceiling, you can park SUVs and large trucks with no problem. An impressive 30+ feet of overhead storage shelves provides ample space for all your gear. For ultimate peace of mind, the building is equipped with a full fire sprinkler system, hardwired security, and a wall pest control system. Enjoy serene beach views from the front of the house and relax by the community pool, just steps from your door. For the boating enthusiast, a private 43’ boat slip is included - a rare find! This townhome offers a coveted corner location and is located just steps to the famous white sands of Indian Shores. Also close to all the shops and amazing restaurants that your heart desires. 45 minutes to the Tampa International Airport and only 30 minutes to the St. Petersburg Airport. This is a golden opportunity to own in a premier waterside community, combining custom, high-end living with the convenience of a low-maintenance lifestyle. This one-of-a-kind property won't last long—schedule your private showing today before it's gone.

位置

详情与特色

类型:
Residential
停车:
Garage Door Opener / Garage Faces Rear / Ground Level / Guest / Oversized / Tandem
建造年份:
2016
地段:
0.03 英亩
暖气:
Central / Electric / Natural Gas / Heat Pump
价格/平方英尺:
$560
冷气:
Central Air
HOA:
$1,145
更多事实和特点
  • 地板

    • Carpet

    • Ceramic Tile

    • Luxury Vinyl

    • Hardwood

    暖气

    • Central

    • Electric

    • Natural Gas

    • Heat Pump

    冷气

    • Central Air

    设备

    • Dishwasher

    • Disposal

    • Dryer

    • Freezer

    • Microwave

    • Range

    • Refrigerator

    • Tankless Water Heater

    • Washer

    其他室内特点

    • Ceiling Fan(s)

    • High Ceilings

    • In Wall Pest System

    • Stone Counters

    • Walk-In Closet(s)

    卧室和浴室

    • 卧室: 3

    • 洗手间: 1

    • 完整的浴室: 2

  • 停车

    • Garage Door Opener

    • Garage Faces Rear

    • Ground Level

    • Guest

    • Oversized

    • Tandem

    房屋

    • 等级: Three Or More

    • 外观特征: Balcony / French Doors / Lighting / Rain Gutters

    地段

    • 地段: 0.03 英亩

    其他财产信息

    • 包裹编号: 243014951050010010

    • 分区: RES

  • 类型与风格

    • 财产种类: Residential

    • 属性子类型: Townhouse

  • 公益

    • Cable Connected

    • Electricity Connected

    • Natural Gas Connected

    • Public

    • Sewer Connected

    • Street Lights

    • Underground Utilities

    • Water Connected

  • 其他财政信息

    • HOA: $1,145

    • HOA频率: Monthly

    • 年税额: $11,445

  • 来源细节

    • MLS ID: TB8442552

    其他详情

    • 建筑材料: Block / Stucco

    • 基金会详情: Slab

    • 洗衣功能: Laundry Room

    • 地段特征: City Lot / Landscaped / Near Marina / Near Public Transit / Sidewalk

    • 天井和门廊特色: Deck / Side Porch

    • 窗户功能: Storm Window(s) / Window Treatments

    • 方向面: West

    • 车库空间: 3

    • 附属车库: 是

    • 车库: 是

    • 生活区域: 1874

    • 水源: Public

    • 细分名称: WATERSIDE INDIAN SHORES

类似房屋

501 20TH AVENUE placeholder 501 20TH AVENUE
3 天
合同活跃
房屋
$975,000
2 贝兹 2 浴室 1,342 平方英尺
501 20TH AVENUE
521 20TH AVENUE placeholder 521 20TH AVENUE
4 天
合同活跃
房屋
$850,000
2 贝兹 2 浴室 1,460 平方英尺
521 20TH AVENUE
6989 122ND WAY placeholder 6989 122ND WAY
4 天
合同活跃
房屋
$750,000
4 贝兹 2 浴室 2,252 平方英尺
6989 122ND WAY
13000 HIBISCUS AVENUE placeholder 13000 HIBISCUS AVENUE
4 天
合同活跃
房屋
$775,000
3 贝兹 2 浴室 2,214 平方英尺
13000 HIBISCUS AVENUE
8310 140TH STREET placeholder 8310 140TH STREET
12 天
合同活跃
房屋
$850,000
4 贝兹 3 浴室 2,409 平方英尺
8310 140TH STREET
13780 76TH AVENUE placeholder 13780 76TH AVENUE
14 天
合同活跃
房屋
$925,000
4 贝兹 3 浴室 2,692 平方英尺
13780 76TH AVENUE
13702 76TH TERRACE placeholder 13702 76TH TERRACE
14 天
合同活跃
房屋
$795,000
3 贝兹 2 浴室 1,991 平方英尺
13702 76TH TERRACE
17715 GULF BOULEVARD UNIT 302 placeholder 17715 GULF BOULEVARD UNIT 302
17 天
合同活跃
公寓/合作社
$880,000
3 贝兹 3 浴室 1,995 平方英尺
17715 GULF BOULEVARD UNIT 302

The multiple listing information is provided by the Stellar MLS from a copyrighted compilation of listings. The compilation of listings and each individual listing are ©2025-present Stellar MLS. All Rights Reserved. The information provided is for consumers' personal, noncommercial use and may not be used for any purpose other than to identify prospective properties consumers may be interested in purchasing. All properties are subject to prior sale or withdrawal. All information provided is deemed reliable but is not guaranteed accurate, and should be independently verified. Listing courtesy of: HOMEFRONT REALTY