特性
探索我们的清单
聯繫
告诉我们您的需求

4602 WINDING RIVER WAY

联排别墅 待售
$280,000

BTC: 4.19475655

ETH: 134.61538462

22 天
3 贝兹
2 浴室
1,880 平方英尺
Est. 预计销售范围: $0 - $0
$0

总览

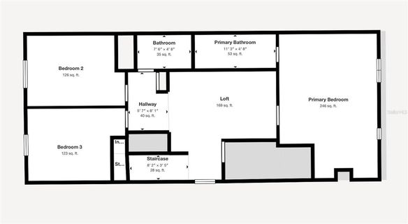
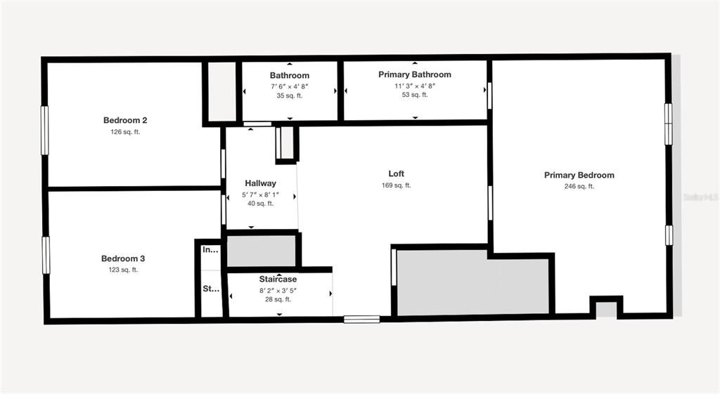
This beautiful townhome offers 3 bedrooms, 2.5 baths, and a versatile loft space—perfect for a home office or bonus area. The kitchen features a closet pantry and breakfast bar and opens to the family room, creating a comfortable and inviting layout for everyday living. Neutral tile flooring spans the kitchen and entry foyer on the first level, while plush carpeting runs throughout the second floor. Upstairs, the split-bedroom floor plan provides added privacy. The spacious primary suite includes a large walk-in closet and a private en-suite bath. Enjoy the added benefit of an end unit with no neighbors on one side. Additional highlights include no CDD fees and a low monthly HOA. Ideally located just minutes from Tampa Premium Outlets, The Grove, restaurants, I-75, and more—this home offers both convenience and comfort.

位置

详情与特色

类型:
Residential
停车:
没有数据
建造年份:
2005
地段:
0.03 英亩
暖气:
Central
价格/平方英尺:
$149
冷气:
Central Air
HOA:
$240
更多事实和特点
  • 地板

    • Carpet

    • Ceramic Tile

    暖气

    • Central

    冷气

    • Central Air

    设备

    • Built-In Oven

    • Electric Water Heater

    • Microwave

    • Refrigerator

    • Washer

    其他室内特点

    • Eating Space In Kitchen

    • Living Room/Dining Room Combo

    • PrimaryBedroom Upstairs

    • Walk-In Closet(s)

    卧室和浴室

    • 卧室: 3

    • 洗手间: 1

    • 完整的浴室: 2

  • 房屋

    • 等级: One

    • 外观特征: Private Entrance

    地段

    • 地段: 0.03 英亩

    其他财产信息

    • 包裹编号: 1526190110034000060

    • 分区: MPUD

  • 类型与风格

    • 财产种类: Residential

    • 属性子类型: Townhouse

  • 公益

    • Electricity Connected

  • 其他财政信息

    • HOA: $240

    • HOA频率: Monthly

    • 年税额: $3,959

  • 来源细节

    • MLS ID: O6367666

    其他详情

    • 建筑材料: Stucco

    • 基金会详情: Slab

    • 洗衣功能: Electric Dryer Hookup / Laundry Closet / Washer Hookup

    • 方向面: Southwest

    • 车库空间: 1

    • 附属车库: 是

    • 车库: 是

    • 生活区域: 1880

    • 水源: Public

    • 细分名称: EDGEWATER AT GRAND OAKS PH 02

类似房屋

3433 CHAPEL CREEK CIRCLE placeholder 3433 CHAPEL CREEK CIRCLE
5 天
待售
房屋
$349,900
2 贝兹 2 浴室 1,525 平方英尺
3433 CHAPEL CREEK CIRCLE
4935 PARKWAY BOULEVARD placeholder 4935 PARKWAY BOULEVARD
6 天
待售
房屋
$310,000
3 贝兹 2 浴室 1,494 平方英尺
4935 PARKWAY BOULEVARD
6735 MANGROVE DRIVE placeholder 6735 MANGROVE DRIVE
12 天
待售
$250,000
3 贝兹 2 浴室 1,404 平方英尺
6735 MANGROVE DRIVE
4224 WINDING RIVER WAY placeholder 4224 WINDING RIVER WAY
19 天
待售
联排别墅
$250,000
3 贝兹 2 浴室 1,536 平方英尺
4224 WINDING RIVER WAY
3332 BROKEN BOW DRIVE placeholder 3332 BROKEN BOW DRIVE
-$5K (2025/12/19)
待售
联排别墅
$275,000
3 贝兹 3 浴室 1,653 平方英尺
3332 BROKEN BOW DRIVE
26825 GLENHAVEN ROAD placeholder 26825 GLENHAVEN ROAD
33 天
待售
$300,000
3 贝兹 2 浴室 920 平方英尺
26825 GLENHAVEN ROAD
3912 SILVERLAKE WAY placeholder 3912 SILVERLAKE WAY
-$5K (2026/01/05)
待售
联排别墅
$255,000
3 贝兹 2 浴室 1,706 平方英尺
3912 SILVERLAKE WAY
3914 SILVERLAKE WAY placeholder 3914 SILVERLAKE WAY
-$5K (2026/01/05)
待售
联排别墅
$255,000
3 贝兹 2 浴室 1,706 平方英尺
3914 SILVERLAKE WAY

The multiple listing information is provided by the Stellar MLS from a copyrighted compilation of listings. The compilation of listings and each individual listing are ©2026-present Stellar MLS. All Rights Reserved. The information provided is for consumers' personal, noncommercial use and may not be used for any purpose other than to identify prospective properties consumers may be interested in purchasing. All properties are subject to prior sale or withdrawal. All information provided is deemed reliable but is not guaranteed accurate, and should be independently verified. Listing courtesy of: CENTRIC REALTY SERVICES LLC