特性
探索我们的清单
聯繫
告诉我们您的需求

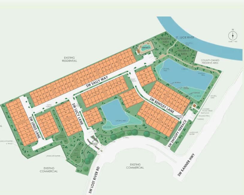
7770 Bentley, Stuart, FL 34997

联排别墅 合同活跃
$439,920

BTC: 14.66400000

ETH: 219.96000000

-$15K (2025/11/09)
21 天
滨水区
3 贝兹
2 浴室
1,750 平方英尺
Est. 预计销售范围: $0 - $0
$0

总览

NEW CONSTRUCTION: Welcome to Pulte's Newest Townhome Community of Camellia. With quick access to I-95, shopping and restaurants - this location is ideal! The Nautical plan has 3 Bedrooms plus a loft plus a handy Flex space downstairs for a Den or Home Office. The Gathering Room is open to the kitchen with welcoming oversized island. The Laundry Room is conveniently located on the second floor with the bedrooms. Pricing includes corner location premium with lake view and upgraded design packages with elegant and on-trend finishes making move in a breeze no matter what your decorating style. Plus Window blinds package already installed.

位置

详情与特色

类型:
Residential
停车:
2+ Spaces / Drive - Decorative / Driveway / Garage - Attached / Guest / Vehicle Restrictions
建造年份:
2025
地段:
2217 平方英尺
暖气:
Central
价格/平方英尺:
$251
冷气:
Central
HOA:
没有数据
更多事实和特点
  • 地板

    • Carpet

    • Tile

    暖气

    • Central

    冷气

    • Central

    设备

    • Auto Garage Open

    • Dishwasher

    • Disposal

    • Dryer

    • Microwave

    • Range - Electric

    • Refrigerator

    • Smoke Detector

    • Washer

    • Water Heater - Elec

    其他室内特点

    • Foyer

    • Kitchen Island

    • Pantry

    • Upstairs Living Area

    • Walk-in Closet

    卧室和浴室

    • 卧室: 3

    • 洗手间: 1

    • 完整的浴室: 2

  • 停车

    • 2+ Spaces

    • Drive - Decorative

    • Driveway

    • Garage - Attached

    • Guest

    • Vehicle Restrictions

    房屋

    • 外观特征: Open Patio

    地段

    • 地段: 2217 平方英尺

    其他财产信息

    • 包裹编号: 053941013000007100

    • 分区: PUD

  • 类型与风格

    • 财产种类: Residential

    • 属性子类型: Townhouse

  • 公益

    • Underground

  • 来源细节

    • MLS ID: RX-11137657

    其他详情

    • 建筑材料: CBS

    • 洗衣功能: Washer and Dryer

    • 地段特征: < 1/4 Acre / Corner Lot / Freeway Access / Paved Road / Sidewalks / West of US-1

    • 天井和门廊特色: Patio

    • 方向面: I-95 -Exit 101 toward Stuart and merge onto FL-76 EHead northeast 0.2 miles, then left on SW Lost River BlvdTurn right into the Camellia community

    • 滨水区: 是

    • 车库空间: 1

    • 车库: 是

    • 生活区域: 1750

    • 细分名称: CAMELLIA

类似房屋

160 Birch, Stuart, FL 34997 placeholder 160 Birch, Stuart, FL 34997
2 天
合同活跃
房屋
$529,995
3 贝兹 2 浴室 2,057 平方英尺
160 Birch, Stuart, FL 34997
164 Birch, Stuart, FL 34997 placeholder 164 Birch, Stuart, FL 34997
3 天
合同活跃
联排别墅
$409,995
3 贝兹 2 浴室 1,683 平方英尺
164 Birch, Stuart, FL 34997
165 Birch, Stuart, FL 34997 placeholder 165 Birch, Stuart, FL 34997
8 天
合同活跃
联排别墅
$429,211
3 贝兹 2 浴室 1,683 平方英尺
165 Birch, Stuart, FL 34997
8828 Horizon, Stuart, FL 34997 placeholder 8828 Horizon, Stuart, FL 34997
10 天
合同活跃
房屋
$497,500
4 贝兹 2 浴室 1,625 平方英尺
8828 Horizon, Stuart, FL 34997
130 Birch, Stuart, FL 34997 placeholder 130 Birch, Stuart, FL 34997
+$80K (2025/08/14)
合同活跃
联排别墅
$474,995
3 贝兹 2 浴室 1,986 平方英尺
130 Birch, Stuart, FL 34997
177 Birch, Stuart, FL 34997 placeholder 177 Birch, Stuart, FL 34997
-$10K (2025/11/21)
合同活跃
房屋
$418,828
3 贝兹 2 浴室 1,683 平方英尺
177 Birch, Stuart, FL 34997
7765 Bentley, Stuart, FL 34997 placeholder 7765 Bentley, Stuart, FL 34997
12 天
合同活跃
联排别墅
$410,340
3 贝兹 2 浴室 1,550 平方英尺
7765 Bentley, Stuart, FL 34997
7782 Bentley, Stuart, FL 34997 placeholder 7782 Bentley, Stuart, FL 34997
12 天
合同活跃
联排别墅
$399,845
3 贝兹 2 浴室 1,550 平方英尺
7782 Bentley, Stuart, FL 34997

The multiple listing information is provided by the Beaches MLS from a copyrighted compilation of listings. The compilation of listings and each individual listing are ©2025-present Beaches MLS. All Rights Reserved. The information provided is for consumers' personal, noncommercial use and may not be used for any purpose other than to identify prospective properties consumers may be interested in purchasing. All properties are subject to prior sale or withdrawal. All information provided is deemed reliable but is not guaranteed accurate, and should be independently verified. Listing courtesy of: Pulte Realty Inc