特性
探索我们的清单
聯繫
告诉我们您的需求

8841 WHITE SAGE LOOP UNIT 8841

联排别墅 待售
$199,000

BTC: 2.95396988

ETH: 103.64583333

4 天
2 贝兹
2 浴室
1,064 平方英尺
Est. 预计销售范围: $0 - $0
$0

总览

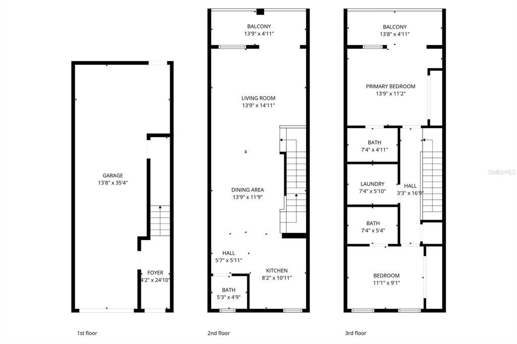
Most affordable townhouse available now at Willowbrook at Lakewood Ranch, a gated community ideally located just minutes from the University Parkway corridor, Lakewood Ranch Main Street, and Waterside, where dining, shopping, entertainment, and everyday conveniences are always close at hand. This townhome offers a rare combination of location, privacy, and low-maintenance living, all within one of Sarasota’s most sought-after master-planned communities. This residence provides a truly maintenance-free lifestyle, with lawn care, exterior maintenance, water, sewer, trash, cable, and internet all included. Plus a newer AC Unit from 2022 gives extra reliability and security. Inside, the main living level features a bright, open floor plan designed for both comfort and functionality. The spacious living and dining areas seamlessly flow into the kitchen, creating an inviting space for everyday living or entertaining. The kitchen is well appointed with ample cabinetry, stone countertops, stainless steel appliances, and a breakfast bar for casual dining. Just off the living room, a screened lanai provides a peaceful outdoor retreat, while a third-level balcony offers an additional space to relax and enjoy elevated views. Upstairs, the home features two ensuite bedrooms, each with a private bathroom, providing comfort and privacy for residents and guests alike. A separate laundry room adds everyday convenience, and the overall layout makes this home ideal for full-time living, seasonal use, or a lock-and-leave lifestyle. An oversized garage is attached to the building on the first floor, offering excellent storage space and convenient direct access—an especially valuable feature for townhome living. Willowbrook is known for its beautifully maintained grounds and welcoming atmosphere, complete with a resort-style community pool. Adding even more value, the community features no CDD fee and a low HOA, which covers cable, internet, water, trash, landscaping, exterior maintenance, and access to community amenities—making this an exceptional value within Lakewood Ranch. The location truly sets this home apart. Just minutes to championship golf, dining, shopping, and I-75, with Lakewood Ranch Main Street and Waterside nearby for vibrant events and waterfront experiences, and world-famous Gulf beaches only a short drive away. For those seeking privacy, tranquility, mature trees, and the ease of no yard work, this home perfectly captures the essence of Sarasota living—comfortable, private, and close to everything. Contact us today to schedule your private showing and experience this exceptional Willowbrook townhome in person.

位置

详情与特色

类型:
Residential
停车:
Garage Door Opener / Off Street / Oversized / Tandem / Underground
建造年份:
2007
地段:
没有数据
暖气:
Central / Electric
价格/平方英尺:
$187
冷气:
Central Air
HOA:
没有数据
更多事实和特点
  • 地板

    • Carpet

    • Ceramic Tile

    • Laminate

    暖气

    • Central

    • Electric

    冷气

    • Central Air

    设备

    • Dishwasher

    • Dryer

    • Electric Water Heater

    • Microwave

    • Range

    • Refrigerator

    • Washer

    其他室内特点

    • Ceiling Fan(s)

    • Eating Space In Kitchen

    • Kitchen/Family Room Combo

    • Living Room/Dining Room Combo

    • Other

    • PrimaryBedroom Upstairs

    • Solid Wood Cabinets

    • Split Bedroom

    • Stone Counters

    • Thermostat

    • Tray Ceiling(s)

    卧室和浴室

    • 卧室: 2

    • 洗手间: 1

    • 完整的浴室: 2

  • 停车

    • Garage Door Opener

    • Off Street

    • Oversized

    • Tandem

    • Underground

    房屋

    • 等级: Three Or More

    • 外观特征: Balcony / Irrigation System / Rain Gutters / Sliding Doors / Storage

    其他财产信息

    • 包裹编号: 1918522009

    • 分区: PDR

  • 类型与风格

    • 财产种类: Residential

    • 属性子类型: Townhouse

  • 公益

    • BB/HS Internet Available

    • Cable Connected

    • Electricity Connected

    • Public

    • Sewer Connected

    • Street Lights

    • Underground Utilities

    • Water Connected

  • 其他财政信息

    • 年税额: $2,943

  • 来源细节

    • MLS ID: A4676097

    其他详情

    • 建筑材料: Block

    • 基金会详情: Slab

    • 洗衣功能: Inside / Laundry Room / Upper Level

    • 地段特征: In County / Sidewalk

    • 天井和门廊特色: Covered / Patio / Rear Porch / Screened

    • 方向面: Southwest

    • 建筑风格: Florida

    • 车库空间: 1

    • 附属车库: 是

    • 车库: 是

    • 生活区域: 1064

    • 水源: Public

    • 细分名称: WILLOWBROOK PHASE 3

类似房屋

7123 STRAND CIRCLE placeholder 7123 STRAND CIRCLE
待售
公寓/合作社
$250,000
2 贝兹 2 浴室 1,320 平方英尺
7123 STRAND CIRCLE
5600 BENTGRASS DRIVE UNIT 8-107 placeholder 5600 BENTGRASS DRIVE UNIT 8-107
1 天
待售
公寓/合作社
$179,900
1 贝兹 1 浴室 1,032 平方英尺
5600 BENTGRASS DRIVE UNIT 8-107
6713 STONE RIVER ROAD UNIT 103 placeholder 6713 STONE RIVER ROAD UNIT 103
2 天
待售
公寓/合作社
$205,000
2 贝兹 2 浴室 1,202 平方英尺
6713 STONE RIVER ROAD UNIT 103
5433 FAIR OAKS STREET UNIT 5433 placeholder 5433 FAIR OAKS STREET UNIT 5433
3 天
待售
公寓/合作社
$210,000
2 贝兹 2 浴室 1,004 平方英尺
5433 FAIR OAKS STREET UNIT 5433
7860 PALM AIRE LANE UNIT 104 placeholder 7860 PALM AIRE LANE UNIT 104
4 天
待售
公寓/合作社
$250,000
2 贝兹 2 浴室 1,118 平方英尺
7860 PALM AIRE LANE UNIT 104
5416 STONEYBROOK LANE UNIT 5416 placeholder 5416 STONEYBROOK LANE UNIT 5416
5 天
待售
公寓/合作社
$239,000
2 贝兹 2 浴室 1,352 平方英尺
5416 STONEYBROOK LANE UNIT 5416
6501 STONE RIVER ROAD UNIT 205 placeholder 6501 STONE RIVER ROAD UNIT 205
5 天
待售
公寓/合作社
$229,000
2 贝兹 2 浴室 1,042 平方英尺
6501 STONE RIVER ROAD UNIT 205
7534 PLANTATION CIRCLE placeholder 7534 PLANTATION CIRCLE
5 天
待售
联排别墅
$220,000
2 贝兹 2 浴室 1,156 平方英尺
7534 PLANTATION CIRCLE

The multiple listing information is provided by the Stellar MLS from a copyrighted compilation of listings. The compilation of listings and each individual listing are ©2026-present Stellar MLS. All Rights Reserved. The information provided is for consumers' personal, noncommercial use and may not be used for any purpose other than to identify prospective properties consumers may be interested in purchasing. All properties are subject to prior sale or withdrawal. All information provided is deemed reliable but is not guaranteed accurate, and should be independently verified. Listing courtesy of: RE/MAX ALLIANCE GROUP