特性
探索我们的清单
聯繫
告诉我们您的需求

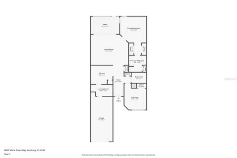
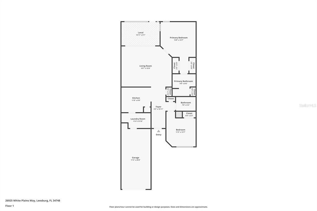
26925 WHITE PLAINS WAY

房屋 待售
$229,000

BTC: 2.65199768

ETH: 78.26384142

-$16K (2025/11/18)
88 天
2 贝兹
2 浴室
1,254 平方英尺
Est. 预计销售范围: $0 - $0
$0

总览

Affordable, Recently Updated Villa in Highly Sought-After, Guard-Gated Arlington Ridge – An Active Adult, Golf Community! Discover low-maintenance living in this beautifully updated 2-bedroom, 2-bathroom villa with 1,254 sq. ft. of thoughtfully designed space. Located in the guard-gated, this charming block & stucco home is packed with recent upgrades, great amenities, and unbeatable value. Key Features: MAJOR UPDATES: New Roof in 2023, New central heat & air (2024), new stainless-steel appliances, including a double oven gas range, dishwasher and French door refrigerator with 4 years remaining on the warranty. ALL NEW 100% waterproof, deluxe vinyl plank flooring throughout—NO CARPET! Low-maintenance landscaping and exterior fully maintained by HOA – from the roof to the lawn allowing you more time to do what you want. What will you do in your spare time? Spacious 19x16 living room, crown molding, and a screened, covered lanai overlooking a private, shaded backyard. Oversized 1-car garage + private driveway for guest parking. Indoor laundry room (11x9) with washer & dryer included. Master suite includes dual closets, ensuite bath with walk-in shower, dual vanities, private toilet, and linen closet. Guest bedroom with adjacent full bath offers comfort and privacy for visitors. Low HOA – Just $297/month! Includes: Roof & exterior painting as needed Lawn mowing, trimming, of blowing off of sidewalk & driveway 200+ cable TV channels 250 Mbps high-speed internet Wi-Fi router for full-home coverage Resort-Style Amenities Just 2 Blocks Away, Mailbox 1/4 Block away 18-hole golf course, driving range, & putting greens 2 heated pools, hot tub & sauna Lighted tennis & pickleball courts Fitness center, billiards, restaurant, tavern, & free movie theater No required golf or social membership to enjoy amenities! Golf cart-friendly with sidewalks and underground utilities for a polished community feel. Perfect for snowbirds or full-time residents who want peace of mind with no exterior upkeep. Home is built to high wind code standards in a low-wind zone—offering significant insurance savings and flood protection due to high elevation. Currently Paying Only $1,085/Year Ideal Location: 1 minute to back gate to avoid stoplights & traffic when leaving the community 5 minutes to grocery stores, pharmacies, and restaurants 10 minutes to emergency services and free public boat ramp & fishing pier on 15,000-acre lake Harris a major bass tournament fishing destination 20 minutes to major shopping and entertainment 45 minutes to Orlando, theme parks, and airport 90 minutes to both the Atlantic Coast and Gulf Coast

位置

佛罗里达 LEESBURG 34748 房屋 待售

详情与特色

类型:
Residential
停车:
没有数据
建造年份:
2009
地段:
0.08 英亩
暖气:
Central / Natural Gas
价格/平方英尺:
$183
冷气:
Central Air
HOA:
$297
更多事实和特点
  • 地板

    • Laminate

    暖气

    • Central

    • Natural Gas

    冷气

    • Central Air

    设备

    • Dishwasher

    • Dryer

    • Microwave

    • Range

    • Refrigerator

    • Washer

    其他室内特点

    • Living Room/Dining Room Combo

    • Open Floorplan

    • Primary Bedroom Main Floor

    • Solid Wood Cabinets

    • Split Bedroom

    • Walk-In Closet(s)

    • Window Treatments

    卧室和浴室

    • 卧室: 2

    • 完整的浴室: 2

  • 房屋

    • 等级: One

    • 外观特征: Rain Gutters / Sidewalk / Sliding Doors

    地段

    • 地段: 0.08 英亩

    其他财产信息

    • 包裹编号: 142024001700063300

    • 分区: PUD

  • 类型与风格

    • 财产种类: Residential

    • 属性子类型: Villa

  • 公益

    • Cable Connected

    • Electricity Connected

    • Fiber Optics

    • Fire Hydrant

    • Natural Gas Connected

    • Sewer Connected

    • Sprinkler Meter

    • Sprinkler Recycled

    • Street Lights

    • Underground Utilities

    • Water Connected

  • 其他财政信息

    • HOA: $297

    • HOA频率: Monthly

    • 年税额: $2,402

  • 来源细节

    • MLS ID: G5102632

    其他详情

    • 建筑材料: Block / Stucco

    • 基金会详情: Slab

    • 洗衣功能: Inside / Laundry Room

    • 地段特征: City Lot / Level / Near Golf Course / Sidewalk

    • 天井和门廊特色: Rear Porch / Screened

    • 方向面: South

    • 建筑风格: Florida

    • 车库空间: 1

    • 附属车库: 是

    • 车库: 是

    • 生活区域: 1254

    • 水源: Public

    • 细分名称: ARLINGTON RDG PH 01-C

类似房屋

103 FOUNTAIN COVE placeholder 103 FOUNTAIN COVE
2 天
待售
房屋
$161,500
2 贝兹 2 浴室 1,342 平方英尺
103 FOUNTAIN COVE
3919 PLANTATION BOULEVARD placeholder 3919 PLANTATION BOULEVARD
4 天
待售
房屋
$279,900
3 贝兹 2 浴室 1,748 平方英尺
3919 PLANTATION BOULEVARD
29453 CASPIAN STREET placeholder 29453 CASPIAN STREET
6 天
待售
房屋
$289,000
3 贝兹 2 浴室 1,484 平方英尺
29453 CASPIAN STREET
24805 RIVERBOAT BEND placeholder 24805 RIVERBOAT BEND
8 天
待售
房屋
$259,000
2 贝兹 2 浴室 1,563 平方英尺
24805 RIVERBOAT BEND
25205 CRANES ROOST CIRCLE placeholder 25205 CRANES ROOST CIRCLE
11 天
待售
房屋
$255,000
2 贝兹 2 浴室 1,328 平方英尺
25205 CRANES ROOST CIRCLE
7612 ROTTERMOND WAY placeholder 7612 ROTTERMOND WAY
+$900 (2025/12/13)
待售
房屋
$255,900
2 贝兹 2 浴室 963 平方英尺
7612 ROTTERMOND WAY
28027 CYPRESS SPRINGS LOOP placeholder 28027 CYPRESS SPRINGS LOOP
13 天
待售
房屋
$295,000
3 贝兹 2 浴室 1,451 平方英尺
28027 CYPRESS SPRINGS LOOP
25720 BELLE ALLIANCE placeholder 25720 BELLE ALLIANCE
14 天
待售
房屋
$265,000
2 贝兹 2 浴室 1,478 平方英尺
25720 BELLE ALLIANCE

The multiple listing information is provided by the Stellar MLS from a copyrighted compilation of listings. The compilation of listings and each individual listing are ©2025-present Stellar MLS. All Rights Reserved. The information provided is for consumers' personal, noncommercial use and may not be used for any purpose other than to identify prospective properties consumers may be interested in purchasing. All properties are subject to prior sale or withdrawal. All information provided is deemed reliable but is not guaranteed accurate, and should be independently verified. Listing courtesy of: LOKATION