Contact
Tell us about your needs

500 E AIRPORT BOULEVARD

For Sale
$89,940

BTC: 1.33507563

ETH: 46.84375000

-$60 (2025/08/29)
252 days
0 room(s)
5,124 sqft
Est. Estimated sales range: $0 - $0
$0

Overview

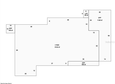
Amazing 5124 sq ft GC2 commercial building in excellent location offering over 350 ft of frontage on busy E Airport Blvd of Sanford. Office building is currently divided into 7 oversized rooms, however it could be easily further sectioned off if desired and additionally features 2 bathrooms, kitchenette with attached eating space, laundry room with multiple sinks/ hookups and 2 car carport. Private parking lot has 42 spaces. Furniture is negotiable. Owners might be willing to subdivide space. Brand new roof being installed May 2025. Please also see available listing at 502 E Airport Blvd Sanford, FL 32773.

Location

Florida SANFORD 32773 For Sale

Facts and features

Type:
Commercial Lease
Parking:
Over 30 Spaces
Year Built:
1961
Lot:
1.09 Acres
Heating:
Central
Price/sqft:
$18
Cooling:
Central Air
HOA:
No Data
All facts and features
  • Flooring

    • Carpet

    • Ceramic Tile

    Heating

    • Central

    Cooling

    • Central Air

    Appliances

    • Dryer

    • Refrigerator

    • Washer

  • Parking

    • Over 30 Spaces

    Property

    • Levels: One

    Lot

    • Lot: 1.09 Acres

    Other Property Information

    • Parcel Number: 0120305120000027A

    • Zoning: GC2

  • Type and style

    • Property Type: Commercial Lease

    • Property Sub Type: Business

  • Utility

    • BB/HS Internet Capable

  • Other financial information

    • Annual tax amount: $10,168

  • Source details

    • MLS ID: O6304297

    Other facts

    • Construction Materials: Block / Stucco

    • Foundation Details: Slab

    • Living Area: 5124

    • Subdivision Name: DRUID PARK AMD

Similar Homes

E 11TH STREET placeholder E 11TH STREET
15 days
For Sale
Lots/Land
$65,000
0 room(s)
E 11TH STREET
W 11TH STREET placeholder W 11TH STREET
23 days
For Sale
Lots/Land
$65,000
0 room(s)
W 11TH STREET
1609 W 13TH PLACE placeholder 1609 W 13TH PLACE
29 days
For Sale
Lots/Land
$65,000
0 room(s)
1609 W 13TH PLACE
2016 GRANDVIEW AVENUE N placeholder 2016 GRANDVIEW AVENUE N
97 days
For Sale
Lots/Land
$89,900
0 room(s)
2016 GRANDVIEW AVENUE N
2830 FRENCH AVENUE placeholder 2830 FRENCH AVENUE
188 days
For Sale
$72,000
0 room(s)
2830 FRENCH AVENUE
420 E 5TH STREET placeholder 420 E 5TH STREET
233 days
For Sale
Lots/Land
$63,000
0 room(s)
420 E 5TH STREET
2435 LAUREL AVENUE placeholder 2435 LAUREL AVENUE
-$4K (2025/09/10)
For Sale
Lots/Land
$95,000
0 room(s)
2435 LAUREL AVENUE
SANFORD AVENUE placeholder SANFORD AVENUE
275 days
For Sale
Lots/Land
$105,000
0 room(s)
SANFORD AVENUE

The multiple listing information is provided by the Stellar MLS from a copyrighted compilation of listings. The compilation of listings and each individual listing are ©2026-present Stellar MLS. All Rights Reserved. The information provided is for consumers' personal, noncommercial use and may not be used for any purpose other than to identify prospective properties consumers may be interested in purchasing. All properties are subject to prior sale or withdrawal. All information provided is deemed reliable but is not guaranteed accurate, and should be independently verified. Listing courtesy of: ABSOLUTE REALTY GROUP, LLC