Contact
Tell us about your needs

1331 Brickell Bay Dr # 3711, Miami FL 33131

Condo/Co-op Active With Contract
$4,300,000

BTC: 47.77777778

ETH: 1,416.80395387

64 days
Waterfront
4 bds
4 ba
3,415 sqft
Est. Estimated sales range: $0 - $0
$0

Overview

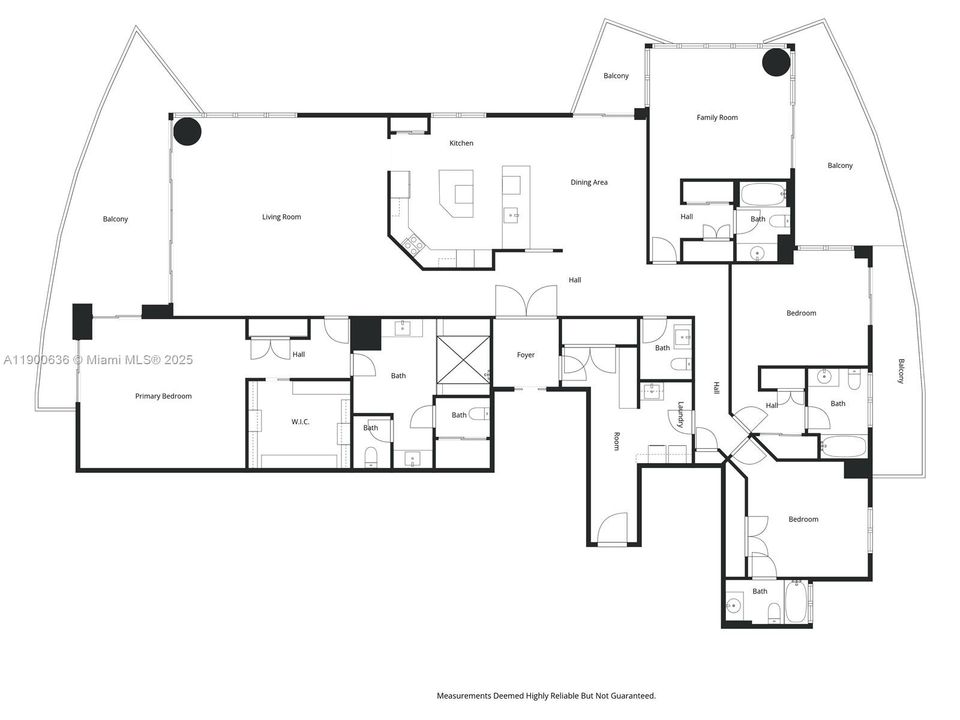
Experience Miami luxury at its finest in this 4-bedroom, 4.5-bath corner residence at JADE Brickell offering 3,415 SF of refined living space. Three expansive terraces showcase sunrise-to-sunset views of Biscayne Bay and the Miami skyline. The open layout connects spacious living areas w/floor-to-ceiling soundproof windows that fill the home w/natural light. Designer finishes include high ceilings, honed Saturnia marble, hardwood floors & a renovated chef’s kitchen w/Miele & Sub-Zero appliances, built-in coffee maker & dual wine coolers. The primary suite offers a spa-style bath & custom walk-in closet. Highlights include 4 parking spaces, private storage & elevator entry. Enjoy resort-style amenities & waterfront living in the heart of Brickell; the perfect blend of space, design & views.

Location

Facts and features

Type:
Residential
Parking:
2 Or More Spaces / Assigned / Covered
Year Built:
2004
Lot:
No Data
Heating:
Central / Electric
Price/sqft:
$1,259
Cooling:
Central Air
HOA:
No Data
All facts and features
  • Flooring

    • Marble

    • Tile

    • Wood

    Heating

    • Central

    • Electric

    Cooling

    • Central Air

    Appliances

    • Dishwasher

    • Disposal

    • Dryer

    • Ice Maker

    • Other Equipment/Appliances

    • Refrigerator

    • Self Cleaning Oven

    • Wall Oven

    • Washer

    Other interior features

    • Built-in Features

    • Cooking Island

    • Entrance Foyer

    • Other

    • Walk-In Closet(s)

    • Storage

    Bedrooms and bathrooms

    • Bedrooms: 4

    • Bathrooms: 1

    • Full bathrooms: 4

  • Parking

    • 2 Or More Spaces

    • Assigned

    • Covered

    Property

    • Levels: 1

    • Pool Private: Yes

    Other Property Information

    • Parcel Number: 01-41-39-082-3290

  • Type and style

    • Property Type: Residential

    • Property Sub Type: Condominium

  • Other financial information

    • HOA Frequency: Monthly

    • Annual tax amount: $57,087

  • Source details

    • MLS ID: A11900636

    Other facts

    • Construction Materials: CBS Construction

    • Patio And Porch Features: Wrap Around

    • Window Features: Complete Impact Glass / High Impact Windows / Solar Film/Tinted

    • Direction Faces: East

    • Architectural Style: Corner Unit / High Rise

    • Waterfront: Yes

    • Garage Spaces: 4

    • Attached Garage: Yes

    • Garage: Yes

    • Living Area: 3415

    • Subdivision Name: JADE BRICKELL RESIDENCES

Similar Homes

1668 Tigertail Ave, Miami FL 33133 placeholder 1668 Tigertail Ave, Miami FL 33133
22 days
Active With Contract
House
$5,487,000
5 bds 5 ba 3,379 sqft
1668 Tigertail Ave, Miami FL 33133
1643 Brickell Ave # 1602, Miami FL 33129 placeholder 1643 Brickell Ave # 1602, Miami FL 33129
38 days
Active With Contract
Condo/Co-op
$3,250,000
3 bds 4 ba 3,170 sqft
1643 Brickell Ave # 1602, Miami FL 33129
900 Biscayne Blvd, Miami FL 33132 placeholder 900 Biscayne Blvd, Miami FL 33132
52 days
Active With Contract
Penthouse
$3,350,000
4 bds 4 ba 3,199 sqft
900 Biscayne Blvd, Miami FL 33132
300 Biscayne Blvd Way # 501, Miami FL 33131 placeholder 300 Biscayne Blvd Way # 501, Miami FL 33131
83 days
Active With Contract
Condo/Co-op
$4,388,800
4 bds 5 ba 3,021 sqft
300 Biscayne Blvd Way # 501, Miami FL 33131
1866 Tigertail Ave, Miami FL 33133 placeholder 1866 Tigertail Ave, Miami FL 33133
-$200K (2025/10/29)
Active With Contract
House
$5,150,000
4 bds 4 ba 4,455 sqft
1866 Tigertail Ave, Miami FL 33133
1901 NW 7th St, Miami FL 33125 placeholder 1901 NW 7th St, Miami FL 33125
84 days
Active With Contract
Commercial
$3,975,000
0 room(s)
1901 NW 7th St, Miami FL 33125
1351 SW 16 ST, Miami FL 33145 placeholder 1351 SW 16 ST, Miami FL 33145
-$350K (2025/11/12)
Active With Contract
House
$3,500,000
5 bds 4 ba 4,370 sqft
1351 SW 16 ST, Miami FL 33145
251 E Shore Dr E, Miami FL 33133 placeholder 251 E Shore Dr E, Miami FL 33133
-$251K (2025/11/14)
Active With Contract
House
$3,999,000
4 bds 3 ba 3,856 sqft
251 E Shore Dr E, Miami FL 33133

The multiple listing information is provided by the Miami Association of REALTORS® from a copyrighted compilation of listings. The compilation of listings and each individual listing are ©2026-present Miami Association of REALTORS®. All Rights Reserved. The information provided is for consumers' personal, noncommercial use and may not be used for any purpose other than to identify prospective properties consumers may be interested in purchasing. All properties are subject to prior sale or withdrawal. All information provided is deemed reliable but is not guaranteed accurate, and should be independently verified. Listing courtesy of: Compass Florida, LLC