Contact
Tell us about your needs

2300 BEACH TRAIL UNIT 5

Condo/Co-op Active With Contract
$1,699,900

BTC: 25.07227139

ETH: 844.04170804

97 days
Waterfront
3 bds
3 ba
2,320 sqft
Est. Estimated sales range: $0 - $0
$0

Overview

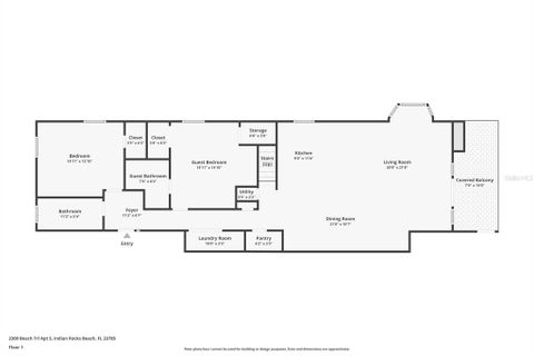
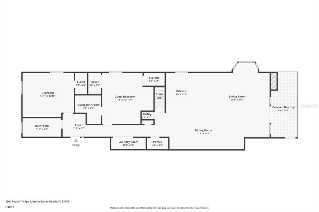
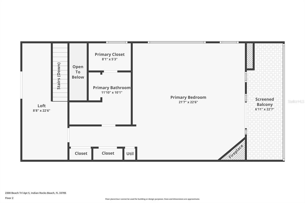
Under contract-accepting backup offers. .. Updated Direct Gulf-front two-story Penthouse Condominium with Private 27' x 21' Roof Top/ Patio/ Sundeck with Gulf Views.. Private boutique six-unit complex. One-of-a-kind beautifully updated three-bedroom/ three-bath two-story penthouse condominium with 2,320 square feet of pure joy. Owners have updated with great care making every room its own sanctuary. Kitchen, floors, baths all updated and ready for immediate occupancy. One of only a few IRB – Gulf-front condominiums with a private rooftop patio. First floor enjoys a direct gulf-front great room with over 600 square feet with kitchen - Dining area and Living room all fronted by a 19 X 7.5 Gulf-Front Balcony. Both floors are complete with side Bay Windows adding additional long-range water views. First floor of penthouse also has two spacious guest bedrooms - one is En-suite with updated bath, spa tub and another next to hallway with updated Full Bath. Brazilian-engineered hardwood floors flow through the whole household beautifully complementing this beach home. The owner's primary suite takes up 75% of the second floor with a 25-by-21-foot bedroom fronted by a gulf-front 21-by-7-foot balcony plus bay windows with sweeping long-range water views. Updated 10 X 11.10 Main Bath with walk-in shower with built-in bench plus 9-foot vanity with dual Decolav Seagrass Glass Vessel Basins – one walk-in closet and three smaller 5' X 28" closets in main hallway. The entry loft stairs to access the top floor open to a finished 22.6 X 8.8 Parlor Room with seating and a 5' X 3' Wet Bar with sink, Wine Refrigerator and overhead Cabinets where you access owner's suite on one side and your Private Rooftop Patio/ Sundeck with wonderful street and water views on the other side. Just a unique sunning and entertaining area you rarely find along our waterfront. Welcome to Indian Rocks Beach. A small close-knit waterfront community with plenty of restaurants, cafes and nightlife all within a short distance. Pets OK. Two-week minimum rental makes this an ideal full-time residence or part-time beach getaway for the family with good beach rental income potential. Immediate showings available. Enjoy the tour - floorplans and photos. No water intrusion ever in entire complex".. Immediate Showings Available.

Location

Facts and features

Type:
Residential
Parking:
Assigned / Guest
Year Built:
1983
Lot:
0.23 Acres
Heating:
Central / Electric
Price/sqft:
$733
Cooling:
Central Air
HOA:
No Data
All facts and features
  • Flooring

    • Tile

    • Hardwood

    Heating

    • Central

    • Electric

    Cooling

    • Central Air

    Appliances

    • Dishwasher

    • Disposal

    • Dryer

    • Exhaust Fan

    • Microwave

    • Range

    • Refrigerator

    • Washer

    Other interior features

    • Built-in Features

    • Ceiling Fan(s)

    • Eating Space In Kitchen

    • Open Floorplan

    • PrimaryBedroom Upstairs

    • Skylight(s)

    • Solid Surface Counters

    • Solid Wood Cabinets

    • Split Bedroom

    • Wet Bar

    Bedrooms and bathrooms

    • Bedrooms: 3

    • Full bathrooms: 3

  • Parking

    • Assigned

    • Guest

    Property

    • Levels: Two

    • Exterior Features: Balcony / Hurricane Shutters / Private Mailbox / Sliding Doors

    Lot

    • Lot: 0.23 Acres

    Other Property Information

    • Parcel Number: 013014059830000050

  • Type and style

    • Property Type: Residential

    • Property Sub Type: Condominium

  • Utility

    • Cable Connected

    • Electricity Connected

    • Sewer Connected

    • Water Connected

  • Other financial information

    • Annual tax amount: $17,901

  • Source details

    • MLS ID: TB8419883

    Other facts

    • Construction Materials: Block / Stucco

    • Foundation Details: Slab

    • Fireplace Features: Master Bedroom / Stone

    • Laundry Features: Electric Dryer Hookup / Inside / Laundry Closet / Washer Hookup

    • Patio And Porch Features: Deck / Other

    • Window Features: Blinds

    • Direction Faces: East

    • Waterfront: Yes

    • Fireplace: Yes

    • Water Body Name: GULF OF AMERICA

    • Living Area: 2320

    • Water Source: Public

    • Lot Size Dimensions: 150 x 63

    • Subdivision Name: BEACH TRAIL VILLAS A CONDO

Similar Homes

14447 MARK DRIVE placeholder 14447 MARK DRIVE
14 days
Active With Contract
House
$1,625,000
4 bds 5 ba 5,100 sqft
14447 MARK DRIVE
101 PONCE DE LEON BOULEVARD placeholder 101 PONCE DE LEON BOULEVARD
15 days
Active With Contract
House
$2,100,000
4 bds 3 ba 3,634 sqft
101 PONCE DE LEON BOULEVARD
1203 BAY SHORE BOULEVARD placeholder 1203 BAY SHORE BOULEVARD
39 days
Active With Contract
House
$1,399,900
5 bds 5 ba 3,002 sqft
1203 BAY SHORE BOULEVARD
1648 SAND KEY ESTATES  COURT placeholder 1648 SAND KEY ESTATES  COURT
55 days
Active With Contract
House
$1,410,000
3 bds 3 ba 2,114 sqft
1648 SAND KEY ESTATES COURT
1520 GULF BOULEVARD UNIT 602 placeholder 1520 GULF BOULEVARD UNIT 602
-$50K (2025/12/03)
Active With Contract
Condo/Co-op
$1,850,000
3 bds 2 ba 1,920 sqft
1520 GULF BOULEVARD UNIT 602
194 HAVEN BEACH DRIVE S placeholder 194 HAVEN BEACH DRIVE S
-$39K (2025/10/01)
Active With Contract
Townhouse
$1,250,000
4 bds 3 ba 1,935 sqft
194 HAVEN BEACH DRIVE S
3691 CENTER CIRCLE placeholder 3691 CENTER CIRCLE
105 days
Active With Contract
House
$1,350,000
4 bds 3 ba 2,378 sqft
3691 CENTER CIRCLE
12541 ULMERTON ROAD placeholder 12541 ULMERTON ROAD
-$425K (2025/08/27)
Active With Contract
Commercial
$1,425,000
0 room(s) 12,005 sqft
12541 ULMERTON ROAD

The multiple listing information is provided by the Stellar MLS from a copyrighted compilation of listings. The compilation of listings and each individual listing are ©2026-present Stellar MLS. All Rights Reserved. The information provided is for consumers' personal, noncommercial use and may not be used for any purpose other than to identify prospective properties consumers may be interested in purchasing. All properties are subject to prior sale or withdrawal. All information provided is deemed reliable but is not guaranteed accurate, and should be independently verified. Listing courtesy of: PREMIER SOTHEBY'S INTL REALTY