Contact
Tell us about your needs

2678 Tigertail Ave # 1501, Miami FL 33133

Condo/Co-op For Rent
$22,000

BTC: 0.25477707

ETH: 7.51879699

/mo
49 days
3 bds
3 ba
1,711 sqft
Est. Estimated sales range: $0 - $0
$0

Overview

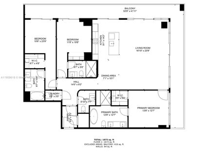
Experience luxury living at Mr. C Tigertail Residences in the heart of Coconut Grove, Miami’s most charming and walkable neighborhood. This elegant 3 bed, 3.5 bath corner unit offers 1,811 SF of interiors and a 438 SF wraparound balcony with panoramic city and Grove views. Features include 10 ft ceilings, floor-to-ceiling windows, porcelain floors, solid wood doors, and a custom Italkraft kitchen with Italian cabinetry, Wolf & Sub-Zero appliances, and quartz countertops. Enjoy resort-style amenities: rooftop and lap pools with cabanas, towel service, fitness center with yoga and Pilates, and valet. Steps from parks, cafes, shops, and the bay. Available for immediate occupancy.

Location

Facts and features

Type:
Residential Lease
Parking:
Valet
Year Built:
2024
Lot:
No Data
Heating:
Central / Electric
Price/sqft:
$13
Cooling:
Central Air / Electric
HOA:
No Data
All facts and features
  • Flooring

    • Other

    Heating

    • Central

    • Electric

    Cooling

    • Central Air

    • Electric

    Appliances

    • Dishwasher

    • Disposal

    • Dryer

    • Microwave

    • Electric Range

    • Refrigerator

    • Self Cleaning Oven

    • Wall Oven

    • Washer

    Other interior features

    • Closet Cabinetry

    • Cooking Island

    • Split Bedroom

    Bedrooms and bathrooms

    • Bedrooms: 3

    • Bathrooms: 1

    • Full bathrooms: 3

  • Parking

    • Valet

    Other Property Information

    • Parcel Number: 01-41-22-048-0130

    • Zoning: 6110

  • Type and style

    • Property Type: Residential Lease

    • Property Sub Type: Condominium

  • Source details

    • MLS ID: A11909618

    Other facts

    • Construction Materials: CBS Construction

    • Patio And Porch Features: Wrap Around

    • Pool Features: Community

    • Window Features: Clear Impact Glass

    • Direction Faces: Southwest

    • Architectural Style: High Rise

    • Living Area: 1711

    • Water Source: Municipal Water

Similar Homes

3020 Brickell Ave # 3020, Miami FL 33129 placeholder 3020 Brickell Ave # 3020, Miami FL 33129
1 days
For Rent
House
$25,000 /mo
6 bds 5 ba 4,361 sqft
3020 Brickell Ave # 3020, Miami FL 33129
5211 Granada Blvd, Coral Gables FL 33146 placeholder 5211 Granada Blvd, Coral Gables FL 33146
2 days
For Rent
House
$18,000 /mo
4 bds 3 ba 2,415 sqft
5211 Granada Blvd, Coral Gables FL 33146
145 S Prospect Dr, Coral Gables FL 33133 placeholder 145 S Prospect Dr, Coral Gables FL 33133
14 days
For Rent
House
$17,750 /mo
4 bds 3 ba 2,848 sqft
145 S Prospect Dr, Coral Gables FL 33133
301 Isla Dorada Blvd, Coral Gables FL 33143 placeholder 301 Isla Dorada Blvd, Coral Gables FL 33143
17 days
For Rent
House
$17,000 /mo
4 bds 3 ba 3,608 sqft
301 Isla Dorada Blvd, Coral Gables FL 33143
100 S Prospect Dr, Coral Gables FL 33133 placeholder 100 S Prospect Dr, Coral Gables FL 33133
-$1K (2025/12/17)
For Rent
House
$18,750 /mo
4 bds 4 ba 3,488 sqft
100 S Prospect Dr, Coral Gables FL 33133
79 W Shore Dr W, Miami FL 33133 placeholder 79 W Shore Dr W, Miami FL 33133
26 days
For Rent
House
$20,450 /mo
4 bds 4 ba 3,485 sqft
79 W Shore Dr W, Miami FL 33133
3861 Kumquat Ave, Miami FL 33133 placeholder 3861 Kumquat Ave, Miami FL 33133
31 days
For Rent
House
$27,500 /mo
5 bds 5 ba 4,670 sqft
3861 Kumquat Ave, Miami FL 33133
34 SW 26th Rd, Miami FL 33129 placeholder 34 SW 26th Rd, Miami FL 33129
-$1K (2025/12/11)
For Rent
House
$15,500 /mo
3 bds 2 ba 3,031 sqft
34 SW 26th Rd, Miami FL 33129

The multiple listing information is provided by the Miami Association of REALTORS® from a copyrighted compilation of listings. The compilation of listings and each individual listing are ©2025-present Miami Association of REALTORS®. All Rights Reserved. The information provided is for consumers' personal, noncommercial use and may not be used for any purpose other than to identify prospective properties consumers may be interested in purchasing. All properties are subject to prior sale or withdrawal. All information provided is deemed reliable but is not guaranteed accurate, and should be independently verified. Listing courtesy of: One Sotheby's International Realty