BTC: 36.66666667
ETH: 550.00000000
Flooring
• Ceramic Floor
Heating
• Central
• Electric
Cooling
• Central Air
• Electric
Appliances
• Dishwasher
• Disposal
• Dryer
• Electric Water Heater
• Ice Maker
• Microwave
• Electric Range
• Refrigerator
• Wall Oven
• Washer
Other interior features
• Interior Hall
• Built-in Features
• Split Bedroom
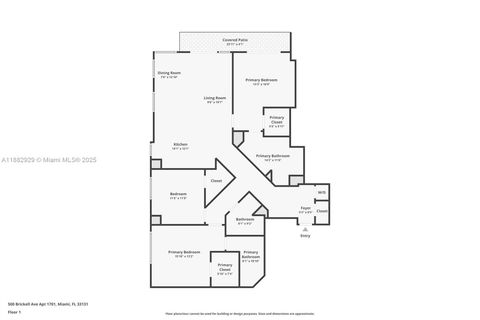
Bedrooms and bathrooms
• Bedrooms: 3
• Full bathrooms: 3
Parking
• 1 Space
• Covered
• Valet
Property
• Exterior Features: Open Balcony
Other Property Information
• Parcel Number: 01-41-38-144-0510
Type and style
• Property Type: Residential
• Property Sub Type: Condominium
Other financial information
• HOA: $1,105
• HOA Frequency: Monthly
• Annual tax amount: $13,668
Source details
• MLS ID: A11882929
Other facts
• Construction Materials: Concrete Block Construction / CBS Construction
• Patio And Porch Features: Open Balcony
• Architectural Style: Corner Unit / High Rise
• Garage Spaces: 1
• Garage: Yes
• Living Area: 1494
• Subdivision Name: 500 BRICKELL EAST CONDO
The multiple listing information is provided by the Miami Association of REALTORS® from a copyrighted compilation of listings. The compilation of listings and each individual listing are ©2025-present Miami Association of REALTORS®. All Rights Reserved. The information provided is for consumers' personal, noncommercial use and may not be used for any purpose other than to identify prospective properties consumers may be interested in purchasing. All properties are subject to prior sale or withdrawal. All information provided is deemed reliable but is not guaranteed accurate, and should be independently verified. Listing courtesy of: Miami Global Realty Inc