Contact
Tell us about your needs

5025 Collins Ave # 1, Miami Beach FL 33140

Penthouse For Rent
$39,950

BTC: 0.46265200

ETH: 13.65345181

/mo
36 days
Waterfront
4 bds
5 ba
4,370 sqft
Est. Estimated sales range: $0 - $0
$0

Overview

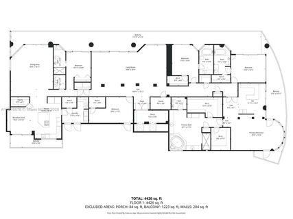
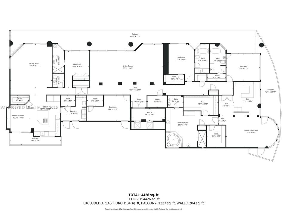
This exceptional penthouse offers remarkable space and ocean, city, and intracoastal views that fill every room. Adding to its scale, the property includes an oceanfront 1-bedroom cabana and 2 private guest quarters with ensuite baths. A private foyer, accessed by two elevators, opens into PH1, featuring 4 beds, 4.5 baths, a den, and an additional office off the primary suite. The expansive primary bathroom includes his-and-hers walk-in closets and vanities, a separate shower, and a soaking tub facing Downtown Miami. A wraparound balcony spans the entire residence. The spacious kitchen offers a breakfast area and its own balcony. Located at Capobella, an exclusive boutique oceanfront building on Millionaire’s Row, the home also includes a dedicated laundry room and 5 parking spaces.

Location

Facts and features

Type:
Residential Lease
Parking:
Assigned / Valet
Year Built:
1998
Lot:
No Data
Heating:
Central
Price/sqft:
$9
Cooling:
Central Air
HOA:
No Data
All facts and features
  • Flooring

    • Tile

    Heating

    • Central

    Cooling

    • Central Air

    Appliances

    • Dishwasher

    • Dryer

    • Microwave

    • Electric Range

    • Refrigerator

    • Washer

    Other interior features

    • Cooking Island

    • Pantry

    • Walk-In Closet(s)

    • Den/Library/Office

    Bedrooms and bathrooms

    • Bedrooms: 4

    • Bathrooms: 1

    • Full bathrooms: 5

  • Parking

    • Assigned

    • Valet

    Other Property Information

    • Parcel Number: 02-32-14-023-0830

  • Type and style

    • Property Type: Residential Lease

    • Property Sub Type: Condominium

  • Source details

    • MLS ID: A11916878

    Other facts

    • Construction Materials: CBS Construction

    • Patio And Porch Features: Wrap Around

    • Pool Features: In Ground

    • Waterfront: Yes

    • Garage Spaces: 5

    • Garage: Yes

    • Living Area: 4370

    • Subdivision Name: CAPOBELLA CONDO

Similar Homes

4701 N Meridian Ave # 512, Miami Beach FL 33140 placeholder 4701 N Meridian Ave # 512, Miami Beach FL 33140
1 days
For Rent
Condo/Co-op
$49,500 /mo
4 bds 4 ba 4,204 sqft
4701 N Meridian Ave # 512, Miami Beach FL 33140
55 La Gorce Cir, Miami Beach FL 33141 placeholder 55 La Gorce Cir, Miami Beach FL 33141
14 days
For Rent
House
$50,000 /mo
5 bds 5 ba 5,717 sqft
55 La Gorce Cir, Miami Beach FL 33141
335 W 46th St, Miami Beach FL 33140 placeholder 335 W 46th St, Miami Beach FL 33140
16 days
For Rent
House
$37,770 /mo
4 bds 4 ba 3,053 sqft
335 W 46th St, Miami Beach FL 33140
101 20th St # 1706, Miami Beach FL 33139 placeholder 101 20th St # 1706, Miami Beach FL 33139
24 days
For Rent
Condo/Co-op
$30,000 /mo
2 bds 2 ba 1,316 sqft
101 20th St # 1706, Miami Beach FL 33139
1500 Ocean Dr # 1201, Miami Beach FL 33139 placeholder 1500 Ocean Dr # 1201, Miami Beach FL 33139
30 days
For Rent
Condo/Co-op
$30,000 /mo
3 bds 3 ba 2,320 sqft
1500 Ocean Dr # 1201, Miami Beach FL 33139
8055 Noremac Ave, Miami Beach FL 33141 placeholder 8055 Noremac Ave, Miami Beach FL 33141
34 days
For Rent
House
$40,000 /mo
3 bds 3 ba 2,922 sqft
8055 Noremac Ave, Miami Beach FL 33141
1500 S Treasure Dr, North Bay Village FL 33141 placeholder 1500 S Treasure Dr, North Bay Village FL 33141
-$5K (2025/12/10)
For Rent
House
$31,000 /mo
4 bds 3 ba 4,232 sqft
1500 S Treasure Dr, North Bay Village FL 33141
6000 Indian Creek Dr # 2501, Miami Beach FL 33140 placeholder 6000 Indian Creek Dr # 2501, Miami Beach FL 33140
37 days
For Rent
Penthouse
$28,000 /mo
3 bds 3 ba 2,600 sqft
6000 Indian Creek Dr # 2501, Miami Beach FL 33140

The multiple listing information is provided by the Miami Association of REALTORS® from a copyrighted compilation of listings. The compilation of listings and each individual listing are ©2025-present Miami Association of REALTORS®. All Rights Reserved. The information provided is for consumers' personal, noncommercial use and may not be used for any purpose other than to identify prospective properties consumers may be interested in purchasing. All properties are subject to prior sale or withdrawal. All information provided is deemed reliable but is not guaranteed accurate, and should be independently verified. Listing courtesy of: Compass Florida, LLC