Contact
Tell us about your needs

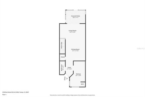
5100 BURCHETTE ROAD UNIT 3206

Condo/Co-op For Rent
$1,745

BTC: 0.02020845

ETH: 0.59637731

/mo
-$155 (2025/11/19)
64 days
2 bds
1 ba
1,121 sqft
Est. Estimated sales range: $0 - $0
$0

Overview

Beautiful Updated 2/1.5 Condo! Discover the ideal blend of comfort and convenience in this well-maintained 2-bedroom, 1.5-bath townhome located in the highly desirable Tampa Palms Golf and Country Club community. Nestled within a gated neighborhood, this home offers a tranquil and secure lifestyle, complete with outstanding amenities such as two pools, tennis and pickleball courts, a playground, a basketball court, a fitness center, and a clubhouse. The townhome features a practical layout, showcasing two generous bedrooms, a modern kitchen, and the convenience of an in-unit washer and dryer. Enjoy hassle-free parking with a dedicated space just steps from your front door, along with plenty of guest parking for visitors. For added convenience, water, sewer, and trash services are included in the rent. Perfectly situated in the heart of Tampa Palms Golf and Country Club, this property is just minutes away from USF, Moffitt, and a variety of other attractions. If you’re seeking a comfortable home in a prime location with access to excellent amenities, this townhome is a must-see. Schedule your showing today! If you decide to apply for one of our properties: Screening includes credit/background check, income verification of 2.5 to 3 times the monthly rent and rental history verification. We encourage applicants with credit scores above 600 to apply, as meeting this criteria will help streamline the application process. APPLICANT CHARGES: Application Fee: $75 each adult, 18 years of age and older (non-refundable). $25 each pet application fee for pet verification (non-refundable). Current vaccination records will be required. ESA and service animals are FREE with verified documentation. Lease Initiation Admin Fee: $150.00 after approval and upon signing. First month's rent and equal security deposit apply. Pet Fee if applicable (non-refundable) $350 each pet. All Rent Solutions residents are enrolled in the Resident Benefits Package (RBP) for $49.95/month which includes liability insurance, credit building to help boost the resident’s credit score with timely rent payments, HVAC air filter delivery (for applicable properties), our best-in-class resident rewards program, and much more! More details upon application.

Location

Facts and features

Type:
Residential Lease
Parking:
Covered
Year Built:
1988
Lot:
0.01 Acres
Heating:
Central / Electric
Price/sqft:
$2
Cooling:
Central Air
HOA:
No Data
All facts and features
  • Heating

    • Central

    • Electric

    Cooling

    • Central Air

    Appliances

    • Dishwasher

    • Disposal

    • Dryer

    • Ice Maker

    • Microwave

    • Range

    • Refrigerator

    • Washer

    Other interior features

    • Ceiling Fan(s)

    • Eating Space In Kitchen

    • Other

    • Walk-In Closet(s)

    • Window Treatments

    Bedrooms and bathrooms

    • Bedrooms: 2

    • Bathrooms: 1

    • Full bathrooms: 1

  • Parking

    • Covered

    Property

    • Levels: Two

    Lot

    • Lot: 0.01 Acres

    Other Property Information

    • Parcel Number: A3427191DX00003203206.0

  • Type and style

    • Property Type: Residential Lease

    • Property Sub Type: Condominium

  • Source details

    • MLS ID: TB8440683

    Other facts

    • Laundry Features: Laundry Closet

    • Patio And Porch Features: Patio / Screened

    • Window Features: Blinds

    • Living Area: 1121

    • Subdivision Name: FAIRCREST III A CONDO

Similar Homes

12102 N 60TH STREET UNIT A placeholder 12102 N 60TH STREET UNIT A
1 days
For Rent
$1,695 /mo
3 bds 2 ba 1,200 sqft
12102 N 60TH STREET UNIT A
17112 CARRINGTON PARK DRIVE UNIT 933 placeholder 17112 CARRINGTON PARK DRIVE UNIT 933
3 days
For Rent
Condo/Co-op
$1,350 /mo
1 bds 1 ba 892 sqft
17112 CARRINGTON PARK DRIVE UNIT 933
14313 HANGING MOSS CIRCLE UNIT 201 placeholder 14313 HANGING MOSS CIRCLE UNIT 201
3 days
For Rent
Condo/Co-op
$1,500 /mo
2 bds 2 ba 912 sqft
14313 HANGING MOSS CIRCLE UNIT 201
16413 ENCLAVE VILLAGE DRIVE UNIT 5-106 placeholder 16413 ENCLAVE VILLAGE DRIVE UNIT 5-106
4 days
For Rent
Condo/Co-op
$1,575 /mo
2 bds 2 ba 1,270 sqft
16413 ENCLAVE VILLAGE DRIVE UNIT 5-106
13720 LAZY OAK DRIVE UNIT 54 placeholder 13720 LAZY OAK DRIVE UNIT 54
8 days
For Rent
House
$1,900 /mo
2 bds 2 ba 1,375 sqft
13720 LAZY OAK DRIVE UNIT 54
13113 SANCTUARY COVE DRIVE UNIT 103 placeholder 13113 SANCTUARY COVE DRIVE UNIT 103
8 days
For Rent
Condo/Co-op
$2,050 /mo
2 bds 2 ba 1,051 sqft
13113 SANCTUARY COVE DRIVE UNIT 103
14604 PINE GLEN CIRCLE placeholder 14604 PINE GLEN CIRCLE
10 days
For Rent
Townhouse
$1,745 /mo
2 bds 1 ba 1,178 sqft
14604 PINE GLEN CIRCLE
17106 CARRINGTON PARK DRIVE UNIT 627 placeholder 17106 CARRINGTON PARK DRIVE UNIT 627
10 days
For Rent
Condo/Co-op
$1,650 /mo
2 bds 2 ba 1,144 sqft
17106 CARRINGTON PARK DRIVE UNIT 627

The multiple listing information is provided by the Stellar MLS from a copyrighted compilation of listings. The compilation of listings and each individual listing are ©2025-present Stellar MLS. All Rights Reserved. The information provided is for consumers' personal, noncommercial use and may not be used for any purpose other than to identify prospective properties consumers may be interested in purchasing. All properties are subject to prior sale or withdrawal. All information provided is deemed reliable but is not guaranteed accurate, and should be independently verified. Listing courtesy of: RENT SOLUTIONS