Contact
Tell us about your needs

For Sale
$44,775

BTC: 0.64147491

ETH: 21.63043478

-$9K (2025/11/21)
168 days
0 room(s)
Est. Estimated sales range: $0 - $0
$0

Overview

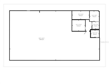
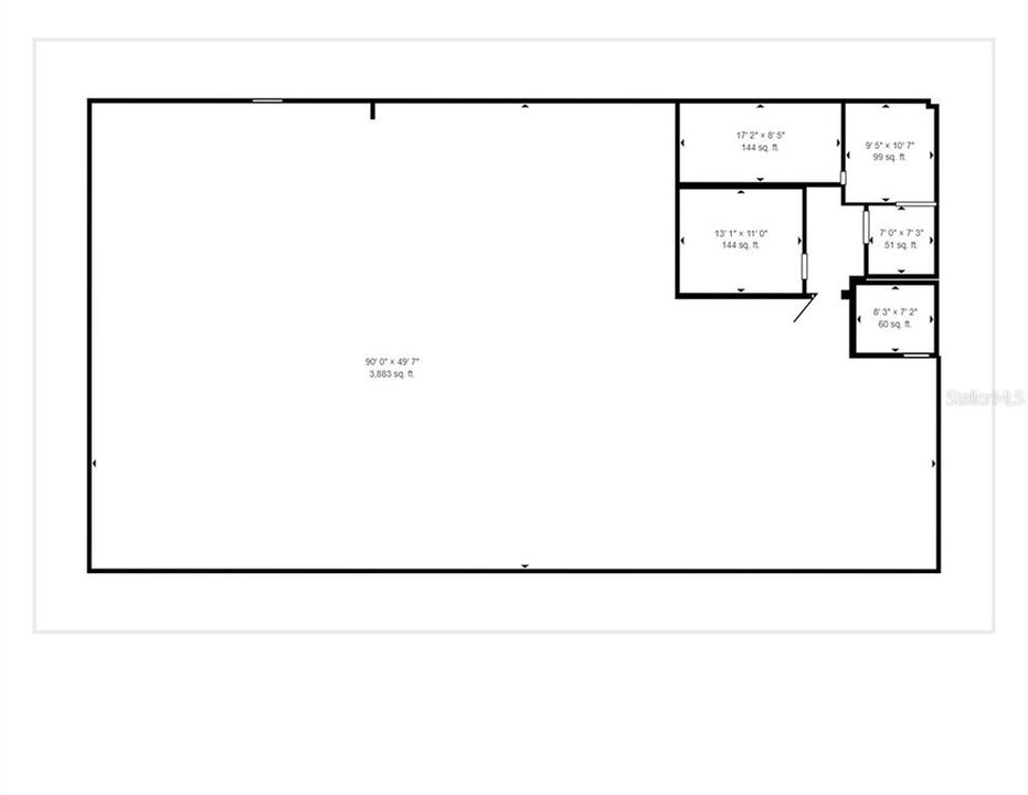
Elevate your business at 262 Springview Commerce Dr, DeBary, FL — a newly built industrial flex property in the heart of Springview Commerce Park. Designed for modern operations, this ±4,500 SF unit offers high ceilings, a clear-span layout, and a clean, professional finish throughout. The space features an oversized 12x14 roll-up door, dedicated loading area, and ample on-site parking to ensure seamless logistics and accessibility. Inside, you'll find a well-appointed office/showroom with private offices, a reception area, and two restrooms—all under tenant-controlled HVAC. Whether you’re in manufacturing, distribution, or warehousing, this prime location offers the ideal blend of functionality, visibility, and connectivity. Located just minutes from I-4, US-17/92, and SR-417, it positions your business for success in one of DeBary’s most active commercial corridors. Now available for lease — contact us today to schedule a private tour.

Location

Florida DEBARY 32713 For Sale

Facts and features

Type:
Commercial Lease
Parking:
No Data
Year Built:
2007
Lot:
5.03 Acres
Heating:
No Data
Price/sqft:
No Data
Cooling:
A/C - Office Only
HOA:
No Data
All facts and features
  • Cooling

    • A/C - Office Only

  • Lot

    • Lot: 5.03 Acres

    Other Property Information

    • Parcel Number: 90041600010262

  • Type and style

    • Property Type: Commercial Lease

    • Property Sub Type: Industrial

  • Other financial information

    • Annual tax amount: $92,758

  • Source details

    • MLS ID: O6328163

    Other facts

    • Construction Materials: Block / Metal Frame

    • Foundation Details: Slab

    • Lot Size Dimensions: 205 x 440

    • Subdivision Name: SPRINGVIEW INDUST PARK UNIT 02

Similar Homes

955 TOWN CENTER DRIVE UNIT 200 placeholder 955 TOWN CENTER DRIVE UNIT 200
7 days
For Sale
$52,800
0 room(s) 4,200 sqft
955 TOWN CENTER DRIVE UNIT 200
268 TOMS ROAD placeholder 268 TOMS ROAD
-$6K (2025/12/15)
For Sale
Lots/Land
$36,900
0 room(s)
268 TOMS ROAD
266 TOMS ROAD placeholder 266 TOMS ROAD
-$6K (2025/12/15)
For Sale
Lots/Land
$36,900
0 room(s)
266 TOMS ROAD
270 TOMS ROAD placeholder 270 TOMS ROAD
-$6K (2025/12/15)
For Sale
Lots/Land
$36,900
0 room(s)
270 TOMS ROAD
266 Toms, Debary, FL 32713 placeholder 266 Toms, Debary, FL 32713
-$6K (2025/12/15)
For Sale
Commercial
$36,900
0 room(s)
266 Toms, Debary, FL 32713
268 Toms, Debary, FL 32713 placeholder 268 Toms, Debary, FL 32713
-$6K (2025/12/15)
For Sale
Commercial
$36,900
0 room(s)
268 Toms, Debary, FL 32713
270 Toms, Debary, FL 32713 placeholder 270 Toms, Debary, FL 32713
-$6K (2025/12/15)
For Sale
Commercial
$36,900
0 room(s)
270 Toms, Debary, FL 32713
 placeholder
-$9K (2025/11/21)
For Sale
$44,775
0 room(s)

The multiple listing information is provided by the Stellar MLS from a copyrighted compilation of listings. The compilation of listings and each individual listing are ©2026-present Stellar MLS. All Rights Reserved. The information provided is for consumers' personal, noncommercial use and may not be used for any purpose other than to identify prospective properties consumers may be interested in purchasing. All properties are subject to prior sale or withdrawal. All information provided is deemed reliable but is not guaranteed accurate, and should be independently verified. Listing courtesy of: ALPHA EQUITY REALTY & MANAGEMENT INC