Contact
Tell us about your needs

8411-8419 DUFFIE DRIVE UNIT 202

Commercial For Sale
$720,000

BTC: 24.00000000

ETH: 360.00000000

123 days
0 room(s)
750 sqft
Est. Estimated sales range: $0 - $0
$0

Overview

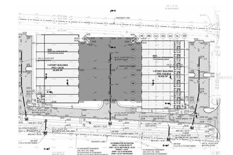
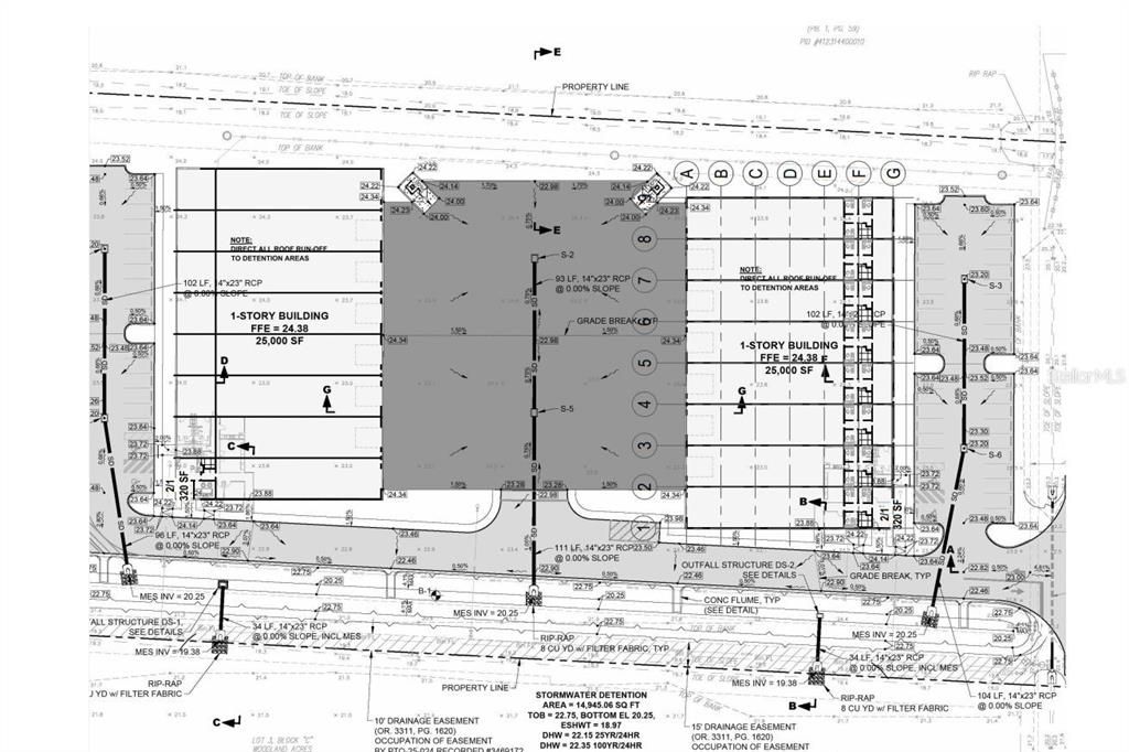
One or more photo(s) has been virtually staged. Pre-Construction. To be built. ECAP Zoned Flex Condos. 16 Units available across two - 25,000 Sq Ft. Buildings. Each unit will be 3,125 Sq Ft. Units may be bought individually or in bulk. Each unit will feature showroom space, 3 individual offices, and 1 ADA compliant bathroom. Warehouse space will include roll up door in rear, and 26+ feet ceiling heights. Property is conveniently located near the Punta Gorda airport 5 minute car drive to I75 Jones Loop Ramp. Enjoy the vibrant community of Punta Gorda featuring fine dinning, shopping & more Estimated completion date for the buildings is Quarter 4 of 2026. Condo fees are to be determined. For more information call. Information is deemed reliable but is not guaranteed.

Location

Facts and features

Type:
Commercial Sale
Parking:
Common / Over 30 Spaces
Year Built:
2026
Lot:
5.00 Acres
Heating:
Central
Price/sqft:
$960
Cooling:
A/C - Office Only
HOA:
No Data
All facts and features
  • Flooring

    • Concrete

    • Luxury Vinyl

    Heating

    • Central

    Cooling

    • A/C - Office Only

  • Parking

    • Common

    • Over 30 Spaces

    Lot

    • Lot: 5.00 Acres

    Other Property Information

    • Parcel Number: 412314400025

    • Zoning: ECAP

  • Type and style

    • Property Type: Commercial Sale

    • Property Sub Type: Industrial

  • Utility

    • BB/HS Internet Capable

    • Electricity Available

    • Public

    • Water Connected

  • Other financial information

    • Annual tax amount: $8,393

  • Source details

    • MLS ID: C7513217

    Other facts

    • Construction Materials: Metal Frame / Stone

    • Foundation Details: Slab

    • Living Area: 750

    • Subdivision Name: WOODLAND ACRES

Similar Homes

442 SCARLET SAGE placeholder 442 SCARLET SAGE
2 days
For Sale
House
$675,000
3 bds 3 ba 2,472 sqft
442 SCARLET SAGE
8158 ALFRED BOULEVARD placeholder 8158 ALFRED BOULEVARD
26 days
For Sale
House
$589,000
3 bds 2 ba 1,748 sqft
8158 ALFRED BOULEVARD
6640 TAYLOR ROAD UNIT B placeholder 6640 TAYLOR ROAD UNIT B
30 days
For Sale
Lots/Land
$699,000
0 room(s)
6640 TAYLOR ROAD UNIT B
7028 N PLUM TREE placeholder 7028 N PLUM TREE
37 days
For Sale
House
$545,000
4 bds 3 ba 2,365 sqft
7028 N PLUM TREE
6405 ALAN BOULEVARD placeholder 6405 ALAN BOULEVARD
-$7K (2025/11/29)
For Sale
House
$542,900
3 bds 2 ba 1,920 sqft
6405 ALAN BOULEVARD
7166 N PLUM TREE placeholder 7166 N PLUM TREE
94 days
For Sale
House
$699,900
4 bds 3 ba 2,616 sqft
7166 N PLUM TREE
8411-8419 DUFFIE DRIVE UNIT 207 placeholder 8411-8419 DUFFIE DRIVE UNIT 207
95 days
For Sale
Commercial
$720,000
0 room(s) 750 sqft
8411-8419 DUFFIE DRIVE UNIT 207
10043 WINDING RIVER ROAD placeholder 10043 WINDING RIVER ROAD
-$15K (2025/10/23)
For Sale
House
$510,000
4 bds 3 ba 3,327 sqft
10043 WINDING RIVER ROAD

The multiple listing information is provided by the Stellar MLS from a copyrighted compilation of listings. The compilation of listings and each individual listing are ©2025-present Stellar MLS. All Rights Reserved. The information provided is for consumers' personal, noncommercial use and may not be used for any purpose other than to identify prospective properties consumers may be interested in purchasing. All properties are subject to prior sale or withdrawal. All information provided is deemed reliable but is not guaranteed accurate, and should be independently verified. Listing courtesy of: PREMIERE PLUS REALTY COMPANY