Contact
Tell us about your needs

8911 N 12TH STREET

Commercial For Sale
$1,700,000

BTC: 17.51016027

ETH: 548.38709677

-$800K (2025/08/29)
355 days
0 room(s)
13,272 sqft
Est. Estimated sales range: $0 - $0
$0

Overview

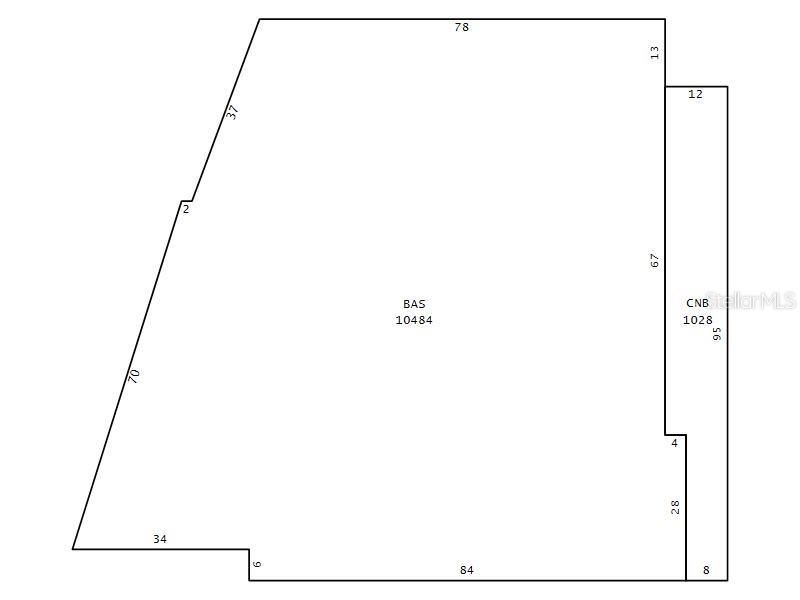
Florida Commercial Group presents industrial property for sale! Here is a perfect site for warehouse, manufacturing, light industrial or distribution businesses. Building 1 is an 11,521 +/- SF concrete building with a metal roof comprised of storage space and room for semi and large truck deliveries. There is also a drive-in-loading door that fronts 12th Street. The building’s clear height is 20’. Building 2 is 1,760+/- SF, is concrete block, with 20’ ceilings, two drive in bay doors and concrete floors. The property is fully fenced as well. The space of these buildings allows for plenty of room for vertical storage of inventory or high-volume material/ product deliveries and manufacturing/ assembling. The buildings sit on just under an acre (.80 acres) and offer direct visibility from Busch Blvd. This is a great opportunity for an investor seeking an opportunity to own/ use an industrial piece of property. There is also plenty of onsite parking. Call today for a showing.

Location

Facts and features

Type:
Commercial Sale
Parking:
Common / Secured
Year Built:
1950
Lot:
0.80 Acres
Heating:
No Data
Price/sqft:
$128
Cooling:
None
HOA:
No Data
All facts and features
  • Flooring

    • Concrete

    Cooling

    • None

  • Parking

    • Common

    • Secured

    Lot

    • Lot: 0.80 Acres

    Other Property Information

    • Parcel Number: A19281945A00000500001.0

    • Zoning: IG

  • Type and style

    • Property Type: Commercial Sale

    • Property Sub Type: Industrial

  • Other financial information

    • Annual tax amount: $13,462

  • Source details

    • MLS ID: TB8340388

    Other facts

    • Construction Materials: Block

    • Foundation Details: Slab

    • Other Structures: Containers

    • Living Area: 13272

    • Subdivision Name: ORANGE TERRACE

Similar Homes

6907 N BOULEVARD placeholder 6907 N BOULEVARD
23 days
For Sale
House
$1,750,000
4 bds 3 ba 3,900 sqft
6907 N BOULEVARD
8202 N ARMENIA AVENUE UNIT B placeholder 8202 N ARMENIA AVENUE UNIT B
42 days
For Sale
Commercial
$1,550,000
0 room(s) 7,342 sqft
8202 N ARMENIA AVENUE UNIT B
3601 E BUSCH BOULEVARD placeholder 3601 E BUSCH BOULEVARD
42 days
For Sale
Commercial
$1,500,000
0 room(s) 5,242 sqft
3601 E BUSCH BOULEVARD
314 W NORTH STREET placeholder 314 W NORTH STREET
74 days
For Sale
House
$1,800,000
5 bds 4 ba 3,475 sqft
314 W NORTH STREET
3203 E YUKON STREET placeholder 3203 E YUKON STREET
-$51K (2025/10/17)
For Sale
House
$1,699,000
8 bds 7 ba 1,505 sqft
3203 E YUKON STREET
6304 N FLORIDA AVENUE placeholder 6304 N FLORIDA AVENUE
172 days
For Sale
Commercial
$2,200,000
0 room(s)
6304 N FLORIDA AVENUE
8107 N RIVER SHORE DRIVE placeholder 8107 N RIVER SHORE DRIVE
-$150K (2025/11/05)
For Sale
House
$1,550,000
3 bds 2 ba 2,405 sqft
8107 N RIVER SHORE DRIVE
11213 N NEBRASKA AVENUE UNIT C406 placeholder 11213 N NEBRASKA AVENUE UNIT C406
217 days
For Sale
Commercial
$2,150,000
0 room(s) 11,848 sqft
11213 N NEBRASKA AVENUE UNIT C406

The multiple listing information is provided by the Stellar MLS from a copyrighted compilation of listings. The compilation of listings and each individual listing are ©2026-present Stellar MLS. All Rights Reserved. The information provided is for consumers' personal, noncommercial use and may not be used for any purpose other than to identify prospective properties consumers may be interested in purchasing. All properties are subject to prior sale or withdrawal. All information provided is deemed reliable but is not guaranteed accurate, and should be independently verified. Listing courtesy of: FLORIDA COMMERCIAL GROUP