Contact
Tell us about your needs

118 SAINT PIERRES WAY

For Sale
$169,000

BTC: 2.65723270

ETH: 88.94736842

+$4K (2026/01/06)
27 days
3 bds
2 ba
1,452 sqft
Est. Estimated sales range: $0 - $0
$0

Overview

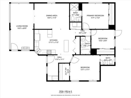
****VALUE PRICED**** Welcome to Caribbean Isles Residential Cooperative, a 55+, Waterfront, Resident Owned Community that stands out from many. This 3 Bed, 2 ½ Bath home offers an array of features for comfortable living. Some of the features include vaulted ceilings throughout, creating an airy and spacious atmosphere. The kitchen, with it's eat-in area, has plenty of room. The living room, versatile in function, can be utilized as a living room or an expansive dining area. The Florida Room is surrounded by windows for maximum natural light. The Primary Bedroom features an ensuite full bathroom, while the second primary bedroom includes a convenient ensuite ½ bath, making it an ideal space for guests, separate from the main living areas. A full bath in the hallway adds to the convenience. Recent upgrades include replacement of all floors, a AMS weather-lok roof-over system that has a Limited lifetime warranty. Beyond the house, explore the community's outstanding Resort Style Amenities. Outdoor enthusiasts will appreciate the kayak and boat launch facilities, with direct access to Tampa Bay through the canal system. Engage in friendly competition with bocce ball, shuffleboard courts, and horseshoes. The heated community pool offers year-round enjoyment. Indoors, the clubhouse beckons with a craft room and a spacious game room equipped with pool tables, card tables, an indoor bar, shuffleboard, and darts—perfect for fostering creativity and socializing. The community hosts a variety of activities throughout the year, from themed dinners to dances, ensuring there's always something exciting happening to suit your preferences. Centrally located between Tampa and Sarasota/Bradenton, this community offers easy access to an abundance of nearby activities. Beaches and amusement parks are just a day trip away. We extend a warm invitation for you to visit and discover why so many have chosen to call Caribbean Isles home.

Location

Facts and features

Type:
Residential
Parking:
No Data
Year Built:
1990
Lot:
0.13 Acres
Heating:
Central / Electric
Price/sqft:
$116
Cooling:
Central Air
HOA:
$242
All facts and features
  • Flooring

    • Tile

    • Hardwood

    Heating

    • Central

    • Electric

    Cooling

    • Central Air

    Appliances

    • Dishwasher

    • Dryer

    • Electric Water Heater

    • Microwave

    • Range

    • Refrigerator

    • Washer

    Other interior features

    • Eating Space In Kitchen

    • High Ceilings

    • L Dining

    • Primary Bedroom Main Floor

    • Thermostat

    • Vaulted Ceiling(s)

    • Walk-In Closet(s)

    Bedrooms and bathrooms

    • Bedrooms: 3

    • Bathrooms: 1

    • Full bathrooms: 2

  • Property

    • Levels: One

    • Exterior Features: Awning(s) / Private Mailbox / Rain Gutters

    Lot

    • Lot: 0.13 Acres

    Other Property Information

    • Parcel Number: U22311960600000000334.0

    • Zoning: PD

  • Type and style

    • Property Type: Residential

    • Property Sub Type: Manufactured Home

  • Utility

    • Cable Available

    • Electricity Connected

    • Fire Hydrant

    • Phone Available

    • Public

    • Sewer Connected

    • Street Lights

    • Underground Utilities

    • Water Connected

  • Other financial information

    • HOA: $242

    • HOA Frequency: Monthly

    • Annual tax amount: $726

  • Source details

    • MLS ID: TB8454942

    Other facts

    • Construction Materials: Metal Siding

    • Foundation Details: Crawlspace

    • Laundry Features: Common Area / Electric Dryer Hookup / Inside / Washer Hookup

    • Patio And Porch Features: Rear Porch

    • Direction Faces: East

    • Other Structures: Shed(s)

    • Architectural Style: Traditional

    • Living Area: 1452

    • Water Source: Public

    • Subdivision Name: CARIBBEAN ISLES RESIDENTIAL CO

Similar Homes

110 E SAINT LUCIA LOOP placeholder 110 E SAINT LUCIA LOOP
New
For Sale
$159,000
2 bds 2 ba 1,012 sqft
110 E SAINT LUCIA LOOP
328 S PORT ROYAL LANE placeholder 328 S PORT ROYAL LANE
6 days
For Sale
$169,900
2 bds 2 ba 1,248 sqft
328 S PORT ROYAL LANE
134 W SAINT ANNES CIRCLE placeholder 134 W SAINT ANNES CIRCLE
16 days
For Sale
House
$175,000
2 bds 2 ba 732 sqft
134 W SAINT ANNES CIRCLE
112 SAINT PIERRES WAY placeholder 112 SAINT PIERRES WAY
30 days
For Sale
$174,900
2 bds 2 ba 1,056 sqft
112 SAINT PIERRES WAY
6225 FLAMINGO DRIVE placeholder 6225 FLAMINGO DRIVE
35 days
For Sale
Lots/Land
$154,900
0 room(s)
6225 FLAMINGO DRIVE
123 SAINT KITTS WAY placeholder 123 SAINT KITTS WAY
54 days
For Sale
$139,900
2 bds 2 ba 1,100 sqft
123 SAINT KITTS WAY
1028 APOLLO BEACH BOULEVARD UNIT 103 placeholder 1028 APOLLO BEACH BOULEVARD UNIT 103
-$73K (2025/12/18)
For Sale
Condo/Co-op
$177,000
2 bds 2 ba 1,084 sqft
1028 APOLLO BEACH BOULEVARD UNIT 103
1028 APOLLO BEACH BOULEVARD UNIT 2 placeholder 1028 APOLLO BEACH BOULEVARD UNIT 2
-$35K (2026/01/02)
For Sale
Condo/Co-op
$195,000
2 bds 2 ba 1,296 sqft
1028 APOLLO BEACH BOULEVARD UNIT 2

The multiple listing information is provided by the Stellar MLS from a copyrighted compilation of listings. The compilation of listings and each individual listing are ©2026-present Stellar MLS. All Rights Reserved. The information provided is for consumers' personal, noncommercial use and may not be used for any purpose other than to identify prospective properties consumers may be interested in purchasing. All properties are subject to prior sale or withdrawal. All information provided is deemed reliable but is not guaranteed accurate, and should be independently verified. Listing courtesy of: CARIBBEAN ISLE PROPERTY SALES INC.