Contact
Tell us about your needs

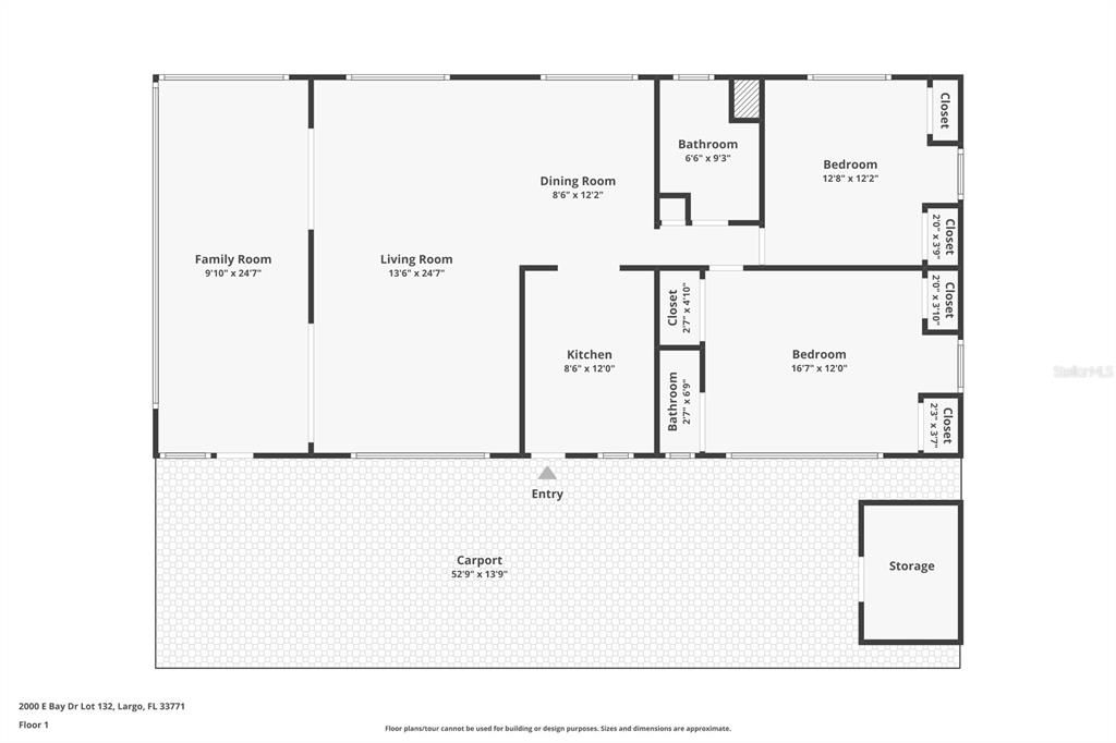
2000 E BAY DRIVE UNIT 132

House For Sale
$159,000

BTC: 2.33823529

ETH: 1,590.00000000

13 days
2 bds
1 ba
1,204 sqft
Est. Estimated sales range: $0 - $0
$0

Overview

One or more photo(s) has been virtually staged. Welcome to effortless, elevated 55+ living—where every detail has already been thoughtfully upgraded for you. This beautifully renovated 2-bedroom, 1.5-bath double-wide sits on a desirable corner lot and truly outshines brand-new models. From the moment you walk in, you’ll notice the bright, open feel, highlighted by stunning quartz countertops throughout, brand-new luxury vinyl plank flooring, and a clean, modern finish from top to bottom. The home features a spacious layout with a walk-in shower, built-in dressers in the bedrooms for added convenience, and an enclosed front Florida room that is now under air—perfect for relaxing year-round. The majority of the furniture stays, making this a true just bring your suitcase and move right in opportunity. Step outside to your sleek epoxy-coated driveway, adding both curb appeal and durability. Enjoy the benefits of an incredibly low $210/month co-op fee that covers water, sewer, trash, lawn care, and pest control—an unbeatable value. The community pool has also been recently renovated, giving you a fresh, resort-style space to enjoy. Golf carts are welcome, adding to the ease and charm of daily living. Even better, you own your land—no lot rent—and pay your own property taxes, offering potential tax advantages at the end of the year. This is more than a home—it’s a lifestyle upgrade. Don’t miss your chance to make it yours. More photos to come soon....

Location

Florida LARGO 33771 House For Sale

Facts and features

Type:
Residential
Parking:
Covered / Driveway / Ground Level / Workshop in Garage
Year Built:
1966
Lot:
No Data
Heating:
Electric / Wall Units / Window Unit
Price/sqft:
$132
Cooling:
Central Air / Wall/Window Unit(s)
HOA:
No Data
All facts and features
  • Flooring

    • Carpet

    • Luxury Vinyl

    Heating

    • Electric

    • Wall Units / Window Unit

    Cooling

    • Central Air

    • Wall/Window Unit(s)

    Appliances

    • Dishwasher

    • Electric Water Heater

    • Exhaust Fan

    • Microwave

    • Range

    • Refrigerator

    Other interior features

    • Dry Bar

    • L Dining

    • Living Room/Dining Room Combo

    • Open Floorplan

    • Primary Bedroom Main Floor

    • Thermostat

    Bedrooms and bathrooms

    • Bedrooms: 2

    • Bathrooms: 1

    • Full bathrooms: 1

  • Parking

    • Covered

    • Driveway

    • Ground Level

    • Workshop in Garage

    Property

    • Levels: One

    • Exterior Features: Awning(s) / Lighting

    Other Property Information

    • Parcel Number: 352915175180001320

  • Type and style

    • Property Type: Residential

    • Property Sub Type: Mobile Home

  • Utility

    • BB/HS Internet Available

    • Cable Available

    • Cable Connected

    • Electricity Available

    • Electricity Connected

    • Phone Available

    • Public

    • Street Lights

    • Water Connected

    Green energy

    • Appliances

    • Thermostat

  • Other financial information

    • Annual tax amount: $1,261

  • Source details

    • MLS ID: TB8490033

    Other facts

    • Construction Materials: Metal Frame / Metal Siding / Vinyl Siding

    • Foundation Details: Crawlspace

    • Fireplace Features: Decorative / Electric / Family Room / Free Standing / Living Room / Non Wood Burning

    • Laundry Features: Electric Dryer Hookup / Laundry Room / Outside

    • Lot Features: City Lot / Landscaped / Near Public Transit / Sidewalk

    • Window Features: Aluminum Frames / Blinds / Tinted Windows

    • Direction Faces: South

    • Fireplace: Yes

    • Living Area: 1204

    • Water Source: Public

    • Subdivision Name: COLONIAL VILLAGE MOBILE HOME PARK CO-OP UNREC

Similar Homes

1009 PEARCE DRIVE UNIT 206 placeholder 1009 PEARCE DRIVE UNIT 206
New
For Sale
Condo/Co-op
$180,000
2 bds 2 ba 1,200 sqft
1009 PEARCE DRIVE UNIT 206
57 ROYAL PALM CIRCLE placeholder 57 ROYAL PALM CIRCLE
2 days
For Sale
$115,000
2 bds 2 ba 1,128 sqft
57 ROYAL PALM CIRCLE
1100 BELCHER ROAD S UNIT 260 placeholder 1100 BELCHER ROAD S UNIT 260
2 days
For Sale
House
$169,000
3 bds 2 ba 1,144 sqft
1100 BELCHER ROAD S UNIT 260
1001 STARKEY ROAD UNIT 395 placeholder 1001 STARKEY ROAD UNIT 395
3 days
For Sale
$189,000
2 bds 2 ba 1,749 sqft
1001 STARKEY ROAD UNIT 395
225 COUNTRY CLUB DRIVE UNIT D238 placeholder 225 COUNTRY CLUB DRIVE UNIT D238
3 days
For Sale
Condo/Co-op
$195,000
2 bds 2 ba 1,450 sqft
225 COUNTRY CLUB DRIVE UNIT D238
1001 STARKEY ROAD UNIT 639 placeholder 1001 STARKEY ROAD UNIT 639
3 days
For Sale
$179,900
2 bds 2 ba 1,418 sqft
1001 STARKEY ROAD UNIT 639
1712 BELLEAIR FOREST DRIVE UNIT A placeholder 1712 BELLEAIR FOREST DRIVE UNIT A
3 days
For Sale
Condo/Co-op
$189,999
2 bds 1 ba 931 sqft
1712 BELLEAIR FOREST DRIVE UNIT A
1001 STARKEY ROAD UNIT 282 placeholder 1001 STARKEY ROAD UNIT 282
4 days
For Sale
$165,000
2 bds 2 ba 1,368 sqft
1001 STARKEY ROAD UNIT 282

The multiple listing information is provided by the Stellar MLS from a copyrighted compilation of listings. The compilation of listings and each individual listing are ©2026-present Stellar MLS. All Rights Reserved. The information provided is for consumers' personal, noncommercial use and may not be used for any purpose other than to identify prospective properties consumers may be interested in purchasing. All properties are subject to prior sale or withdrawal. All information provided is deemed reliable but is not guaranteed accurate, and should be independently verified. Listing courtesy of: LPT REALTY, LLC