Contact
Tell us about your needs

9125 SW 28TH TERRACE

House For Sale
$96,900

BTC: 1.49076923

ETH: 48.10007198

-$3K (2025/12/29)
47 days
2 bds
1 ba
867 sqft
Est. Estimated sales range: $0 - $0
$0

Overview

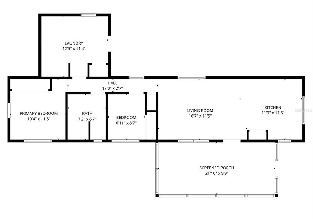
This 2-bedroom, 1-bath Ocala mobile home offers an affordable entry point for buyers and investors alike. Built in 1975, the single-wide home features 867 sq ft, including a 195 sq ft utility/laundry room ideal for storage, workshop space, or added functionality. The interior includes a living room open to the kitchen, two bedrooms, and a centrally located bathroom. A large screened porch provides additional usable space and enhances indoor-outdoor living. A detached storage shed adds convenience, while the yard offers room for parking, gardening, or light expansion. Located in a convenient Ocala area, this property is well-suited for long-term rental, seasonal residence, or affordable primary living.

Location

Florida OCALA 34476 House For Sale

Facts and features

Type:
Residential
Parking:
No Data
Year Built:
1975
Lot:
0.19 Acres
Heating:
None
Price/sqft:
$112
Cooling:
Central Air / Wall/Window Unit(s)
HOA:
$50
All facts and features
  • Flooring

    • Vinyl

    Heating

    • None

    Cooling

    • Central Air

    • Wall/Window Unit(s)

    Appliances

    • Dryer

    • Range

    • Refrigerator

    • Washer

    Other interior features

    • Ceiling Fan(s)

    Bedrooms and bathrooms

    • Bedrooms: 2

    • Full bathrooms: 1

  • Property

    • Levels: One

    • Exterior Features: None

    Lot

    • Lot: 0.19 Acres

    Other Property Information

    • Parcel Number: 3574001008

    • Zoning: R4

  • Type and style

    • Property Type: Residential

    • Property Sub Type: Mobile Home

  • Utility

    • Electricity Connected

    • Water Connected

  • Other financial information

    • HOA: $50

    • HOA Frequency: Annually

    • Annual tax amount: $1,124

  • Source details

    • MLS ID: OM714016

    Other facts

    • Construction Materials: Metal Siding

    • Foundation Details: Pillar/Post/Pier

    • Laundry Features: Inside

    • Patio And Porch Features: Front Porch / Patio / Porch / Screened

    • Direction Faces: West

    • Other Structures: Shed(s)

    • Living Area: 867

    • Water Source: Well

    • Lot Size Dimensions: 76 x 111

    • Subdivision Name: SOUTHGATE MOBILE MANOR

Similar Homes

100 SE 81ST STREET placeholder 100 SE 81ST STREET
7 days
For Sale
$110,000
4 bds 2 ba 2,085 sqft
100 SE 81ST STREET
TBD SW 110TH LANE placeholder TBD SW 110TH LANE
33 days
For Sale
Lots/Land
$75,000
0 room(s)
TBD SW 110TH LANE
TBD SW 111TH PLACE placeholder TBD SW 111TH PLACE
33 days
For Sale
Lots/Land
$75,000
0 room(s)
TBD SW 111TH PLACE
112 placeholder 112
51 days
For Sale
Lots/Land
$70,000
0 room(s)
112
4315 SW 112TH LANE placeholder 4315 SW 112TH LANE
55 days
For Sale
Lots/Land
$74,900
0 room(s)
4315 SW 112TH LANE
4168 SW 112TH LANE placeholder 4168 SW 112TH LANE
98 days
For Sale
Lots/Land
$90,000
0 room(s)
4168 SW 112TH LANE
3081 SW 90TH STREET placeholder 3081 SW 90TH STREET
-$20K (2025/12/03)
For Sale
$100,000
3 bds 2 ba 1,104 sqft
3081 SW 90TH STREET
TBD SW 39TH COURT placeholder TBD SW 39TH COURT
132 days
For Sale
Lots/Land
$85,000
0 room(s)
TBD SW 39TH COURT

The multiple listing information is provided by the Stellar MLS from a copyrighted compilation of listings. The compilation of listings and each individual listing are ©2026-present Stellar MLS. All Rights Reserved. The information provided is for consumers' personal, noncommercial use and may not be used for any purpose other than to identify prospective properties consumers may be interested in purchasing. All properties are subject to prior sale or withdrawal. All information provided is deemed reliable but is not guaranteed accurate, and should be independently verified. Listing courtesy of: LOKATION