Contact
Tell us about your needs

0 0, Opa-Locka FL 33054

Lots/Land For Sale
$575,000

BTC: 6.42458101

ETH: 195.57823129

-$50K (2025/09/11)
158 days
0 room(s)
Est. Estimated sales range: $0 - $0
$0

Overview

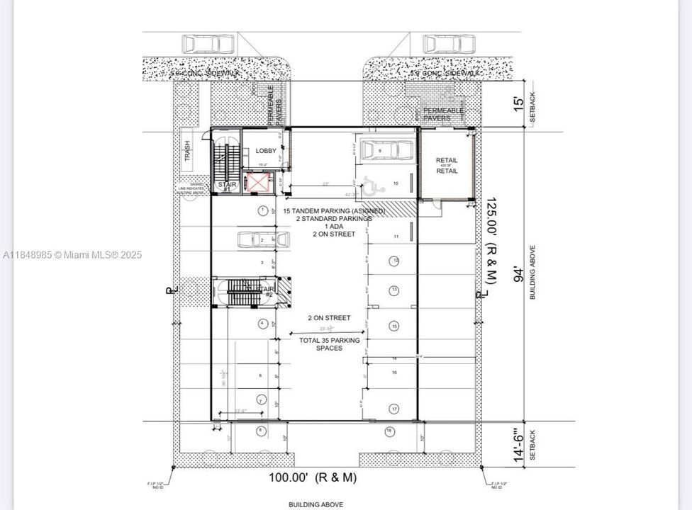
Located in a Mixed-Use Overlay Zone, this site offers an incredible opportunity for builders, investors, and developers looking to capitalize on a density increase of 100 units per acre. With other development projects already underway in the area, this is the perfect time to secure a foothold in an up-and-coming neighborhood. The current owner had plans for a 17-unit, 4-story building, and while those plans were not officially submitted, you can see the proposed schematics in the pictures. This site is brimming with potential — whether you’re looking to follow through with the existing concept or explore your own vision, the possibilities are endless!

Location

Facts and features

Type:
Land/Boat Docks
Parking:
No Data
Year Built:
No Data
Lot:
0.20 Acres
Heating:
No Data
Price/sqft:
No Data
Cooling:
No Data
HOA:
No Data
All facts and features
  • Lot

    • Lot: 0.20 Acres

    Other Property Information

    • Parcel Number: 08-21-22-003-2140

    • Zoning: 6300

  • Type and style

    • Property Type: Land/Boat Docks

    • Property Sub Type: Residential

  • Other financial information

    • Annual tax amount: $1,885

  • Source details

    • MLS ID: A11848985

    Other facts

    • Lot Features: 1/4 To Less Than 1/2 Acre Lot / No Misc/Improvements

    • Direction Faces: North

    • Other Structures: None

    • Subdivision Name: MAGNOLIA SUB

Similar Homes

1231 Dunad Ave, Opa-Locka FL 33054 placeholder 1231 Dunad Ave, Opa-Locka FL 33054
New
For Sale
House
$499,000
3 bds 2 ba 1,080 sqft
1231 Dunad Ave, Opa-Locka FL 33054
2115 NW 129th St, Miami FL 33167 placeholder 2115 NW 129th St, Miami FL 33167
1 days
For Sale
House
$659,000
3 bds 2 ba 1,576 sqft
2115 NW 129th St, Miami FL 33167
661 NW 191st St, Miami Gardens FL 33169 placeholder 661 NW 191st St, Miami Gardens FL 33169
1 days
For Sale
House
$509,900
4 bds 2 ba 1,402 sqft
661 NW 191st St, Miami Gardens FL 33169
289 NW 109th St, Miami FL 33168 placeholder 289 NW 109th St, Miami FL 33168
2 days
For Sale
House
$650,000
3 bds 1 ba 1,584 sqft
289 NW 109th St, Miami FL 33168
2550 NW 153rd St, Miami Gardens FL 33054 placeholder 2550 NW 153rd St, Miami Gardens FL 33054
2 days
For Sale
House
$445,000
2 bds 1 ba 928 sqft
2550 NW 153rd St, Miami Gardens FL 33054
1930 NW 152nd Ter, Miami Gardens FL 33054 placeholder 1930 NW 152nd Ter, Miami Gardens FL 33054
2 days
For Sale
House
$445,000
3 bds 2 ba 550 sqft
1930 NW 152nd Ter, Miami Gardens FL 33054
12680 N Miami Ave, North Miami FL 33168 placeholder 12680 N Miami Ave, North Miami FL 33168
3 days
For Sale
House
$672,000
4 bds 2 ba 1,724 sqft
12680 N Miami Ave, North Miami FL 33168
1100 Opa Locka Blvd, Miami FL 33168 placeholder 1100 Opa Locka Blvd, Miami FL 33168
3 days
For Sale
House
$469,900
3 bds 2 ba 1,198 sqft
1100 Opa Locka Blvd, Miami FL 33168

The multiple listing information is provided by the Miami Association of REALTORS® from a copyrighted compilation of listings. The compilation of listings and each individual listing are ©2026-present Miami Association of REALTORS®. All Rights Reserved. The information provided is for consumers' personal, noncommercial use and may not be used for any purpose other than to identify prospective properties consumers may be interested in purchasing. All properties are subject to prior sale or withdrawal. All information provided is deemed reliable but is not guaranteed accurate, and should be independently verified. Listing courtesy of: The R E Experts of South Fla